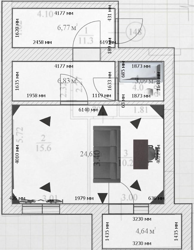
Прикладываю изображения двух планировок которые я нарисовал, можно снести все внутренние перегородки и построить нужные заново (хотя санузел не хотелось бы переносить) если есть вариант лучше. Приоритетом для меня является качество стерео звука, однако расположение акустики и точки прослушивания по калькулятору для стерео проблематично ввиду необходимости разместить экран и тылы, и нужно придумать какое-то компромиссное решение. Снести все стены и получить большую но практически квадратную кдп мне кажется тоже не вариант.
Ради звукоизоляции и улучшения акустических свойств комнаты планируется делать комнату-в-комнате, что съест еще немного сантиметров, а также установить все необходимые поглотители и рассеиватели, но для начала нужно определиться с планировкой и расположением акустики. В вариантах которые я нарисовал мне не нравится, в первом ("горизонтальном"):
1 близость окна к левому фронту, и соответственно отсутствие симметрии для правого фронта
2 некоторые сложности с проходом на балкон при таком расположении дивана
3 есть возможность использовать стационарный экран на стене, однако предлагаемое калькулятором стерео расстояние между фронтами в 180см необходимо увеличить минимум до 270см чтобы видеть весь экран с точки прослушивания
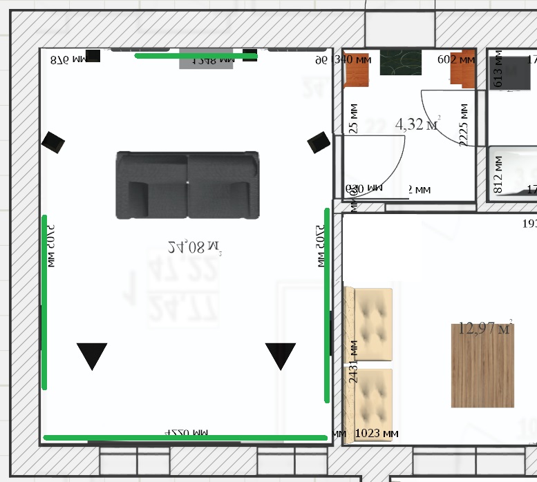
во втором "вертикальном":
1 на фронтальной стене окно, причем несимметрично относительно продольной оси комнаты
2 сложности с рпасположением тылов и проходом в комнату, задние тылы могут быть только небольшими настенными
3 экран возможен только выдвижной звукопрозрачный, и хотя он позволяет разместить акустику именно там где говорит калькулятор для стерео (на плане ширина увеличена) - расстояние между точкой прослушивания и экраном будет слишком мало, нужно его каким-то образом увеличивать
4 сокращение размера кдп до 21м2 - не будет ли это преступлением против аудиофильского человечества?
К сожалению мне не хватает опыта оценить насколько эти проблемы критичны для "идеальной" кдп и насколько они трудноисправимы, так что хотелось бы услышать мнение по этому поводу тоже.
В расположении акустики я руководствовался такими мыслями - фронты должны быть расположены максимально близко к тому как предлагает калькулятор стерео, а для многоканала процессор внесет необходимую коррекцию. Точка прослушивания многоканала - диван в 38% от задней стены - не совпадает с точкой прослушивания стерео, однако т.к. стерео обычно для одного человека то это может быть решено креслом на колесиках .
Если я не прав или есть более подходящая методика для данного случая - буду рад ее услышать. Возможно точку прослушивания многоканала просто стоит перенести туда куда предлагает калькулятор стерео?
И последнее, если здесь есть кто-то увлеченный многоканальной музыкой (90% которой 5.1 или 4.0 миксы) и имеющий опыт ее прослушивания на различных многоканальных системах, то хотелось бы услышать мнение насколько хорошо пятиканальные миксы звучат в семи и более канальных системах? Возможно в моем случае дополнительная пара тылов будет скорее мешать и лучше от нее отказаться, соответственно упростив расположение АС.
