by rabbit » 14 Jul 2012, 17:35
Здравствуйте,имеется комната с капитальными стенами,36кв.м,планирую создать там студию звукозаписи,прошу квалифицированной консультации,исходя из опыта хотел сделать каркас по всему периметру из бруса(секционно),мин.вата,иглопробивной ковролин,расположить в контрольной комнате ловушки по углам,потолок,стены.пол думал сделать из "Элемент Пола" с прослойкой из керамзита мелкой фракции 0,5 млм,окна хочу закрыть блоками съемными,выполненные по такой же схеме как стены,ну как то так....=)
- Attachments
-

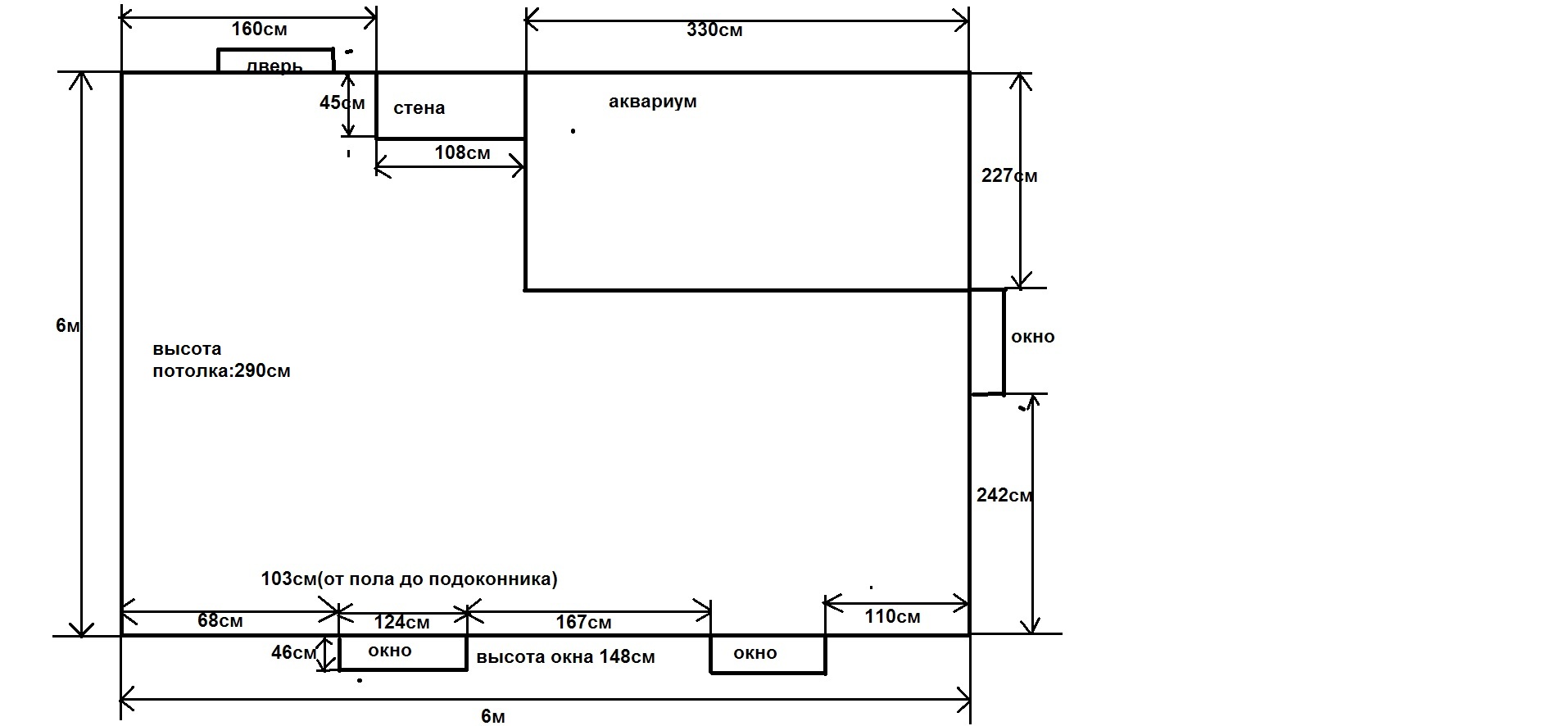
- расположение аквариума предварительное,его еще там нет!
- студия проект3.jpg (122.01 KiB) Viewed 5379 times