Vibrofix

Не совсем прямоугольная комната.

Кімнати прослуховування, домашні кінотеатри, студії звукозапису, концертні зали, клуби, спортивні споруди, конференц-зали тощо. Звукопоглинальні матеріали, акустичні дифузори, бастрапи

Не совсем прямоугольная комната.

Postby hunterwild » 09 Jan 2012, 07:01

Здравствуйте!
Имею помещение где хочу сделать комнату для написания аранжировок, сведения и дэмо записей вокала и инструментов. Основная проблема в том, что комната не совсем прямоугольная (картинка ниже), имеется прямоугольный выступ с дверью.
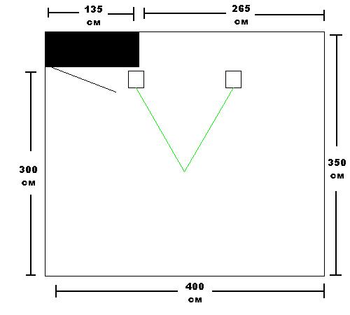
Размеры комнаты 4 х 3,5 х 2,4. На стенах обои, потолок подвесной (типа тонкого пенопласта), на полу линолеум.

Звукоизоляция не требуется. Ничего глобально перестроить нет возможности, буду собирать широкополосные звукопоглощающие панели и басовые ловушки (типа ак-47) из минеральной ваты.

Задачи:
1) Обеспечить, на сколько возможно, равномерное поглощение по всему спектру;
2) Выровнить АЧХ;
3) Не переглушить комнату;

Для начала хочу определиться с рабочим местом. На схемах ниже представлено 4 варианта расположения. Расположение громкоговорителей рассчитано на калькуляторе акустики.
Посоветуйте, пожалуйста, где мне лучше разместить рабочее место.
Attachments
1.JPG
1
1.JPG (16.5 KiB) Viewed 9862 times
2.JPG
2
2.JPG (16.07 KiB) Viewed 9862 times
3.JPG
3
3.JPG (16.15 KiB) Viewed 9862 times
hunterwild
 
Posts: 6
Joined: 09 Jan 2012, 02:31
Location: Нижний Новгород

Re: Не совсем прямоугольная комната.

Postby hunterwild » 09 Jan 2012, 07:04

4 вариант расположения
Attachments
4.JPG
4.JPG (16.3 KiB) Viewed 9860 times
hunterwild
 
Posts: 6
Joined: 09 Jan 2012, 02:31
Location: Нижний Новгород

Re: Не совсем прямоугольная комната.

Postby Андрей Смирнов » 09 Jan 2012, 10:33

Привет,
1. наиболее приемлем первый вариант
2. калькулятор, который был использован, предназначен не для студий, а для комнат прослушивания
3. посмотри пожалуйста ссылку viewtopic.php?f=3&t=1113
...ничто не слишком...(с) Кармадон, "Альтист Данилов"
http://www.akustik.ua - акустическое проектное бюро
http://www.acoustic.ua - звукоизоляционные материалы
............................................
User avatar
Андрей Смирнов
Soundmoderator
 
Posts: 8791
Joined: 29 Aug 2006, 12:24
Location: Украина, Киев

Re: Не совсем прямоугольная комната.

Postby hunterwild » 10 Jan 2012, 04:23

Спасибо за быстрый ответ!
С расположением рабочего места в целом понятно.

Хотел бы еще уточнить, по скольку моя комната не идеально прямоугольная, расположение угловых басовых ловушек на стыках стена/стена (изображения ниже). Басовые ловушки будут на всю высоту комнаты, шириной 64 см (под стандартный лист мин.ваты), глубиной 10-15 см (пока не определился).

P.S. заодно хочу посоветоваться какая комбинация плит минеральной ваты на основе базальтовых пород в конструкции пористого низкочастотного поглотителя будет наиболее эффективна:
1) 5 см 90 кг/м3 --- воздушная прослойка 5 см --- 5 см 90 кг/м3
2) 5 см 90 кг/м3 --- 5 см 45 кг/м3 --- 5 см 90 кг/м3
3) 5 см 90 кг/м3 --- 5 см 90 кг/м3
4) 10 см 90 кг/м3
Attachments
1.JPG
1.JPG (19.95 KiB) Viewed 9850 times
2.JPG
2.JPG (19.21 KiB) Viewed 9850 times
3.JPG
3.JPG (19.21 KiB) Viewed 9850 times
hunterwild
 
Posts: 6
Joined: 09 Jan 2012, 02:31
Location: Нижний Новгород

Re: Не совсем прямоугольная комната.

Postby Андрей Смирнов » 10 Jan 2012, 12:50

В конструкции пористого низкочастотного поглотителя будет наиболее эффективна комбинация плит:
5 см 90 кг/м3 --- воздушная прослойка 5 см --- 5 см 90 кг/м3
или
10 см 90 кг/м3
...ничто не слишком...(с) Кармадон, "Альтист Данилов"
http://www.akustik.ua - акустическое проектное бюро
http://www.acoustic.ua - звукоизоляционные материалы
............................................
User avatar
Андрей Смирнов
Soundmoderator
 
Posts: 8791
Joined: 29 Aug 2006, 12:24
Location: Украина, Киев

Re: Не совсем прямоугольная комната.

Postby hunterwild » 11 Jan 2012, 07:25

С конструкцией низкочастотного поглотителя все понял. Спасибо.

Хотел еще посоветоваться насчет широкополосных поглотителей.

1) Какая конструкция наиболее эффективна:
а) 5 см 45кг/м3 --- 5 см воздушная прослойка --- 5 см 45кг/м3
б) 5 см 45кг/м3 --- 5 см воздушная прослойка --- 5 см 75кг/м3
в) 5 см 45кг/м3 --- 5 см воздушная прослойка --- 5 см 90кг/м3
г) 5 см 45кг/м3 --- 5 см 45кг/м3
д) 5 см 45кг/м3 --- 5 см 75кг/м3
е) 5 см 45кг/м3 --- 5 см 90кг/м3

2) Какая должна быть высота настенных панелей?

3) Как определить высоту установки настенных панелей?
hunterwild
 
Posts: 6
Joined: 09 Jan 2012, 02:31
Location: Нижний Новгород

Re: Не совсем прямоугольная комната.

Postby Андрей Смирнов » 11 Jan 2012, 09:58

г)
Центр панели должен быть расположен примерно на уровне ушей слушателя.
Размер панелей определяется формой и размерами помещения. Обычно хватает размера 600х1200 мм ... 1000х1500 мм.
...ничто не слишком...(с) Кармадон, "Альтист Данилов"
http://www.akustik.ua - акустическое проектное бюро
http://www.acoustic.ua - звукоизоляционные материалы
............................................
User avatar
Андрей Смирнов
Soundmoderator
 
Posts: 8791
Joined: 29 Aug 2006, 12:24
Location: Украина, Киев

Re: Не совсем прямоугольная комната.

Postby hunterwild » 19 Mar 2012, 20:18

А есть ли смысл обшить полностью все стены мин.ватой 45 кг/м3, укрыть все спанбондом, а на потолок прикрепить панели?

Если есть смысл, какая толщина мин.ваты будет оптимальной?
hunterwild
 
Posts: 6
Joined: 09 Jan 2012, 02:31
Location: Нижний Новгород

Re: Не совсем прямоугольная комната.

Postby Андрей Смирнов » 19 Mar 2012, 20:57

Ни в коем случае. Это просто "переглушит" комнату на СЧ/ВЧ и её невозможно будет эксплуатировать по назначению.
...ничто не слишком...(с) Кармадон, "Альтист Данилов"
http://www.akustik.ua - акустическое проектное бюро
http://www.acoustic.ua - звукоизоляционные материалы
............................................
User avatar
Андрей Смирнов
Soundmoderator
 
Posts: 8791
Joined: 29 Aug 2006, 12:24
Location: Украина, Киев

Re: Не совсем прямоугольная комната.

Postby hunterwild » 20 Mar 2012, 17:25

И низ должен подглушиться.

У мин.ваты 45 плотности толщиной 20 см на 100 Hz коэффициент звукопоглощения 0,65. НЧ пройдя через вату, отразившись от стены, еще раз пройдут через вату. В итоге получится 40 см слой и соответственно более высокий коэффициент звукопоглощения.
Attachments
acoustic-graf1.gif
acoustic-graf1.gif (3.25 KiB) Viewed 9597 times
hunterwild
 
Posts: 6
Joined: 09 Jan 2012, 02:31
Location: Нижний Новгород


Return to Акустика приміщень

Who is online

Users browsing this forum: No registered users and 38 guests

cron