Vibrofix

Проект небольшой студии.

Кімнати прослуховування, домашні кінотеатри, студії звукозапису, концертні зали, клуби, спортивні споруди, конференц-зали тощо. Звукопоглинальні матеріали, акустичні дифузори, бастрапи

Проект небольшой студии.

Postby djdaveed » 11 Feb 2011, 02:17

Здравствуйте.

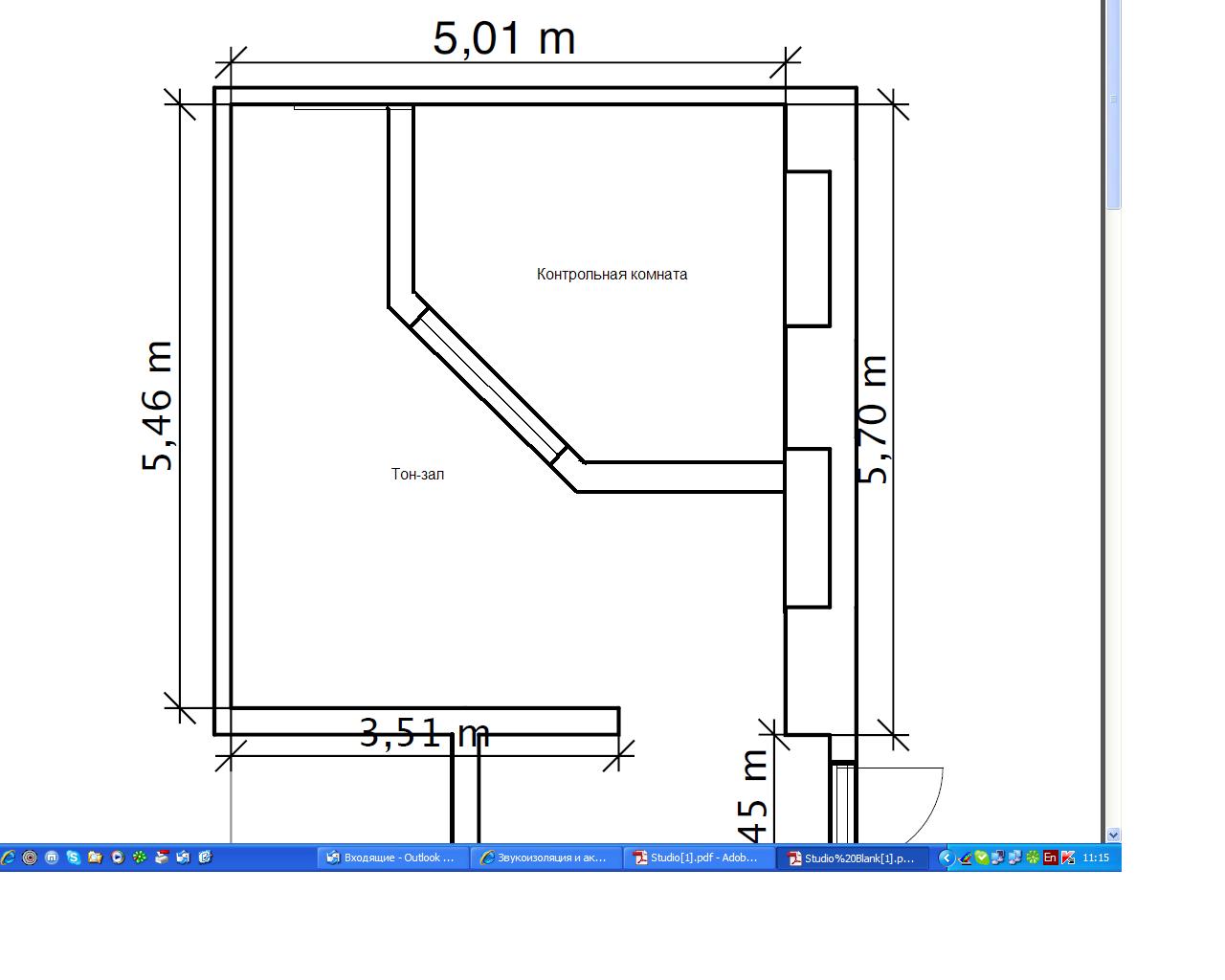
Есть подвальное помещение с высотой потолка 2,40 м (план во вложенном файле). Планируется небольшая студия (контрольная комната и комната записи). Хотелось бы попросить дать рекомендации по размещению акустики, контрольной комнаты и комнаты записи. Я попробовал накидать свой проект, но есть сомнения в правильности размещения всего выше перечисленного (план есть во вложенном файле). Имеет ли он право на существование. Если да, то что исправить, какие акустические приемы применить, ловушки и т.д.. Если нет, то нет)))))

Стены бетон, влажность, окон нет, нет ни вытяжки ни кондиционирования (естественно планируются).

Хотелось бы конечно узнать побольше тонкостей, какой лучше пол и в контроле и в будке, какой потолок, чем оббить, сколько потеряется в пространстве, из чего делать будку, что повесить за мониторы… много чего хочется узнать в контексте данного проекта) хотя такую инфу и так можно найти.
Самое главное это конечно размещение составляющих.

Заранее спасибо.
Attachments
Studio.pdf
План проект
(97.35 KiB) Downloaded 638 times
Studio Blank.pdf
План пустого помещения
(38.9 KiB) Downloaded 632 times
djdaveed
 
Posts: 4
Joined: 11 Feb 2011, 01:50

Re: Проект небольшой студии.

Postby Андрей Смирнов » 11 Feb 2011, 11:25

Привет, djdaveed

ты ставишь глобальные вопросы по строительству студии. В рамках форума можно обсуждать только некоторые аспекты и давать рекомендации.
Касательно планировки могу сказать, что более рациональным будет поменять местами назанчение помещений на твоем плане.
Контрольная комната должна быть симметричной, а тон-зал лучше планировать неправильной формы.
Attachments
План студии djdaveed.JPG
План студии djdaveed.JPG (79.22 KiB) Viewed 6035 times
...ничто не слишком...(с) Кармадон, "Альтист Данилов"
http://www.akustik.ua - акустическое проектное бюро
http://www.acoustic.ua - звукоизоляционные материалы
............................................
User avatar
Андрей Смирнов
Soundmoderator
 
Posts: 8791
Joined: 29 Aug 2006, 12:24
Location: Украина, Киев

Re: Проект небольшой студии.

Postby djdaveed » 11 Feb 2011, 15:49

Про глобальность это да, прошу прощения) Самое главное для меня это найти правильное решение по размещению комнат. Спасибо за ответ. Идею понял.
djdaveed
 
Posts: 4
Joined: 11 Feb 2011, 01:50

Re: Проект небольшой студии.

Postby djdaveed » 11 Feb 2011, 17:29

А если так? Ниши существенно влияют на симметричность. И по вопросу к двери, на картинке показано место, можно ли там вообще не делать стену, или дверь, или все это уже ассиметрия?
Attachments
Studio 2.pdf
(100.01 KiB) Downloaded 668 times
djdaveed
 
Posts: 4
Joined: 11 Feb 2011, 01:50

Re: Проект небольшой студии.

Postby Андрей Смирнов » 11 Feb 2011, 17:52

djdaveed,
планировку можно изменять как угодно, только результаты будут разные.
Мне был задан вопрос, и я высказал свое мнение.
Мнение не поменялось :)
...ничто не слишком...(с) Кармадон, "Альтист Данилов"
http://www.akustik.ua - акустическое проектное бюро
http://www.acoustic.ua - звукоизоляционные материалы
............................................
User avatar
Андрей Смирнов
Soundmoderator
 
Posts: 8791
Joined: 29 Aug 2006, 12:24
Location: Украина, Киев

Re: Проект небольшой студии.

Postby djdaveed » 11 Feb 2011, 21:00

Спасибо)
djdaveed
 
Posts: 4
Joined: 11 Feb 2011, 01:50


Return to Акустика приміщень

Who is online

Users browsing this forum: No registered users and 2 guests