Vibrofix

Домашняя студия Решение акустической проблемы.

Кімнати прослуховування, домашні кінотеатри, студії звукозапису, концертні зали, клуби, спортивні споруди, конференц-зали тощо. Звукопоглинальні матеріали, акустичні дифузори, бастрапи

Домашняя студия Решение акустической проблемы.

Postby Ivanoff » 06 Feb 2011, 23:47

Приветствую всех. Вот появилась возможность переоборудовать одно из пемещений под домашний кабинет. Цель как можно более ровная АЧХ комнаты.
Итак
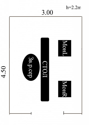
комната размеры - 4.50х3.00х2.20 Длинна-Ширина-Высота. Понимаю что высота да и вообще все размеры маленькие очень но все же потолок не поднимешь стены не подвинешь шо маемо то маемо как говорится.
Предполагаю размещение мониторов вдоль длинной стены (см план схему)
Вопросы сейчас назрели следующие.
1. Правильно ли разместить мониторы так как я нрисовал на рисунке.
Понимаю что глушить надо будет ее очень сильно поэтому второй вопрос
2. Предпологаю что задняя(за спиной зв-ра - та вдоль которой на фото идет труба) стена будет заглушена вот примерно по такому принципу примерная толщина ее будет 60 см сендвич из дсп минеральной ваты и под углом поставленных мембран из истов дсп обклеяных минеральной ватой под 45 град к стене ну примерно как расказано в книге ньюэла. Даст ли это хороший результат.
3. Передняя стенка - главный вопрос как поступить с ней - я понимаю что лучше всего наверно сделать то же самое что и с задней но в целом получится 1.80 ширина комнаты это же совсем мало будет. как думаете если попробовать обработать перфорированным гипсокартоном под ним минвату и относ от стены.
4. потолок - сделать деревянный каркас по типу как армстронг - с ячейками 60х60 и попробовать в нем совместить перфорированный гипсокартон деревянные рассеиватели из клинышков брусочков и тп.
5. Обнаружил что сейчас на сенах висят плиты из минеральной ваты неизвестного производителя но похожа на роквул - наощупь плотность около 120 кг/м2 добротная не хуже чем та которая в пакованах на рынке. - можно ли ее использовать для моего сендвича - предварительно очистив от цемента (очищается легко) в целях экономии - я так понимаю что чем плотнее вата тем лучше действует на низкой частоте?
6. Чем обычно крепится вот такая плотная вата 120-145 кг на м2 к листу ДСП вертикальному.?

Покритикуйте где я неправильно мыслю - очень важно ваше мнение. Хотябы пару слов по каждому пункту.
Спасибо огромное!
Attachments
z_4c32dc5b.jpg
z_4c32dc5b.jpg (16.4 KiB) Viewed 20695 times
z_91e0c0f4.jpg
z_91e0c0f4.jpg (44.05 KiB) Viewed 20695 times
User avatar
Ivanoff
 
Posts: 10
Joined: 06 Feb 2011, 23:41
Location: Одесса Украина

Re: Домашняя студия Решение акустической проблемы.

Postby Андрей Смирнов » 07 Feb 2011, 00:00

Привет,

для снижения неравномерности АЧХ в такой маленькой комнате рекомендуется ориентировать студию не поперек, а вдоль помещения.
Описанный традиционный подход Ньюэлла (а точнее Тома Хидли) вполне подходит по эффективности.
Существующую вату можно приспособить для указанных целей. Клеится вата прекрасно спомощью обычного густого клея ПВА.
...ничто не слишком...(с) Кармадон, "Альтист Данилов"
http://www.akustik.ua - акустическое проектное бюро
http://www.acoustic.ua - звукоизоляционные материалы
............................................
User avatar
Андрей Смирнов
Soundmoderator
 
Posts: 8791
Joined: 29 Aug 2006, 12:24
Location: Украина, Киев

Re: Домашняя студия Решение акустической проблемы.

Postby Ivanoff » 07 Feb 2011, 00:14

Добрый день Андрей огромное спасибо за моментальный ответ.
В связи с
рекомендуется ориентировать студию не поперек, а вдоль помещения
возникают следующие вопросы.
1. Какая из стен должна быть за спиной у звукорежиссера? та на которой дверь (на плансхеме внизу - на фото впереди где окошки) либо глухая стена на которой не будет ничего?
2. Боковые стены по 4.5 метра нужно обрабатывать все по описанному принципу Хидли? либо можно как то комбинировать с ППГЗ и тп? просто если у 3-х метровой в ширину комнаты отнять еще по пол метра с двух сторон получится очень маленькое помещение(узкое) - задаю этот вопрос с подтекстом "если доктор скажет в морг - значит в морг"
3. Блоки ваты на стенах 10 см в толщину и на них тонким слоем намазана клеящая смесь на основе цемента типа церезит СМ-11 - надо дли ее снимать или она может послужить как один из слоев сендвича?
Спасибо за ответы.
User avatar
Ivanoff
 
Posts: 10
Joined: 06 Feb 2011, 23:41
Location: Одесса Украина

Re: Домашняя студия Решение акустической проблемы.

Postby Андрей Смирнов » 07 Feb 2011, 00:22

Логичнее сидеть лицом ко входу.
На боковых стенах акустическая отделка не займет более 150-200 мм.
А тыловая стена вполне пригодна для подвесных НЧ поглотителей.

Клеющую смесь с ваты надо снимать.
...ничто не слишком...(с) Кармадон, "Альтист Данилов"
http://www.akustik.ua - акустическое проектное бюро
http://www.acoustic.ua - звукоизоляционные материалы
............................................
User avatar
Андрей Смирнов
Soundmoderator
 
Posts: 8791
Joined: 29 Aug 2006, 12:24
Location: Украина, Киев

Re: Домашняя студия Решение акустической проблемы.

Postby Ivanoff » 07 Feb 2011, 00:36

Я прошу прощения несовсем понял вот этот момент
На боковых стенах акустическая отделка не займет более 150-200 мм.
в книге Ньюэла указано что примерная толщина стены получится 600-1200 мм. я так понимаю что должен быть относ от стены порядка 50мм => 50мм минеральная вата =>ДСП 18 мм => минеральная вата 50 мм => Мембраны из ДСП под углом 45 градусов к стене обклеенные минеральной ватой с двух сторон . Правильно ли я понимаю технологию? Может мы о разных вещах говорим?
А тыловая стена вполне пригодна для подвесных НЧ поглотителей.
я так понимаю имеется ввиду НЧКП?
User avatar
Ivanoff
 
Posts: 10
Joined: 06 Feb 2011, 23:41
Location: Одесса Украина

Re: Домашняя студия Решение акустической проблемы.

Postby Андрей Смирнов » 07 Feb 2011, 10:57

Подвесные НЧ поглотители это и есть конструкция, описанная у Ньюэлла. Мембраны из ДСП под углом 45 градусов к стене обклеенные минеральной ватой с двух сторон подвешиваются к потолку помещения. Выполняется такая конструкция, как правило, на тыловой стене.
Акустическая отделка боковых стен не подразумевает такой толстой отделки, о чем я и написал.
...ничто не слишком...(с) Кармадон, "Альтист Данилов"
http://www.akustik.ua - акустическое проектное бюро
http://www.acoustic.ua - звукоизоляционные материалы
............................................
User avatar
Андрей Смирнов
Soundmoderator
 
Posts: 8791
Joined: 29 Aug 2006, 12:24
Location: Украина, Киев

Re: Домашняя студия Решение акустической проблемы.

Postby Ivanoff » 07 Feb 2011, 11:42

Добрый день.
По поводу подвесных НЧ поглотителей все понял - спасибо - а немогли бы вы хоть вкратце направить на мысль что вы имели ввиду для боковых стен?
User avatar
Ivanoff
 
Posts: 10
Joined: 06 Feb 2011, 23:41
Location: Одесса Украина

Re: Домашняя студия Решение акустической проблемы.

Postby Андрей Смирнов » 07 Feb 2011, 11:46

На боковых стенах, как правило, выполняют широкополосную звукопоглощающую облицовку. Выполнить её можно различными способами и материалами. Это зависит от бюджета проекта и внешнего вида материалов.
Это может быть и щелевой резонатор Гельмгольца, и акустическая минеральная вата с перфорированным экраном и панели из древесного волокна...
...ничто не слишком...(с) Кармадон, "Альтист Данилов"
http://www.akustik.ua - акустическое проектное бюро
http://www.acoustic.ua - звукоизоляционные материалы
............................................
User avatar
Андрей Смирнов
Soundmoderator
 
Posts: 8791
Joined: 29 Aug 2006, 12:24
Location: Украина, Киев

Re: Домашняя студия Решение акустической проблемы.

Postby Ivanoff » 07 Feb 2011, 12:01

Ваше мнение - если это будет перфорированный гипсокартон 12мм (перфорация собственного производства)?
Примерно вот так - Кирпичная стена => 50мм воздушная прослойка => 50(100) мм минеральная вата плотностью 120кг на м2 => перфорированный гипсокартон тип перфорации "С" акустически прозрачной тканью.
ЕИ вопросы по этому поводу назрели
1. Какую толщину прослойки минеральной ваты оставлять 50 или 100 мм?
2. Подходит ли минеральная вата плотностью 120 кг/квМ
3. Перфорация тип "С" судя по графикам самая универсальная - правильно ли я ее предпологаю выполнить.
User avatar
Ivanoff
 
Posts: 10
Joined: 06 Feb 2011, 23:41
Location: Одесса Украина

Re: Домашняя студия Решение акустической проблемы.

Postby Андрей Смирнов » 07 Feb 2011, 14:40

1. можно применять минеральную вату толщиной 50 мм. Общую глубину каркаса можно сделать переменной, например, от 50 до 200 мм.
Или с одинаковой глубиной 150-200 мм по площади.
2. вату надо применять специальную акустическую или, как минимум, минеральную плотностью 45-65 кг/куб.м
3. более широкополосное поглощение даст перфорация тип В или тип Е
Attachments
КЗП Knauf Acoustic.ua 1.jpg
КЗП Knauf Acoustic.ua 1.jpg (205.56 KiB) Viewed 20651 times
...ничто не слишком...(с) Кармадон, "Альтист Данилов"
http://www.akustik.ua - акустическое проектное бюро
http://www.acoustic.ua - звукоизоляционные материалы
............................................
User avatar
Андрей Смирнов
Soundmoderator
 
Posts: 8791
Joined: 29 Aug 2006, 12:24
Location: Украина, Киев

Re: Домашняя студия Решение акустической проблемы.

Postby Ivanoff » 07 Feb 2011, 19:16

Спасибо большое за таблицу - очень интересно было изучить -
1. Какой на практике все же лучше применять тип перфорации Б или Е
2.
вату надо применять специальную акустическую или, как минимум, минеральную плотностью 45-65 кг/куб.м
(как минимум минеральную или как минимум плотностью 45-65) плотная вата 120 кг на куб м я так понимаю не подходит однозначно?
3. Еще вопрос назрел - как поступить с ВЧ и С-ВЧ поглощением - я так понимаю гипсокартон все же не решит проблемм свыше 4000гц
Спасибо большое за Ваш ответ на все мои вопросы - я для себя многое уяснил и в голове сформировал порядок работы над кабинетом.
User avatar
Ivanoff
 
Posts: 10
Joined: 06 Feb 2011, 23:41
Location: Одесса Украина

Re: Домашняя студия Решение акустической проблемы.

Postby Андрей Смирнов » 07 Feb 2011, 19:41

1. или Б или Е :)
2. 45-65 кг/куб.м
3. выше 4 кГц обычно проблем не бывает, они легко решаются мебелью, шторой, ковром и т.п.
...ничто не слишком...(с) Кармадон, "Альтист Данилов"
http://www.akustik.ua - акустическое проектное бюро
http://www.acoustic.ua - звукоизоляционные материалы
............................................
User avatar
Андрей Смирнов
Soundmoderator
 
Posts: 8791
Joined: 29 Aug 2006, 12:24
Location: Украина, Киев

Re: Домашняя студия Решение акустической проблемы.

Postby Ivanoff » 07 Feb 2011, 22:49

выше 4 кГц обычно проблем не бывает, они легко решаются мебелью, шторой, ковром и т.п.

Где-то читал что при покрытии ППГЗ материалом - ну например плотной тканью эффект от ППГЗ нивелируется и предсказать как поведет себя акустика невозможно. Так ли это? Можно ли поверх ППГЗ навесить шторку из плотной ткани
User avatar
Ivanoff
 
Posts: 10
Joined: 06 Feb 2011, 23:41
Location: Одесса Украина

Re: Домашняя студия Решение акустической проблемы.

Postby Андрей Смирнов » 08 Feb 2011, 11:35

"при покрытии ППГЗ материалом - ну например плотной тканью" снижается эффективность за счет увеличения сопротивления продуванию, но не исчезает совсем. Мы используем даже оклеивание ППГЗ обоями. Можно поверх ППГЗ навесить шторку из плотной ткани если зазор будет 20-30 мм.
...ничто не слишком...(с) Кармадон, "Альтист Данилов"
http://www.akustik.ua - акустическое проектное бюро
http://www.acoustic.ua - звукоизоляционные материалы
............................................
User avatar
Андрей Смирнов
Soundmoderator
 
Posts: 8791
Joined: 29 Aug 2006, 12:24
Location: Украина, Киев

Re: Домашняя студия Решение акустической проблемы.

Postby Ivanoff » 08 Feb 2011, 15:08

Спасибо за ответ
Еще интересно Ваше личное отношение к минеральной вате "ТЕХНОБЛОК плотность 45 кг/куб.м." ? я имею ввиду в плане прокладки под перфорированным гипсокартоном
И еще вопрос чисто технологический - например я делаю относ ппгз от стены 50мм. каким образом обычно укрепляют минвату между профилями для гипсокартона чтобы она не провалилась внутрь и не заняла место возле стены? и еще как сделать так чтобы вата не согнулась внутри - по сути ее же будет держать только одна стенка?
К слову под словом относ от стены 50мм имеется ввиду что гипсокартон будет находиться на 50 мм от стены или сендвич из ваты+ППГЗ будет находится на 50 мм от стены. - Другими словами 50 мм относ это значит ширина конструкции 50 мм? или 100мм
User avatar
Ivanoff
 
Posts: 10
Joined: 06 Feb 2011, 23:41
Location: Одесса Украина

Re: Домашняя студия Решение акустической проблемы.

Postby Андрей Смирнов » 08 Feb 2011, 15:46

Относ от стены это общая глубина каркаса.
Ничего плохого про Техноблок сказать не могу. Звукопоглощающие характеристики мне неизвестны, но то, что поглощает это точно :)
Мы применяем акустическую минеральную вату AcousticWool, изготовленную из базальтового волокна европейского производства.
Это более надежно в части стабильности акустических параметров и экологичности. Наши монтажники работают с этой ватой даже без перчаток :)
...ничто не слишком...(с) Кармадон, "Альтист Данилов"
http://www.akustik.ua - акустическое проектное бюро
http://www.acoustic.ua - звукоизоляционные материалы
............................................
User avatar
Андрей Смирнов
Soundmoderator
 
Posts: 8791
Joined: 29 Aug 2006, 12:24
Location: Украина, Киев

Re: Домашняя студия Решение акустической проблемы.

Postby Ivanoff » 21 Feb 2011, 19:32

Добрый день.
Возник вопрос. На одном из форумов вычитал что круговой отделке листами ппгз (ну в моем варианте обе боковые стены) можно предпочесть точечную отделку ппгз - тоесть в тех местах где на правой стене будет ппгз (ну например размером 1000х500мм) на левой паралельной ей может висеть подушка из минеральной ваты отделанной акустически прозрачной тканью - это избавит от пархающего эха.
Если можно в двух словах прокоментируйте - опровергните или подтвердите. Что на Ваш взгляд будет лучше отделка обеих боковых стен ппгз польностью или точечно?
Спасибо за ответ.
User avatar
Ivanoff
 
Posts: 10
Joined: 06 Feb 2011, 23:41
Location: Одесса Украина

Re: Домашняя студия Решение акустической проблемы.

Postby Андрей Смирнов » 21 Feb 2011, 19:42

Привет,

способ акустической отделки помещения, когда на противоположных стенах друг напротив друга размещают материалы с различными характеристиками звукопоглощения, является стандартным для тон-залов и студий для записи звука.
В отличие от тон-зала, контрольная комната должна быть акустически симметричной. В противном случае уши звукорежиссера будут "работать" в разных акустических условиях, что недопустимо.

На различных форумах часто выкладывают правдивую информацию, но она не всегда относится именно к тем предметам, которые описывают участники :)
...ничто не слишком...(с) Кармадон, "Альтист Данилов"
http://www.akustik.ua - акустическое проектное бюро
http://www.acoustic.ua - звукоизоляционные материалы
............................................
User avatar
Андрей Смирнов
Soundmoderator
 
Posts: 8791
Joined: 29 Aug 2006, 12:24
Location: Украина, Киев

Re: Домашняя студия Решение акустической проблемы.

Postby Ivanoff » 21 Mar 2011, 23:01

Добрый день.
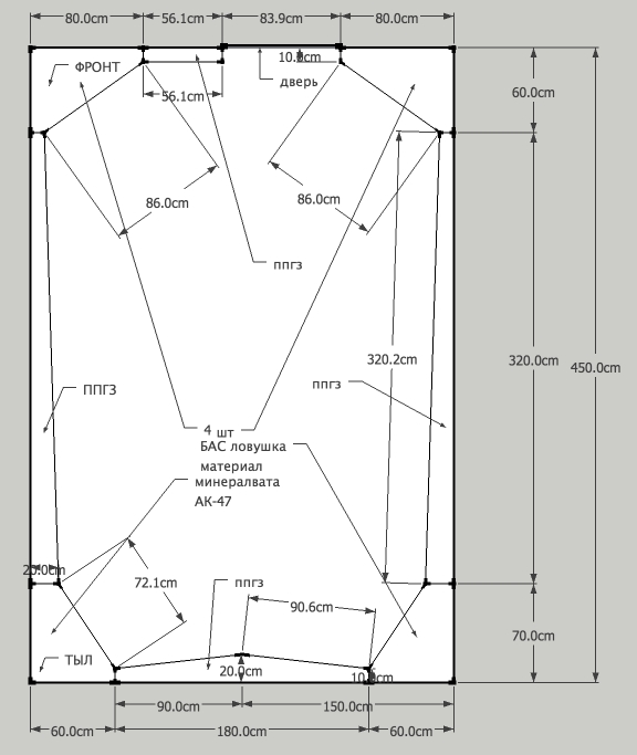
Вот перерыл форум внес некоторые корективы в ак отделку пока на бумажке.
1. Фронтальная стена тоже будет ппгз в углах басловушки заполненный угол до потолка минеральной ватой 120 кг на м3. ппгз на стенах будет менять отступ начнется возле фронтальных ловушек 100мм , а возле тыла будет отступ 200мм
Разрисовал картиночку если будет воможность прокоментировать хорошо это или плохо - то очень жду коментов. Только там не ак47 как оказалось, а Superchunks.
Спасибо.
Attachments
studija tochno.jpg
studija tochno.jpg (104.46 KiB) Viewed 20397 times
User avatar
Ivanoff
 
Posts: 10
Joined: 06 Feb 2011, 23:41
Location: Одесса Украина


Return to Акустика приміщень

Who is online

Users browsing this forum: No registered users and 2 guests