Добрый день.
Имею возможность построить свою студию звукозаписи для записи вокала, речи (в том числе для записи голоса под видео ряд), записи небольших ансамблей (например, народных инструментов - аккордеон, балалайка, домра и бас), инструментов соло - гитара, скрипка, тд., а также электроакустических инструментов.
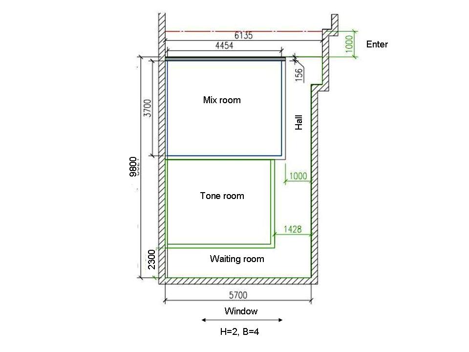
Имеется помещение 5.5 на 9.8 м. Высота потолка - 3.07
Помещение находится на втором этаже кирпичного 5 этажного здания "на несущих колоннах" (70 гг постройки). Соседи - "тихие" малолюдные офисы.
В помещении есть одно большое окно (выходит на тихую улицу).
В данном помещении хотелось бы расположить тон-зал (возможно с дикторской), контрольную комнату и небольшую комнату отдыха (в той части помещения, где окно.)
Помещение небольшое. Читаю форумы, планирую помещение, смотрю пропорции, думаю… Появился свой вариант планировки, но очень сомневаюсь в нем… Не подскажете, как грамотно расположить тон-зал, контрольную комнату и комнату отдыха в моем помещении? Спасибо.
Прилагаю свой чертеж.
