Сейчас решился поспрошать-надеюсь на советы опытных людей. Сразу сообщю-паяю сам и руки "оттуда". Перечитал форум от "корки до корки", понял что кое-что возможно.
Итак-вводные:
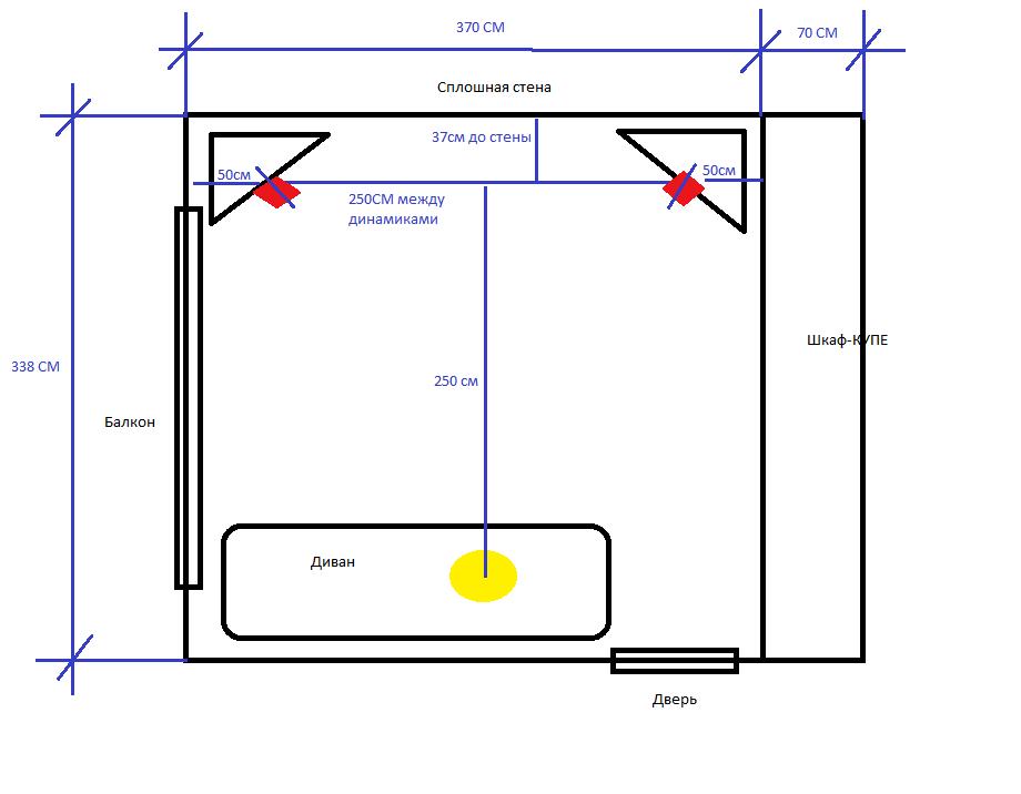
1 Комната почти квадрат-длинн сторона-3,7 метра (до шкафа -купе-он у меня на всю площадь до потолка-без него было бы на 0,6 метра шире), узкая сторона-3,3 м, высота-2,6метра.
Если смотреть в плане (Нарисовать пока не могу-не знаю чем)- колонки по длинной стороне, в углах 3,7 метровой стены, щиты (Для колонок 45см и высотой 2,5метра)-"смотрят" на диван у противоположной стороны (3,7метра), справа с краю от дивана-вход. Если сидеть на диване, то по правой стороне во всю стену-шкаф купе, по левой-окно и выход на балкон. Комната "простая"-те ни эркеров ни ниш. Единственно-по периметру вентиляция в ГКЛ коробе.
2 Тк музыка будет симфоническая, но негромко и широкополосно-то требуется и на низах хорошая частотка (сейчас конструирую саб с ЭМОС на 18 дюймовых динамиках).
3 Посчитав комнату-нашел пики 50, 10, и 135 герц.
4 Сейчас есть флаттер, при увеличении громкости (На средней усь 8вт, широкополосники по 30см) музыке тесно, особ на низах
5 заинтересовали диффузоры Шредера, но на какую частоту и где расположить-до конца не ясно.
6 понимаю, что нужны рассеиватели на НЧ (паели) но также не пойму, как лучше.
7 Потолок-или диффузоры, или (есть возможность щиты с отверстиями по типу "Армстронга") но диффузоры интереснее, тк расширяют виртуально комнату
8 Иногда будет пользоваться проектор для кино-вопрос про оформление межколоночного пространства (экран убираемый)
Очень хочется услышать конструктивных мыслей, думал заказать проект, зная, что хорошо делаете, но нет смысла вкладываться в малую площадь, но впереди постройка дома-там могу выделить любую площадь (Кстати, от какого объема начитнается нормальная акустич среда -вопрос на будущее) тогда обязательно обращусь к вам за просчитанным проектом.
Надеюсь, не "засумбурил", просто оч вовремя сайт нашел-ремонт намеревался сделать в комнате-и тут вы!

Спасибо заранее!