Vibrofix

Как победить эхо в циклораме

Кімнати прослуховування, домашні кінотеатри, студії звукозапису, концертні зали, клуби, спортивні споруди, конференц-зали тощо. Звукопоглинальні матеріали, акустичні дифузори, бастрапи

Как победить эхо в циклораме

Postby Александр Я. » 11 Apr 2019, 23:14

Всем доброго времени суток.
Требуется помощь коллективного разума.

Имеется помещение, размеры (ДхШхВ) 15000 х 9350 х 5000 мм., стены - ЖБ панель. В помещении выполнена звукоизоляция и акустическая обработка - внешние шумы не проникают, уровень реверберации в границах, определенных рекомендациями РМ 01-93. Пол наливной, идеально гладкий.

В помещении необходимо построить отдельно стоящую конструкцию, в виде вытянутой подковы, высотой 3500 мм. То, что обозначено клиентом в качестве исходных пожеланий изображено на Рис.1
Все градиенты (переходы между вертикальными и горизонтальными плоскостями) должны быть плавными.

Рис 1.jpg
Исходное пожелание
Рис 1.jpg (129.92 KiB) Viewed 5602 times

У фотографов, киношников, телевизионщиков такая конструкция называется циклорамой.

Обязательные требования
Все поверхности (стены, пол, переходы) должны быть ровными, матовыми и иметь единый цвет окраски. Наличие, на плоскостях, впадин, выпуклостей любых неровностей исключено. Градиент между полом и вертикальными плоскостями должен выдерживать нагрузки до 150-200 кг. без образования трещин и сколов. Пожарные требования к конструкции - не хуже КМ1.

Вопросов из чего и как сделать такую конструкцию нет, но есть одна серьезная проблема.
Очевидно, что при подобном размещении ровных твердых плоскостей, внутри циклорамы будет сильное порхающее эхо. Оно возникает и в более простых решениях. Было бы здорово сделать плоскости тканевыми, но есть проблемы с исполнением плавных изгибов, особенно чашек (угол две стены и пол), по пожарной части, а также с подержанием такого пылесборника в чистом состоянии.
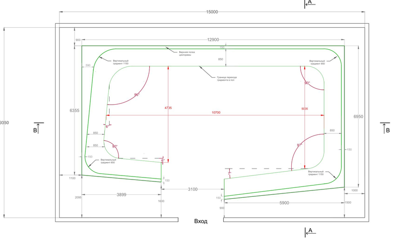
Изучение разных материалов, на эту тему и небольшой личный опыт привели к решению которое изображено на Рис.2.1 - 2.2.

Рис 2.1.jpg
Вариант предлагаемого решения (план)
Рис 2.1.jpg (129.8 KiB) Viewed 5602 times



Рис 2.2.jpg
Вариант предлагаемого решения (разрез)
Рис 2.2.jpg (110.52 KiB) Viewed 5602 times


Краткий комментарий.
Стены - внутренняя плоскость 2хГКЛВ 12.5, торцы и внешняя плоскость 1хГКЛВ 12.5, градиенты жесткая основа и бетон. Все плоскости штукатурятся. шпаклюются и окрашиваются специальной краской. На пол укладывается линолеум. Объем между лицевой и задней плоскостями конструкции заполняется минватой.

Хотелось бы услышать мнения и комментарии специалистов по следующим вопросам:
1) достаточно ли данного решения чтобы справиться с эхом?
2) есть ли какие дополнительные или более эффективные способы борьбы?
3) целесообразно ли заполнять минватой весь внутренний объем конструкции?

В качестве дополнительного инструмента борьбы рассматриваю возможность размещения баффлов над центральной частью циклорамы выше уровня верхней кромки.
Александр Я.
 
Posts: 4
Joined: 10 Apr 2019, 12:34

Re: Как победить эхо в циклораме

Postby Андрей Смирнов » 12 Apr 2019, 10:31

На ваши вопросы невозможно ответить, т.к. вы не описали постановку задачи.
Каково назначение помещения?
Если для фото и видеосъемки, то зачем упоминаются требования студийного стандарта РМ 01-93?
Вы планируете записывать звук в циклораме?
...ничто не слишком...(с) Кармадон, "Альтист Данилов"
http://www.akustik.ua - акустическое проектное бюро
http://www.acoustic.ua - звукоизоляционные материалы
............................................
User avatar
Андрей Смирнов
Soundmoderator
 
Posts: 8791
Joined: 29 Aug 2006, 12:24
Location: Украина, Киев

Re: Как победить эхо в циклораме

Postby Александр Я. » 12 Apr 2019, 12:38

Циклорама будет использоваться для видеозаписи программ различной тематики.
Что-то будет писаться в формате только видео, а что то в формате видео и звук.
Количество участников до 8 человек

Ссылка на рекомендации сделана чтобы показать, что основное помещение не вносит окраску в звук
Александр Я.
 
Posts: 4
Joined: 10 Apr 2019, 12:34

Re: Как победить эхо в циклораме

Postby Андрей Смирнов » 12 Apr 2019, 13:40

Когда в циклораме пишется звук, её обычно не делают замкнутой, а выполняют прямой, угловой или П-образной.
Если исходное помещения удовлетворяет требованиям РМ 01-93 по времени реверберации, то после устройства циклорамы из ГКЛ ситуация радикально изменится, т.к. окрашенный гипсокартон прекрасно отражает звук. При этом акустические материалы, размещенные на стенах основного помещения, не будут участвовать в процессе поглощения звука.
В данном случае необходимо очень эффективное широкополосное поглощение звука на потолке помещения.
...ничто не слишком...(с) Кармадон, "Альтист Данилов"
http://www.akustik.ua - акустическое проектное бюро
http://www.acoustic.ua - звукоизоляционные материалы
............................................
User avatar
Андрей Смирнов
Soundmoderator
 
Posts: 8791
Joined: 29 Aug 2006, 12:24
Location: Украина, Киев

Re: Как победить эхо в циклораме

Postby Александр Я. » 12 Apr 2019, 14:27

Относительно типов циклорам все верно.
Но верно при точном слове "обычно". Данный случай выходит за эти рамки.

Сейчас на потолке смонтированы пирамидки. Я предполагаю дополнить систему подвесными бафлами. Нужное количество и точки подвеса, пока, не ясны.
Достаточно ли заложенного уклона плоскостей и их раскрывает для того чтобы звук "уходил" вверх?
Александр Я.
 
Posts: 4
Joined: 10 Apr 2019, 12:34

Re: Как победить эхо в циклораме

Postby Андрей Смирнов » 12 Apr 2019, 15:02

Что вы имеете ввиду под пирамидками?
Поролон?
Если это так, то это неправильно.
Во-первых, поролон горючий материал.
Во-вторых, это всего лишь ВЧ поглотитель с небольшим захватом СЧ диапазона, а необходимо полноценное широкополосное поглощение.

3_porolon_acoustic.ua_275_275.jpg
3_porolon_acoustic.ua_275_275.jpg (30.18 KiB) Viewed 5581 times
...ничто не слишком...(с) Кармадон, "Альтист Данилов"
http://www.akustik.ua - акустическое проектное бюро
http://www.acoustic.ua - звукоизоляционные материалы
............................................
User avatar
Андрей Смирнов
Soundmoderator
 
Posts: 8791
Joined: 29 Aug 2006, 12:24
Location: Украина, Киев

Re: Как победить эхо в циклораме

Postby Александр Я. » 12 Apr 2019, 17:28

Согласен, но сделанное обсуждать бессмысленно.
Есть предложение вернуться к основным вопросам темы.

1) достаточно ли изображенного решения чтобы справиться с эхом?
По сути я пытаюсь понять:
- является ли вариант, к которому я пришел оптимальным в данных условиях?
- позволит ли этот вариант снизить уровень паразитных отражений ?

2) есть ли какие дополнительные (более эффективные) способы борьбы с паразитными отражениями в рамках существующих условий?
Возможно эффект эха может быть снижен за счет изменения угла раскрыва, возможно есть еще какие то подходы.

3) целесообразно ли заполнять минватой весь внутренний объем конструкции?
Забить несколько кубов ваты в объем задача не хитрая, вопрос разумно ли это и есть ли в этом необходимость.
Александр Я.
 
Posts: 4
Joined: 10 Apr 2019, 12:34

Re: Как победить эхо в циклораме

Postby Андрей Смирнов » 12 Apr 2019, 18:28

Александр Я. wrote:Согласен, но сделанное обсуждать бессмысленно.
Есть предложение вернуться к основным вопросам темы.

1) достаточно ли изображенного решения чтобы справиться с эхом?
По сути я пытаюсь понять:
- является ли вариант, к которому я пришел оптимальным в данных условиях?
- позволит ли этот вариант снизить уровень паразитных отражений ?
Эффект эха не имеет к вашей конструкции никакого отношения и зависит только от объема помещения и фонда звукопоглощения.
2) есть ли какие дополнительные (более эффективные) способы борьбы с паразитными отражениями в рамках существующих условий?
Возможно эффект эха может быть снижен за счет изменения угла раскрыва, возможно есть еще какие то подходы.
то, что вы имеете ввиду, скорее всего порхающее эха или флаттер, который возникает меду плоскопараллельными поверхностями стен. Если суммарный угол наклона противоположных стенок циклорамы составляет 10 градусов и более, то не стоит бояться появления флаттера
3) целесообразно ли заполнять минватой весь внутренний объем конструкции?
Забить несколько кубов ваты в объем задача не хитрая, вопрос разумно ли это и есть ли в этом необходимость.
в этом необходимости нет
...ничто не слишком...(с) Кармадон, "Альтист Данилов"
http://www.akustik.ua - акустическое проектное бюро
http://www.acoustic.ua - звукоизоляционные материалы
............................................
User avatar
Андрей Смирнов
Soundmoderator
 
Posts: 8791
Joined: 29 Aug 2006, 12:24
Location: Украина, Киев


Return to Акустика приміщень

Who is online

Users browsing this forum: No registered users and 1 guest

cron