Музыкальная комната расположена в жилом доме в центральной части Киева на берегу днепровского канала.
Постановка задачи клиента заключалась в реализации относительно недорогой, но изящной коррекции акустики помещения.
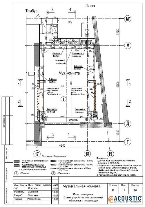
Мы корректировали и меняли форму и объем исходного помещения неправильной формы.
Состав проектных работ:
-компьютерное моделирование акустики помещения;
-расчет оптимального времени реверберации (RT-60);
-анализ и корректировка структуры ранних отражений;
-расчет требуемого фонда звукопоглощения;
-разработка схемы размещения и выбор ассортимента акустических материалов
-проведение натурных измерений до и после акустической подготовки помещения
В акустической отделке применялись акустические декоративные панели Topakustik (Италия), акустическая минеральная вата Acousticwool, диффузоры Шредера и элементы интерьера, заметно влияющие на акустику помещения: открытые стеллажные конструкции.
Результат рекомендованных мероприятий удовлетворил не только клиента, но и приятно удивил самих разработчиков проекта

Основной целью проекта было достижение максимально точной локализации звуковой сцены при условии её большого размера.
Кто в теме, тот поймет сложность задачи.
Цель была реализована на 100%... что очень-очень редко бывает...

Задача заключалась в том, чтобы звук в относительно небольшой комнате был хоть как-то похож на звучание в камерном зале.
Эта задача была выполнена полностью.
В комнате совершенно нет ощущения "комнаты".
Даже не закрывая глаза, представляешь себя, ну скажем в каком-то клубе достаточно большого объема, где слева и справа нет никаких стен.
Субъективно воспринимаемый объем помещения существенно больше реальных размеров комнаты.
Этого я и хотел добиться в первую очередь при условии максимально приближенной к реальности звуковой сцене.
Фотосессия: Евгений Золотов http://www.f-studiophoto.com