Vibrofix

Строительство контрольной комнаты

Кімнати прослуховування, домашні кінотеатри, студії звукозапису, концертні зали, клуби, спортивні споруди, конференц-зали тощо. Звукопоглинальні матеріали, акустичні дифузори, бастрапи

Строительство контрольной комнаты

Postby Rifat77 » 26 May 2015, 18:52

Приветствую всех на столь замечательном форуме!

У меня возникла потребность в создании контрольной и вокальной комнаты. Внимательно читал и анализировал как проект реализованный в Полтаве, так и книги Ф.Ньюэла. На базе таких обрывочных данных и не имея опыта в подобных работах (акустика помещения), нарисовал рабочий проект. Пока это пробный проект, под одну идею, но если она начнет приносить дивиденды то буду строить студию с нуля с приглашением настоящих специалистов. Поэтому в данном проекте не стремлюсь к идеалу, но хочется получить максимум качества за минимум вложений. Подскажите по проекту, в правильном-ли я направлении двигаюсь.
Просто сроки поджимают, поэтому быстрее все сделать самому (скорее всего это ошибка, но и учиться надо пусть даже на своих ошибках). Буду благодарен за любую полезную информацию.

Коротко о проекте.
1. Плавающий пол на 50 мм мин вате Шумостоп высокой плотности. Заливка армирующим бетоном 120 мм. Сверху бетона паркетная доска 16 мм.
2. Внешние бетонные стены оклею мин ватой 50 мм.
3. Внутренние стены и потолок (за исключением стен под мониторы) буду делать каркасные из бруса 100x100 с минватой 100 мм. и двойным слоем ГВЛ.
4. Отдельно планирую возвести стены из пеноблоков с засыпкой их песком для встраивания в них мониторов.
5. Мониторы будут создавать ребята из Н-Мониторс (пока конструируют)
6. финальную обработку и коррекцию уже буду делать по факту измерений.
7. Внутренние полости между стенами, а также потолком, планирую завешивать басовыми ловушками (фанера с двусторонней оклейкой мин ватой 50 мм.)
Столь большие промежутки обусловленны тем, что по центру на стенах и потолке комнаты по всей длинне идет несущая конструкция из швеллера 200 мм.
Комната находится на промышленном предприятии, без тяжелого станкопромышленного оборудования. Поэтому сильных шумовых помех не производит.
В пустые проемы установлю двери.

Основной вид моей деятельности это производство рекламных конструкций, соответственно владею парком различного высокоточного оборудования, что позволяет изготовить абсолютно любые конструкции которые могут быть полезны при акустической обработке данного помещения, но не имею опыта и знаний в этой области. Если кому-что нужно по данной тематике произвести в Москве, милости просим.

Заранее благодарю за любые подсказки, рекомендации, критику.

Рифат.
Attachments
sverhu.jpg
sverhu.jpg (219.56 KiB) Viewed 5764 times
sboku.jpg
sboku.jpg (129.42 KiB) Viewed 5764 times
Rifat77
 
Posts: 3
Joined: 26 May 2015, 16:39
Location: Москва

Re: Строительство контрольной комнаты

Postby Андрей Смирнов » 26 May 2015, 20:59

Rifat77 wrote:Приветствую всех на столь замечательном форуме!

У меня возникла потребность в создании контрольной и вокальной комнаты. Внимательно читал и анализировал как проект реализованный в Полтаве, так и книги Ф.Ньюэла. На базе таких обрывочных данных и не имея опыта в подобных работах (акустика помещения), нарисовал рабочий проект. Пока это пробный проект, под одну идею, но если она начнет приносить дивиденды то буду строить студию с нуля с приглашением настоящих специалистов. Поэтому в данном проекте не стремлюсь к идеалу, но хочется получить максимум качества за минимум вложений. Подскажите по проекту, в правильном-ли я направлении двигаюсь.
Просто сроки поджимают, поэтому быстрее все сделать самому (скорее всего это ошибка, но и учиться надо пусть даже на своих ошибках). Буду благодарен за любую полезную информацию.

Коротко о проекте.
Ошибки колоссальные во всём!!! Вы что-то где-то прочитали, что-то где-то увидели, но смогли оценить полученную информацию не с точки зрения архитектурной физики, а с точки зрения ваших личных представлений, но они несколько расходятся с физикой процесса. Далее по порядку.
1. Плавающий пол на 50 мм мин вате Шумостоп высокой плотности. Заливка армирующим бетоном 120 мм. Сверху бетона паркетная доска 16 мм.
Шумостоп это не вата высокой плотности, это вата невысокой плотности - всего 60 кг/куб.м. Толщина этого материала всего 20 мм и толщины 50 мм не бывает. бетонная стяжка толщиной 120 мм может быть устроена поверх монолитного бетонного межэтажного перекрытия с поверхностной массой не менее 450 кг/куб.м. Если у вас перекрытие легче, то плавающий пол будет не эффективен или даже вреден.
2. Внешние бетонные стены оклею мин ватой 50 мм.
Не понятно зачем
3. Внутренние стены и потолок (за исключением стен под мониторы) буду делать каркасные из бруса 100x100 с минватой 100 мм. и двойным слоем ГВЛ.
Каркас для облицовки ГКЛ или ГВЛ с таким мощным брусом это более чем избыточно. Праильное сечение бруса 100х50 мм.
4. Отдельно планирую возвести стены из пеноблоков с засыпкой их песком для встраивания в них мониторов.
совершенно бессмысленное мероприятие, непонятно зачем и какая цель преследуется, если остальные стены будут каркасными
5. Мониторы будут создавать ребята из Н-Мониторс (пока конструируют)
6. финальную обработку и коррекцию уже буду делать по факту измерений.
7. Внутренние полости между стенами, а также потолком, планирую завешивать басовыми ловушками (фанера с двусторонней оклейкой мин ватой 50 мм.)
Басовые панельные ловушки подвесного типа нельзя монтировать внутри звукоизоляционной облицовки, это не имеет смысла. Такие поглотители монтируются в акустической оболочке, которая декорируется и закрывается только звукопрозрачными материалами, например, тканью.
За облицовкой ГКЛ такая конструкция поглотителя работать не будет.

Столь большие промежутки обусловленны тем, что по центру на стенах и потолке комнаты по всей длинне идет несущая конструкция из швеллера 200 мм.
Комната находится на промышленном предприятии, без тяжелого станкопромышленного оборудования. Поэтому сильных шумовых помех не производит.
В пустые проемы установлю двери.

Основной вид моей деятельности это производство рекламных конструкций, соответственно владею парком различного высокоточного оборудования, что позволяет изготовить абсолютно любые конструкции которые могут быть полезны при акустической обработке данного помещения, но не имею опыта и знаний в этой области. Если кому-что нужно по данной тематике произвести в Москве, милости просим.

Заранее благодарю за любые подсказки, рекомендации, критику.

Рифат.
...ничто не слишком...(с) Кармадон, "Альтист Данилов"
http://www.akustik.ua - акустическое проектное бюро
http://www.acoustic.ua - звукоизоляционные материалы
............................................
User avatar
Андрей Смирнов
Soundmoderator
 
Posts: 8791
Joined: 29 Aug 2006, 12:24
Location: Украина, Киев

Re: Строительство контрольной комнаты

Postby Rifat77 » 27 May 2015, 01:31

Андрей, спасибо за ответы.

Я сразу и написал, что нахватался поверхностно, теперь пытаюсь в ускоренном темпе систематизировать информацию. Надеюсь подобное обсуждение с выявлением неверных решений облегчит участь и других участников в ненабивании шишек за свой счет ))

1.Шумостоп С2 - плотность 70. К2- плотность 90-100 (был уверен в цифре 140, надо внимательнее мне читать спецификации..). Толщины 20 мм. в два слоя 40 мм. И тут я не прав, почему-то был уверен что они 25 мм. Чем их лучше заменить, если они не подходят? Пол в помещении на первом этаже. Нагружать можно по полной. Использовать Силомер? Если не сложно дайте короткие рекомендации, какой именно и в среднем желательную нагрузку на него.
2. Внешние стены собирался оклеить мин ватой для большей шумоизоляции, считаете это избыточным решением?
3. Рекомендуете все внутренние стены выполнить из пеноблоков? достаточно-ли будет ширины таких стен в 190 мм? Строить внутренние стены нужно параллельно основным , с отступом на толщину минваты , затем деревянным каркасом придать форму, или-же строить их сразу нужной формы, то тогда чем заполнить пустоты между основной стеной и внутренней?
4. Басовые ловушки подвесного типа пытался реализовать как у вас в Полтавском проекте, т.е. потолок и передняя стенка в нем это ткань? Тогда стало самому понятно, как это действует )).

А что скажете насчет самой формы помещения? Какие-нибудь общие рекомендации именно для подобного размера помещения, с учетом, что в задней стене будет дверь в вокальную комнату (ширина проема там более 1.5 метров поэтому можно сдвинуть дверь либо к боковой стене либо к середине.
Если не сочтете за наглость дайте какой нибудь чертежик от руки для понимания в каком направлении двигаться, с отметками где наиболее правильно сделать место звукорежиссер, где установить мониторы, какие отступы от стен сделать в задней части для подвесных басовых ловушек и т.д.

Получается такой мини проект (готов к сотрудничеству на возмезной основе, только сроки горят)

Очень благодарен за ответы, и за терпение...

Рифат.
Rifat77
 
Posts: 3
Joined: 26 May 2015, 16:39
Location: Москва

Re: Строительство контрольной комнаты

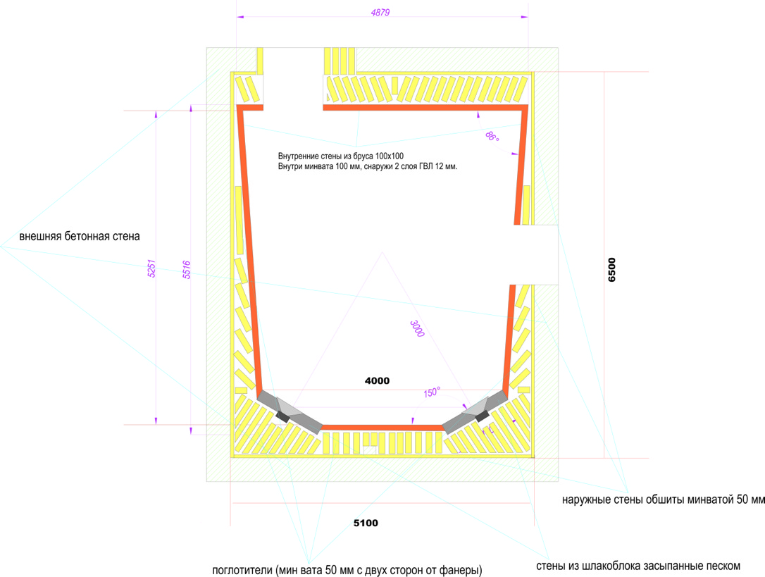
Postby Rifat77 » 27 May 2015, 18:08

Андрей, заранее извеняюсь.

Посмотрите пожалуйста еще.
Я тут по быстрому набросал чертежи. Помогите определиться какой из вариантов наименее худший в моей ситуации.
Серые стены - Бетонные блоки с засыпкой песком
Коричневые стены - Брус с акустической тканью
Желтые элементы - подвесные басовые ловушки

Заранее благодарю.

Форум не дал загрузить картинки поэтому с хостинга.

Image
Image
Image
Rifat77
 
Posts: 3
Joined: 26 May 2015, 16:39
Location: Москва

Re: Строительство контрольной комнаты

Postby Андрей Смирнов » 28 May 2015, 20:42

Rifat77 wrote:Я тут по быстрому набросал чертежи. Помогите определиться какой из вариантов наименее худший в моей ситуации.

Вариант 2...
...ничто не слишком...(с) Кармадон, "Альтист Данилов"
http://www.akustik.ua - акустическое проектное бюро
http://www.acoustic.ua - звукоизоляционные материалы
............................................
User avatar
Андрей Смирнов
Soundmoderator
 
Posts: 8791
Joined: 29 Aug 2006, 12:24
Location: Украина, Киев


Return to Акустика приміщень

Who is online

Users browsing this forum: No registered users and 12 guests