Уважаемый Андрей,
Затеваю ремонт квартиры в новостройке, и прошу ваших пояснений,
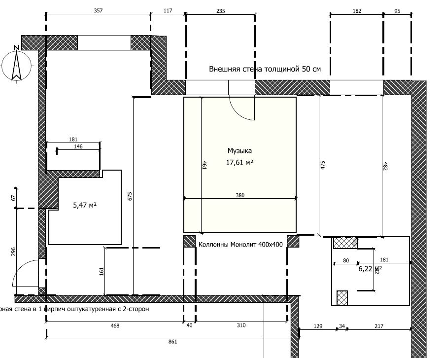
Исходные данные: на рисунке-1 комната Звук, т.е комната для КДП и возможно ДК.
Дом монолито – кирпичный, толщина внешней стены – 500 мм. межквартирная стены в 1-н полнотелый красный кирпич оштукатурены с двух сторон, толщина перекрытий 230 мм., монолит. Перегородки из пазогребневых гипсовых плит снесены. Высота по перекрытиям - 271 мм. Исходя из рекомендаций
"Соответствие размеров студийных помещений международным стандартам" были выбраны размеры длина – 4,6 м., ширина – 3,8 м., высота – 2,5 м.
Стены монтируются на независимых каркасах 100 в соответствии с рекомендациями сборника чертежей, обшиваются в три слоя ГКЛ + ГВЛ + ГКЛ, с заполнением Роквул Акустик Баттс или ПАРОК ССБ-1.
На окно – тяжелая штора, дверь - с уплотнением по периметру.
Потолок на каркасе с вибро развязкой, обшивается 2-мя слоями ГКЛ, с заполнением Роквул Акустик Батсс или ПАРОК ССБ-1.
В сборнике чертежей, W623 Примыкание к перекрытию п. 3.19 (примыкание подвесного потолка к каркасной стене ) и п. 3.22 (примыкание каркасной стены к подвесному потолку ) указаны два вида примыканий.
Чтобы увеличить ЗИ на НЧ какое выбрать примыкание? Т.е. хочется оптимального значения и по ударному и по воздушному шуму.
А вот по полам муки выбора. Для визуального комфорта хочется, что б визуально потолок был не ниже 250 см., с учетом подвесного потолка и ламината на пол остается 11-12 см..
Остаются 2 варианта пола,
а) Плавающий 25 мм + 25мм ( роквул) + 80мм (стяжка 150 кг/м), но смущает возможная усадка пола и монтаж потолка к каркасной стене п.3.19
б) Пол по лагам 30мм + 30 мм (АКУСТИК БАТТС или ПАРОК ССБ-1) + 23 ОСБ + 10 ГВЛ + 23 ОББ, в этом случае, усадки пола можно не опасаться и делать примыкание стен к потолку.
Заранее спасибо за пояснения.
