Vibrofix

комната с эркером

Кімнати прослуховування, домашні кінотеатри, студії звукозапису, концертні зали, клуби, спортивні споруди, конференц-зали тощо. Звукопоглинальні матеріали, акустичні дифузори, бастрапи

комната с эркером

Postby skydog » 16 Nov 2010, 19:30

Здравствуйте, Андрей!

Искренне Вам благодарен за Вашу помощь на форумах. Вы, наверное, один из немногих оказываете народу аудиофильскому такую профессиональную и действенную поддержку в борьбе с волновым беспределом разных помещений... Спасибо Вам!
Нахожусь в стадии ремонта и хотелось бы получить от Вас консультацию по акустическому оформлению комнаты для прослушивания/жилой в кирпичном особняке в г.Черновцах. В настоящее время стены отштукатурены, все звенит в комнате,бас убежал, т.к. убрана мебель, ковры и т.п.На прилагаемом рисунке планирую: 1.во фронтальных углах установить низкочастотные поглотители Вашей конструкции. Здесь сразу хотел бы обратиться за помощью в коррекции размеров и конструкции , а также приобретении необходимого материала (общий бюджет до $1500 ). Минваты соответствующей плотности в 50 ед. у нас нет. Материала (как вы советуете, ДВП в 6мм) для мембраны НЧКП 60Х320 у нас также проблематично найти. Планирую фронтальные углы закрыть до потолка полностью но, в середине в одной плоскости с поглотителями от 150 до 220см сделать небольшие ниши для дизайна с полками, которые будут контактно не связаны с нижними и верхними НЧКП. Возможно ли такое сочетание?
Image
Фронтальная стена вместе с эркером закрывается шторой. Тыльная стена за диваном - скорее диффузоры Шредера. Какого размера предпочтительнее диффузоры? Боковые стены - там стол, книжный шкаф у другой стены и полочки \стеллажи для дисков.На стены планирую виниловые обои. Не хотелось бы комнату переглушить.
3.Потолок от синей линии зашиваю гипсокартоном с минватой внутри для крепления штор на фронтальную стену с эркером. От гипсокартона да конца потолка в сторону дивана, двери планирую установить Clipso натяжной акустический потолок. Вы где-то писали, что такие потолки приемлемы. Не будет ли натяжной провисать от изменения температуры? У нас акустических не устанавливают, придется опять заказывать из Киева.
4.Пол уже лежит, поверх будет большой ковер.
Колонки высокие -130см, широкополосные Таннои, усиление- лампа.
Хотелось бы услышать Ваше мнение\консультацию по такому варианту оформления. Или что-то надо радикально менять? А также по-возможности помочь с необходимыми материалами.
С уважением,

Владимир

skydog

Сообщения: 0
Зарегистрирован: 14 ноя 2010, 01:32

* Личное сообщение
skydog
 
Posts: 4
Joined: 14 Nov 2010, 01:32

Re: комната с эркером

Postby Андрей Смирнов » 18 Nov 2010, 14:17

Привет, skydog

К сожалению картинка не открывается...
...ничто не слишком...(с) Кармадон, "Альтист Данилов"
http://www.akustik.ua - акустическое проектное бюро
http://www.acoustic.ua - звукоизоляционные материалы
............................................
User avatar
Андрей Смирнов
Soundmoderator
 
Posts: 8791
Joined: 29 Aug 2006, 12:24
Location: Украина, Киев

Re: комната с эркером

Postby skydog » 18 Nov 2010, 22:49

Image
skydog
 
Posts: 4
Joined: 14 Nov 2010, 01:32

Re: комната с эркером

Postby Андрей Смирнов » 19 Nov 2010, 11:53

skydog,

во-первых, если есть такая возможность, я бы предложил ориентировать комнату справа налево (по рисунку), т.е. АС поставить вдоль левой стены (на расстоянии примерно 1,5 м), а диван расположить на расстоянии примерно 1-1,2 м от правой стены. Но я думаю, что эта планировка традиционно не будет принята....:) Да, впрочем, это не радикально критично, т.к. комната практически квадратная...:)
Из-за формы комнаты и отсутствия соответствующего поглощения в данный момент на НЧ и СЧ должны быть очень сильные искажения и неравномерность АЧХ.
Если планировка не изменится, то сначала надо решить самые важные проблемы: высокая гулкость помещения, порхающее эхо, НЧ резонансы.

Штора, ковер и акустический натяжной потолок практически решат проблему гулкости.

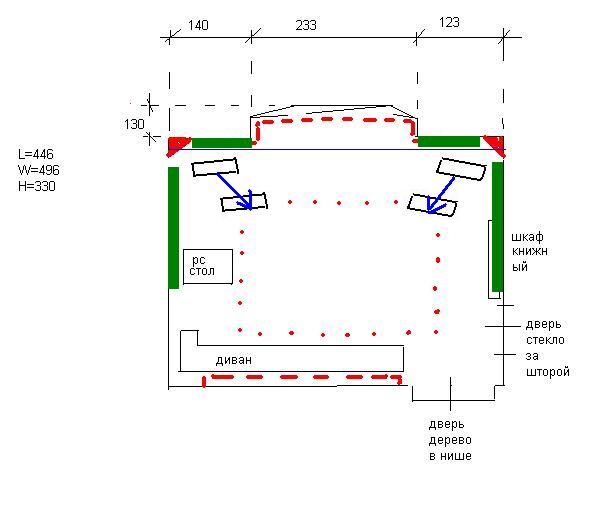
Для исключения порхающего эха необходимо на стенах разместить звукопоглощающие панели в плоскости АС (по длине и ширине комнаты). Для этой цели подойдут акустические панели Heradesign смонтированные на деревянном каркасе глубиной 50 мм и заполненном акустической минеральной ватой AcousticWool или аналогичной. Если на боковых стенах применить панели размером примерно 1200 х 1800 мм, то мы одновременно обработаем и площадки первых отражений, что очень важно для звуковосприятия на средних частотах. Панели обозначены зелеными линиями.
skydog.JPG
skydog.JPG (27.16 KiB) Viewed 11222 times

Для снижения (не исключения!!!) нежелательного влияния комнатных мод сначала рекомендуется правильно расположить АС. Расположение можно расчитать с помощью калькулятора (для квадратных комнат в данном случае) http://www.acoustic.ua/forms/calculator3.html
Ориентировочное перемещение показано стрелками.
Кроме этого, в трех углах комнаты (в одном мешает дверь) следует смонтировать угловые поглотители из минеральной базальтовой ваты высокой плотности (90-150 кг/куб.м). Лучше конечно применить плиты из стекловолокна плотностью 48-55 кг/куб.м, но это дороже.
superchunks.JPG
superchunks.JPG (50.03 KiB) Viewed 11783 times
...ничто не слишком...(с) Кармадон, "Альтист Данилов"
http://www.akustik.ua - акустическое проектное бюро
http://www.acoustic.ua - звукоизоляционные материалы
............................................
User avatar
Андрей Смирнов
Soundmoderator
 
Posts: 8791
Joined: 29 Aug 2006, 12:24
Location: Украина, Киев

Re: комната с эркером

Postby skydog » 19 Mar 2012, 01:38

Андрей , здравствуйте!

Не прошло и два года как ремонт подошел к концу. Хотелось бы поделиться сделанным акустическим оформлением и полученным звуком.
Основное : углы были заложены минватой около 50 плотностью и закрыты крашенной мембраной из ДВП 4мм, длина мембраны получилась 60х280 (все три угла). Стены закрыты толстыми негладкими обоями, включая углы с мембранами. Потолок установлен акустический Clipso с минватой над ним. Систему (ламповый усилитель на 300В и колонки Tannoy Gold 15") установили , как Вы и рекомендовали, слева. Диван напротив, слева от колонок - пару книжных шкафов с полками и дисками, эркер пока шторой не закрыт. На полу практически по всей свободной части ковер.
Звук. Включив систему не сразу понял что произошло. Ушла некоторая резкость, которая все-таки присутствовала в пустом помещении. Порадовало, что не переглушил комнату, ибо такие опасения были и этого не хотелось допустить, ибо тогда классика бы погибла вся , да и не только она. Середина- верх практически без проблем: спокойно и красиво, живо там где надо. Вечно проблемный низ. Он стал очень артикулированный, можно спокойно ноты списывать, партии баса и контрабаса отчетливы, без гула и тянучки. Временами даже кажется, что низ слишком плотный. После отрыва колонок от пола стал немного мягче. Мой товарищ, строитель колонок и инсталлятор, который кстати сооружает другие корпуса под динамики, заметил, что немного не хватает нижней середины и самого низа. Могло ли это произойти под воздействием (работой) мембран? Это исправимо? Чем? Есть ли пути некоторого смягчения низа, если понадобится вообще? А в целом, благодаря Вашим рекомендациям, музыку слушаю на малом и нормальном уровне по нескольку часов в день, т.е. как выражается мой сын - она не напрягает. А это очень важный показатель, когда музыка нигде не напрягает по звуку(содержание это другой вопрос).

Владимир
skydog
 
Posts: 4
Joined: 14 Nov 2010, 01:32

Re: комната с эркером

Postby skydog » 24 Apr 2013, 12:33

Андрей, Добрый день!

Напомню ситуацию. По Вашей рекомендации колонки в больших новых корпусах стоят у левой стены от эркера (а не как на рисунке). диван - напротив, углы заделаны НЧП с минватой и 4 мм ДСП мембраной с Тексаундом. После настройки фильтров колонок и проведения измерений с микрофоном обнаружились всплески на 60 -80 Гц. Слышны даже без микрофона, басовые ноты этого диапазона явно дают всплеск, который весьма неприятен на фоне ровной картины в остальном спектре.
По расчетам 60-80 Гц должны перекрываться низкочастотными угловыми поглотителями . В тоже время это как раз вторая мода стояков комнаты.
Посоветуйте чем еще можно пригасить этот всплеск на 60-80 ГЦ.

Владимир
skydog
 
Posts: 4
Joined: 14 Nov 2010, 01:32

Re: комната с эркером

Postby Андрей Смирнов » 24 Apr 2013, 13:29

Добрый день, Владимир,
приятно слышать, что ваши усилия дают позитивные результаты, это самое главное.
Если "всплески на 60 -80 Гц" обнаружились после настройки фильтров колонок, то, наверное, причину надо искать в самих колонках. Если же "всплески" были слышны и до настройки фильтров, то следует тщательно поработать на оптимизацией расстановки АС в комнате. Иногда даже небольшое смещение 4- см может внести заметное изменение в звучание на НЧ.
В общем случае 60-80 Гц это, как правило, влияние моды пол/потолок, хотя могут влиять и элементы интерьера и корпусная мебель. Возможно помогут дополнительные НЧКП настроенные на проблемную частоту. Решение подобных проблем всегда процесс творческий :)
...ничто не слишком...(с) Кармадон, "Альтист Данилов"
http://www.akustik.ua - акустическое проектное бюро
http://www.acoustic.ua - звукоизоляционные материалы
............................................
User avatar
Андрей Смирнов
Soundmoderator
 
Posts: 8791
Joined: 29 Aug 2006, 12:24
Location: Украина, Киев


Return to Акустика приміщень

Who is online

Users browsing this forum: No registered users and 2 guests