Здравствуйте.
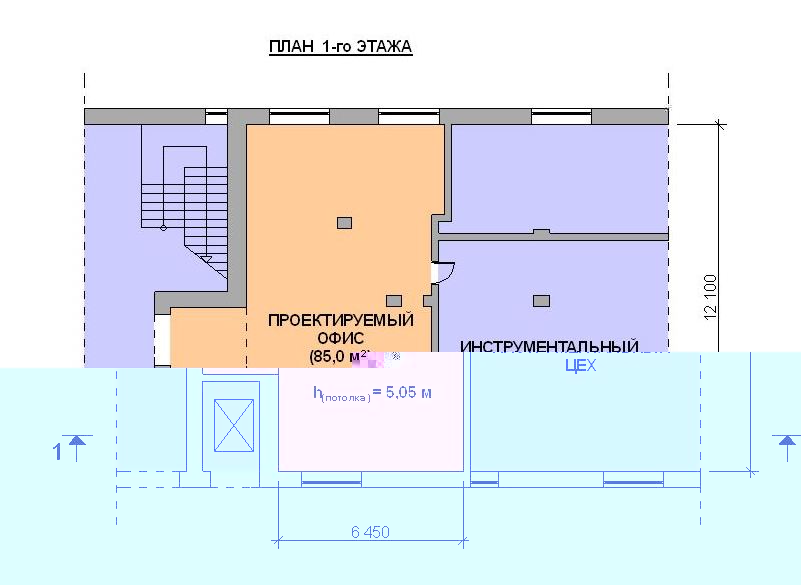
Существует 2-х этажное промышленное здание (цех начала 20 века). Необходимо запроектировать офисные помещения на 1-этаже (85 м2, высота потолка h=5,05м, стены кирпичные, перекрытия ж/б). В соседнем помещении и на 2-м этаже работают металлообрабатывающие станки. Подскажите пожалуйста, как и какими материалами осуществить мероприятия по звукоизоляции. Насколько эффективны в данном случае такие меры (как шум влияет на работоспособность людей, работающих в офисе). Хочется, чтобы офис работал в максимальной тишине.
Заранее спасибо.
