Здравствуйте. Строю дом по канадской технологии (сэндвич-панели) http://www.tvdm.ru (проект ШЕРВУД-2, без веранды).
Внешние стены 160мм (плита ОСБ (10мм)-пенопласт-ОСБ(10мм), перекрытия 160мм, перегородки 120мм.
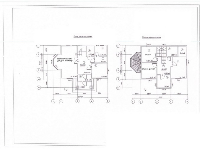
Встал вопрос о размещении домашнего кинотеатра и ЗВУКОИЗОЛЯЦИИ комнаты с эркером 26 м2. На втором этаже будет детская(ие).
Высота первого этажа 2.8 м, а второго 2.5 м.
Я думаю нужно сделать звукоизоляцию (по ВАШЕЙ рекомендации) потолка первого этажа + будет натяжной потолок.
Как вы думаете, будет ли этого достаточно (чтобы не красть высоту второго этажа), или понадобится еще плавающий пол на втором этаже?
Нужна ли будет звукоизоляция стен в комнате с эркером? С уважением…
