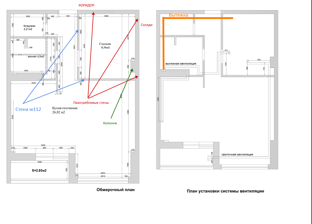
Добрый день! Есть квартира в каркасно-монолитном доме. В ходе перепланировки получилась спальня без окна. Буду устанавливать приточную установку, а также вытяжку в общий канал. Приточная установка будет на балконе с глушителем. Вытяжка будет идти не по проекту, а через гардеробную, где будет установлен канальный вентилятор и глушитель.
Приточный диффузор и вытяжной будут в потолке. вентиляционные каналы будут проходить через верхний край стен
Стены спальни w112 толщиной 100 мм (слой ГВЛ+ГКЛ с каждой стороны, внутри стены Акустик баттс).
В квартире не жил, соседи тоже не живут, ремонты делают, слышен только перфоратор и прочие ремонтные звуки). На всякий случай подумываю сделать звукоизоляцию в спальне. Из вероятных неудобств: звук открывающихся/закрывающихся соседских дверей, каблуков по плитке, звук телевизора, разговора за стеной. Пару вопросов:
1. Потолок будет опускаться минимум на 8 см для воздуховодов, имеет ли смысл устройство звукоизоляционного потолка D113, если в нем будет два вентиляционных диффузора 125 мм в диаметре, может это сведет на нет всю работу по звукоизоляции?
2. Для стен из пазогребневых плит рассматриваю w623, имеет ли смысл звукоизолировать колонну или нет?
