Vibrofix

В мыслях о звукоизоляции квартиры...

Обговорення проблем захисту від шуму, звукоізоляції приміщень, віброізоляції обладнання.
Проєктування, матеріали, вимірювання

В мыслях о звукоизоляции квартиры...

Postby TpcAlam » 06 Mar 2019, 21:24

Здравствуйте, Андрей!

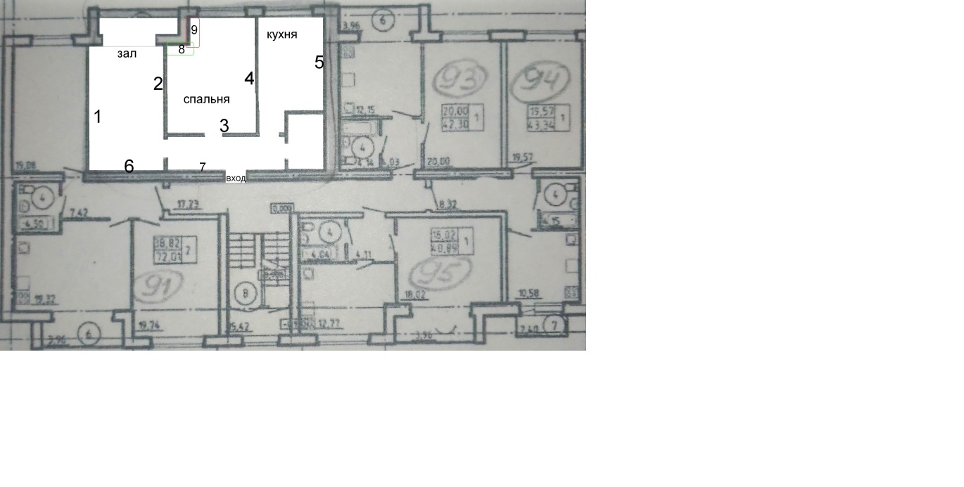
Прочитав много разных сообщений на этом форуме, и попытавшись собрать все воедино, в голове созревает план ремонта квартиры. Это 2х комнатная квартира на 2м этаже трехэтажного дома. План прилагается. Дом из кирпича, наружные стены имеют ширину в полтора кирпича. Плиты перекрытия около 200мм по толщине (скорее всего с пустотами), стяжки изначально никакой нет, как и никакой отделки.

Межкомнатные перегородки 2,3 и 4 выполнены из пеноблоков толщиной 100мм. Межквартирная перегородка 1 - из пеноблоков толщиной поболее (видимые размеры блоков - это 600х200, значит толщина стенки около 300мм, блоки уложены скорее всего боковой стороной вниз). Межквартирная перегородка 5 - из кирпича (по толщине не меньше чем в кирпич судя по кладке, в ней вентиляционные каналы из самой кухни). Высота от пола до потолка в таком черновом виде - 3 м

Расположение перегородки №2 немного не устраивает, как и расположение входа в спальню. Эту перегородку будем "сдвигать" примерно на пол метра правее (чуть уменьшить спальню, но увеличить зал). Вход в спальню из коридора сдвинется чуть ближе к залу (а не посередине перегородки как сейчас).

Сосед сверху (уже живет), говорит, что через стену №1 все достаточно хорошо слышно, как, впрочем, и через стену №5. Насколько я понимаю, практически у всех стяжки поверх плит без каких-либо подложек, в коридорах/ванных/кухнях уложена плитка. Немного пожив на своей предыдущей квартире, я с ума сходил от ежедневного "соседства с соседями" (шумоизоляция была отвратительная). В этой хочу большего комфорта. В голове складываются отдельные пазлы от общей картины ремонта:


1. В зале и спальне плавающая стяжка толщиной 60-70 мм поверх Роквул Флор Батс.

2. Стена №1 обязательно штукатурится (потолще), потом конструкция 3.40 (W626) из 75го профиля с относом от стены около 5-6 см до минеральных плит (где-то прочитал на форуме про расчет частоты и запомнил величину относа). Внутри облицовки будет Роквул Акустик 50мм, потом, вероятно, ГВЛ 10 + ГКЛ 12,5 (к стене возможно что-то будет крепиться).

3. Перегородки 2,3 и 4... не знаю как быть. Снести и возвести новые по звукоизоляционным технологиям? Стенка №2 вообще будет разбираться....Вход в спальню по стенке №3 после всех переделок будет примерно через пол метра от нового расположения стены №2, так что, наверное, этот кусочек стены №3 из пеноблоков будет крайне хлипким. Наверное, не очень надежной получится конструкция, если стену №3 оставить из пеноблоков, а стену №2 сделать звукоизоляционной (на этих стенах будут же двери). Допускается ли изготовление звукоизоляционных перегородок граничащих с кухней (в данном случае стена №4)? Может оставить все перегородки из пеноблоков, но дополнительно звукоизолировать после оштукатуривания? В кухне, ванной и коридоре хотелось бы уложить плитку (еще и по причине "практичности" в случае потопа). Если все эти перегородки выполнить по звукоизоляционным технологиям, то боюсь, что в случае потопа могут быть очень плачевные последствия. А если оставить как есть, то вода врядли попадет под плавающие стяжки. Что бы Вы посоветовали, Андрей?

4. Стена №6 по аналогии со стеной №1, но меньшей глубиной, или по одной из схем W623 (пока даже не знаю имеет ли смысл вообще связываться с ней и дополнительно изолировать).

5. Нет уверенности нужно ли заниматься стенами 7,8 и 9. Думаю потом будет ясность. (Что бы Вы посоветовали исходя из своего опыта, Андрей?).

6. Стена №5 тоже как-то нуждается в дополнительной изоляции, что с ней делать пока не знаю, потом подумаю.

7. С потолками пока ничего не думал и не знаю, но, хотел бы и их (потом подумаю....)



Подскажите пожалуйста, Андрей, насколько правильно выбраны решения на данном этапе на пути создания комфорта в квартире? Может что-то желательно/нужно изменить на Ваш взгляд? Я еще не считал насколько все это потянет в финансовом плане....но комфорта очень хочется. Заранее очень благодарен.
Attachments
Send.jpg
Send.jpg (126.85 KiB) Viewed 53357 times
Многое в этой жизни именно в наших руках...
TpcAlam
 
Posts: 157
Joined: 02 Mar 2019, 16:14
Location: Ростовская область

Re: Звукоизоляция стен, пола и потолка (чертежи и схемы)

Postby TpcAlam » 10 Mar 2019, 15:01

Здравствуйте, Андрей.

Я всё в мыслях о звукоизоляции....Пытаюсь как-то разложить в голове все по полкам, упорядочить, понять где, что и как делать. Подскажите пожалуйста, если перегородки внутри квартиры (стены №2,3 и 4) оставить как есть, из пеноблоков, а после оштукатуривания эти стены дополнительно облицевать конструкцией 3.40 (W626) из 75го профиля с наименьшим относом от стены (около 1см) до профиля? Внутри облицовки будет Роквул Акустик 50мм, потом, например, 2 слоя ГКЛ 12,5 (ну или ГВЛ+ГКЛ). Я понимаю, что итоговая толщина стены/перегородки будет относительно большой, но я не планирую все стены с обоих сторон так облицовывать (например, со стороны коридора вообще ничего не трогать). Если спальню так дополнительно облицевать изнутри по стенам из пеноблоков, насколько получится эффективным такой вариант? Не получится, что перегородками из пеноблоков я сначала "ухудшу" звукоизоляцию, а потом буду бороться с посторонними звуками. Я готов немного пожертвовать размерами комнат ради акустического комфорта.
Многое в этой жизни именно в наших руках...
TpcAlam
 
Posts: 157
Joined: 02 Mar 2019, 16:14
Location: Ростовская область

Re: В мыслях о звукоизоляции квартиры...

Postby Андрей Смирнов » 10 Mar 2019, 15:24

Ваши "решения":
TpcAlam wrote:
3. Перегородки 2,3 и 4... не знаю как быть.
4. Стена №6 по аналогии со стеной №1, но меньшей глубиной, или по одной из схем W623 (пока даже не знаю имеет ли смысл вообще связываться с ней и дополнительно изолировать).
5. Нет уверенности нужно ли заниматься стенами 7,8 и 9. Думаю потом будет ясность.
6. Стена №5 тоже как-то нуждается в дополнительной изоляции, что с ней делать пока не знаю, потом подумаю.
7. С потолками пока ничего не думал и не знаю, но, хотел бы и их (потом подумаю....)

Ваш вопрос:
Подскажите пожалуйста, Андрей, насколько правильно выбраны решения на данном этапе на пути создания комфорта в квартире?

Трудно комментировать решения, которых нет. Есть только рассуждения на тему :)
...ничто не слишком...(с) Кармадон, "Альтист Данилов"
http://www.akustik.ua - акустическое проектное бюро
http://www.acoustic.ua - звукоизоляционные материалы
............................................
User avatar
Андрей Смирнов
Soundmoderator
 
Posts: 8791
Joined: 29 Aug 2006, 12:24
Location: Украина, Киев

Re: В мыслях о звукоизоляции квартиры...

Postby TpcAlam » 10 Mar 2019, 15:28

Да ужжжж, не поспоришь. Больше размышлений чем принятых решений.... А все из-за огромного желания не потратить зря время и деньги :(
Многое в этой жизни именно в наших руках...
TpcAlam
 
Posts: 157
Joined: 02 Mar 2019, 16:14
Location: Ростовская область

Re: В мыслях о звукоизоляции квартиры...

Postby Андрей Смирнов » 10 Mar 2019, 15:38

Ваши размышления необходимо реализовывать с помощью проекта и консультации профессионального акустика.
На форуме можно получить только общие ответы.
...ничто не слишком...(с) Кармадон, "Альтист Данилов"
http://www.akustik.ua - акустическое проектное бюро
http://www.acoustic.ua - звукоизоляционные материалы
............................................
User avatar
Андрей Смирнов
Soundmoderator
 
Posts: 8791
Joined: 29 Aug 2006, 12:24
Location: Украина, Киев

Re: В мыслях о звукоизоляции квартиры...

Postby TpcAlam » 10 Mar 2019, 15:54

Мне было бы спокойней, если бы я смог найти специалиста Вашего уровня в нашем регионе, который бы дал свои советы и рекомендации. Я даже рассмотрел бы вариант проекта (если это посильная для меня сумма), готов заплатить за консультацию профессионального акустика с большим опытом, но в нашей "провинции" таких специалистов нет, по крайней мере на просторах интернета я не нашёл. Вот и приходится с некоторым "волнением и неуверенностью в себе" искать какой-то выход :( :( :(. Квартира в хорошем для меня районе, очень нравится планировка. Понимаю, если сейчас не сделать с самого начала все правильно, то потом и не переделаешь..... И как же быть ? :?
Многое в этой жизни именно в наших руках...
TpcAlam
 
Posts: 157
Joined: 02 Mar 2019, 16:14
Location: Ростовская область

Re: В мыслях о звукоизоляции квартиры...

Postby TpcAlam » 14 Mar 2019, 23:15

Здравствуйте, Андрей!

После Ваших ответов снова погрузился в чтение...стал внимательно перечитывать разные сообщения.

Если следовать общим рекомендациям, то мне желательно снести перегородки 2,3 и 4 из пеноблоков, правильно? Вместо этого "музыкального безобразия" возвести ГКЛ перегородки, например на профиле 100мм. С этим мозг как-то не очень хочет мириться (стереотип мышления в чистом виде, всегда стены были из "кирпича", а тут получатся из гипсокартона). Но решение принял: перегородки под снос. Строители пообещали все сломать и вывезти.

Решение про полы в зале и спальне остается: плавающая стяжка по базальтовым плитам (в наших краях есть Rockwool Флор Батс). Перегородка №2 после обустройства пола будет крепиться к плавающей стяжке зала (граница раздельных стяжек будет вдоль стены №2). Хотя после прочтения некоторых сообщений есть какая-то неуверенность в абсолютно положительном результате (у нескольких людей были какие-то мистические "барабаны" при ходьбе по такой стяжке). Как я понял, причина таких явлений не выяснена....может где-то нарушили технологию, правильно?

Перегородки №3 и №4. Как быть на случай "всемирного потопа", чтобы вода не попала под базальтовые плиты? Как вообще поведет себя базальтовая плита, если под стяжку попадет вода? Нужно как-то защищаться от этого? Достаточно ли будет для защиты просто очень хорошо загерметизировать границу между стяжкой и стеной?
А как Вам такой вариант, Андрей? Если, например, по линиям этих будущих ГКЛ перегородок (№3 и №4) прямо поверх плиты перекрытия обустроить некий "бордюр"(из бетона и/или кирпича) шириной 100мм (под профиль) высотой около 200мм (финальный уровень чистого пола должен быть ниже этого бордюра). Тогда ГКЛ перегородка внизу будет крепиться не к плавающему полу, а к этому "бордюру". Вверху - к плите перекрытия. В таком случае мы вроде бы сохраняем отсутствие жестких связей. Насколько хорошо будет работать такая конструкция? Но этот вариант только если нужно как-то защититься от проникновения влаги под стяжку и плиты базальта.

Коридор, кухня и ванная. В идеале хотелось бы пол с водяным подогревом. Но как я почитал, 100% надежного решения совместить плавающую стяжку по упругому основанию и теплый водяной пол не существует. Правильно?
Тогда вопрос такой. Если поверх плит перекрытия (кажется 220мм с пустотами) обустроить стяжку с защитой только от ударного шума + теплый пол (так можно совмещать?). Толщина стяжки получится около 90мм (это если в кухне и коридоре выводить уровень стяжки в уровень с плавающей стяжкой в жилых комнатах: 25мм плита + 70мм стяжка). Какая получится защита по воздушному шуму от соседей снизу? Толщина стяжки что-то добавит к улучшению картины или нет? Получится ли комфортный уровень "неслышимости соседской жизни"?

И снова к разговору о потопе. Если в кухне и коридоре делать такую же плавающую стяжку по упругому основанию как в жилых комнатах (это если закрыть глаза на теплый пол ради акустического комфорта), то как защититься от попадания воды под стяжку? Что произойдет с базальтовой плитой под стяжкой? Что вообще может произойти нехорошего?


Параллельно хочется спросить про изоляцию по воздушному шуму. Вы писали, что

"плавающие полы по слою упругого волокнистого материала толщиной 20-30 мм увеличивают индекс изоляции воздушного шума на величину примерно 3-8 дБ в зависимости от толщины (плотности) стяжки"


Если я правильно понимаю, то сам диапазон (3-8 дБ) - это весьма различимая на слух разница. Неужели такая разница обусловлена только "качеством" стяжки? А есть какая-либо зависимость от самой минеральной плиты? И насколько "заметно" на слух если минеральную плиту уложить в 2 слоя, да еще и с бОльшей толщиной стяжки, как я прочитал в одном из Ваших советов? Я говорю сейчас только о воздушном шуме. Какие условия необходимы для достижения максимально возможной величины?
Многое в этой жизни именно в наших руках...
TpcAlam
 
Posts: 157
Joined: 02 Mar 2019, 16:14
Location: Ростовская область

Re: В мыслях о звукоизоляции квартиры...

Postby Андрей Смирнов » 15 Mar 2019, 13:19

TpcAlam wrote:Здравствуйте, Андрей!

После Ваших ответов снова погрузился в чтение...стал внимательно перечитывать разные сообщения.

Если следовать общим рекомендациям, то мне желательно снести перегородки 2,3 и 4 из пеноблоков, правильно? Вместо этого "музыкального безобразия" возвести ГКЛ перегородки, например на профиле 100мм. С этим мозг как-то не очень хочет мириться (стереотип мышления в чистом виде, всегда стены были из "кирпича", а тут получатся из гипсокартона). Но решение принял: перегородки под снос. Строители пообещали все сломать и вывезти.
перегородки 2,3 и 4 из пеноблоков однозначно лучше снести. ГКЛ перегородки обладают более высокой ЗИ и гораздо прочнее!!!
Решение про полы в зале и спальне остается: плавающая стяжка по базальтовым плитам (в наших краях есть Rockwool Флор Батс). Перегородка №2 после обустройства пола будет крепиться к плавающей стяжке зала (граница раздельных стяжек будет вдоль стены №2). Хотя после прочтения некоторых сообщений есть какая-то неуверенность в абсолютно положительном результате (у нескольких людей были какие-то мистические "барабаны" при ходьбе по такой стяжке). Как я понял, причина таких явлений не выяснена....может где-то нарушили технологию, правильно?
мистические "барабаны" наблюдались только у двоих участников из многих тысяч за 13 лет существования форума :)
Перегородки №3 и №4. Как быть на случай "всемирного потопа", чтобы вода не попала под базальтовые плиты? Как вообще поведет себя базальтовая плита, если под стяжку попадет вода? Нужно как-то защищаться от этого? Достаточно ли будет для защиты просто очень хорошо загерметизировать границу между стяжкой и стеной?
А как Вам такой вариант, Андрей? Если, например, по линиям этих будущих ГКЛ перегородок (№3 и №4) прямо поверх плиты перекрытия обустроить некий "бордюр"(из бетона и/или кирпича) шириной 100мм (под профиль) высотой около 200мм (финальный уровень чистого пола должен быть ниже этого бордюра). Тогда ГКЛ перегородка внизу будет крепиться не к плавающему полу, а к этому "бордюру". Вверху - к плите перекрытия. В таком случае мы вроде бы сохраняем отсутствие жестких связей. Насколько хорошо будет работать такая конструкция? Но этот вариант только если нужно как-то защититься от проникновения влаги под стяжку и плиты базальта.
"бордюр" из бетона и/или кирпича под перегородками это хорошее решение
Коридор, кухня и ванная. В идеале хотелось бы пол с водяным подогревом. Но как я почитал, 100% надежного решения совместить плавающую стяжку по упругому основанию и теплый водяной пол не существует. Правильно?
есть масса реализаций совмещения плавающего и теплого пола
Тогда вопрос такой. Если поверх плит перекрытия (кажется 220мм с пустотами) обустроить стяжку с защитой только от ударного шума + теплый пол (так можно совмещать?). Толщина стяжки получится около 90мм (это если в кухне и коридоре выводить уровень стяжки в уровень с плавающей стяжкой в жилых комнатах: 25мм плита + 70мм стяжка). Какая получится защита по воздушному шуму от соседей снизу? Толщина стяжки что-то добавит к улучшению картины или нет? Получится ли комфортный уровень "неслышимости соседской жизни"?
так можно делать и уровень ЗИ воздушного шума будет на 4-6 дБ выше, чем у самого перекрытия
И снова к разговору о потопе. Если в кухне и коридоре делать такую же плавающую стяжку по упругому основанию как в жилых комнатах (это если закрыть глаза на теплый пол ради акустического комфорта), то как защититься от попадания воды под стяжку? Что произойдет с базальтовой плитой под стяжкой? Что вообще может произойти нехорошего?
базальтовая вата как набирает влагу, так и отдает её, это неприятно, но не критично

Параллельно хочется спросить про изоляцию по воздушному шуму. Вы писали, что

"плавающие полы по слою упругого волокнистого материала толщиной 20-30 мм увеличивают индекс изоляции воздушного шума на величину примерно 3-8 дБ в зависимости от толщины (плотности) стяжки"


Если я правильно понимаю, то сам диапазон (3-8 дБ) - это весьма различимая на слух разница. Неужели такая разница обусловлена только "качеством" стяжки? А есть какая-либо зависимость от самой минеральной плиты? И насколько "заметно" на слух если минеральную плиту уложить в 2 слоя, да еще и с бОльшей толщиной стяжки, как я прочитал в одном из Ваших советов? Я говорю сейчас только о воздушном шуме. Какие условия необходимы для достижения максимально возможной величины?
ЗИ воздушного шума тем выше, чем больше масса стяжки, меньше динамическая жесткость упругого слоя, больше толщина упругого слоя
...ничто не слишком...(с) Кармадон, "Альтист Данилов"
http://www.akustik.ua - акустическое проектное бюро
http://www.acoustic.ua - звукоизоляционные материалы
............................................
User avatar
Андрей Смирнов
Soundmoderator
 
Posts: 8791
Joined: 29 Aug 2006, 12:24
Location: Украина, Киев

Re: В мыслях о звукоизоляции квартиры...

Postby TpcAlam » 15 Mar 2019, 22:43

Большое спасибо за ответы, Андрей!

Хм....Если при плавающей стяжке можно получить изоляцию воздушного шума примерно 3-8 дБ, а при "простой" стяжке толщиной порядка 90мм уровень ЗИ воздушного шума будет на 4-6 дБ выше самого перекрытия, то получается между этими вариантами разница 1-2 дБ по воздушному шуму? Вроде бы и не много... НО! В многоквартирном доме на "дБ" экономить точно нельзя, я так считаю! :) Я пока не окунулся в мир под названием "жизнь в квартире" понятия не имел как люди живут (родился и рос в старом частном доме). И более того, после знакомства с этим замечательным форумом, где вообще узнал о некоторых СНиПах в строительстве (раньше просто не задумывался), я не могу описать своего недоумения касательно нарушения застройщиками некоторых очень важных правил. Ну а про строительно/ремонтно/отделочные бригады я вообще молчу....Жуть просто какая-то.

Андрей, Вы написали, что есть масса реализаций совмещения плавающего и теплого пола. Я много тут прочитал всего на форуме, пользовался поиском, но почему-то понял, что нет 100% надежного и правильного с точки зрения строительных норм и правил варианта обустройства и теплого водяного пола, и плавающей стяжки. Для меня как-то важнее звукоизоляция (особенно по воздушному шуму от всех соседей). Но если можно это совместить с теплым полом, то это просто замечательно! Видимо, что-то где-то недочитал :(

Подскажите пожалуйста, где можно подробно ознакомиться с правильными вариантами совмещения этих двух "достижений" 21го века?

P.S. Я даже не уверен насколько необходимы теплые полы, если будет плавающий пол (базальтовые плиты, судя по характеристикам, это очень хороший теплоизолятор). Но ознакомиться с вариантами хотелось бы
Многое в этой жизни именно в наших руках...
TpcAlam
 
Posts: 157
Joined: 02 Mar 2019, 16:14
Location: Ростовская область

Re: В мыслях о звукоизоляции квартиры...

Postby Андрей Смирнов » 16 Mar 2019, 12:50

TpcAlam wrote:Большое спасибо за ответы, Андрей!

Хм....Если при плавающей стяжке можно получить изоляцию воздушного шума примерно 3-8 дБ, а при "простой" стяжке толщиной порядка 90мм уровень ЗИ воздушного шума будет на 4-6 дБ выше самого перекрытия, то получается между этими вариантами разница 1-2 дБ по воздушному шуму?


Вы что-то путаете или не совсем корректно ставите вопросы и описываете ситуацию.
Ваш вопрос был таким:
Тогда вопрос такой. Если поверх плит перекрытия (кажется 220мм с пустотами) обустроить стяжку с защитой только от ударного шума + теплый пол (так можно совмещать?). Толщина стяжки получится около 90мм (это если в кухне и коридоре выводить уровень стяжки в уровень с плавающей стяжкой в жилых комнатах: 25мм плита + 70мм стяжка). Какая получится защита по воздушному шуму от соседей снизу? Толщина стяжки что-то добавит к улучшению картины или нет? Получится ли комфортный уровень "неслышимости соседской жизни"?
На что я ответил:
так можно делать и уровень ЗИ воздушного шума будет на 4-6 дБ выше, чем у самого перекрытия
При этом я отталкивался от вашего текста и в первую очередь от слов "обустроить стяжку с защитой только от ударного шума + теплый пол".

Андрей, Вы написали, что есть масса реализаций совмещения плавающего и теплого пола. Я много тут прочитал всего на форуме, пользовался поиском, но почему-то понял, что нет 100% надежного и правильного с точки зрения строительных норм и правил варианта обустройства и теплого водяного пола, и плавающей стяжки. Для меня как-то важнее звукоизоляция (особенно по воздушному шуму от всех соседей). Но если можно это совместить с теплым полом, то это просто замечательно! Видимо, что-то где-то недочитал :(

Я не знаю, почему у вас сложилось такое мнение
Подскажите пожалуйста, где можно подробно ознакомиться с правильными вариантами совмещения этих двух "достижений" 21го века?
P.S. Я даже не уверен насколько необходимы теплые полы, если будет плавающий пол (базальтовые плиты, судя по характеристикам, это очень хороший теплоизолятор). Но ознакомиться с вариантами хотелось бы

Такое "совмещение" технологий является нестандартом, поэтому конструкция разрабатывается индивидуально в каждом конкретном случае.
...ничто не слишком...(с) Кармадон, "Альтист Данилов"
http://www.akustik.ua - акустическое проектное бюро
http://www.acoustic.ua - звукоизоляционные материалы
............................................
User avatar
Андрей Смирнов
Soundmoderator
 
Posts: 8791
Joined: 29 Aug 2006, 12:24
Location: Украина, Киев

Re: В мыслях о звукоизоляции квартиры...

Postby TpcAlam » 17 Mar 2019, 20:01

Здравствуйте!
Да, Андрей. Согласен с тем, что я не совсем корректно ставлю вопросы...пытаясь понять что и как мне в итоге лучше сделать.

Тогда опишу ситуацию и прошу Вашего совета. Только в кухне, коридоре и ванной хотел бы сделать теплый водяной пол (будет 2 или 3 раздельных контура, пока решил точно). Финальное покрытие - плитка
Где-то прочитал, что звукоизоляция по воздушному шуму моих плит перекрытия (кажется 220мм с пустотами) 52-53 дБ. Правильно?
Хотел бы понять какая в итоге получится звукоизоляция (по ударному и воздушному шуму) и решить на каком из вариантов остановиться:

1. Минимальная выравнивающая стяжка, потом защитный слой от ударного шума (материал еще не выбирал), потом теплоизоляционная подложка для теплого пола, далее трубы теплого пола и финальная ЦПС + плитка
2. Минимальная выравнивающая стяжка, потом Роквул Флор Батс, потом гидроизоляция плит пленкой, потом теплоизоляционная подложка для теплого пола, далее трубы теплого пола и финальная ЦПС + плитка
3. Минимальная выравнивающая стяжка, потом некая теплоизоляционная подложка, далее трубы теплого пола и финальная ЦПС + плитка

Полы в кухне и коридоре вывожу к единому уровню как в зале и спальне (где будет плавающая стяжка поверх Флор Батс). В ванной уровень пола сделаю чуть ниже (скорее всего) и планирую применить самый простой вариант №3, сделав после выравнивающей стяжки гидроизоляцию помещения, а уже потом подложка для теплого пола и финальная ЦПС + плитка. В ванной же не имеет особого смысла делать какую-либо изоляцию пола?


При варианте №3 у меня полностью будет отсутствовать защита от ударного шума, я могу/буду "сильно топать" соседям снизу. Какая при этом получится итоговая звукоизоляция по воздушному шуму с учетом плиты перекрытия?

При варианте №2 я получу хорошую защиту и по воздушному и по ударному шуму. Но тогда придется как-то защититься от возможного проникновения воды под стяжки в кухне и коридоре в случае потопа, правильно? Более того, придется как-то сделать "переход" трубной разводки в плавающие стяжки, чтобы предотвратить повреждения труб со временем. Правильно?

При варианте №1 я получу хорошую защиту по ударному шуму, никому снизу "сильно топать" не буду. Никаких особых мероприятий для защиты труб от повреждения при переходах из стяжки в стяжку (если говорить об условно раздельных стяжках по разным помещениям) делать не придется. Какая при этом получится итоговая звукоизоляция по воздушному шуму с учетом плиты перекрытия?

Как я понимаю, может быть высокая косвенная передача звука, и точно сейчас сказать итоговый результат просто невозможно. Но можно же хотя бы примерно оценить итоговый результат защиты воздушного шума (закрыв глаза на косвенную передачу, если Вы простите мне такое допущение :? )? Если использовать только тонкий слой защиты от ударного шума, то допускается ли расположение трубной разводки в слое стяжки поверх этого слоя защиты? Или этот тонкий слой тоже является "упругим" и простой переход трубной разводки из стяжки поверх такого слоя в стяжку поверх плиты перекрытия (без защитного слоя) недопустим (с точки зрения не нарушения целостности труб со временем)?

Андрей, подскажите мне пожалуйста, на каком варианте лучше/разумнее остановиться? Понимаю, у всех людей мнения разные, но какой вариант лучше выбрать исходя из пожеланий обустройства теплого пола и защиты от соседского шума, а также защиты соседей от своего шума?

P.S. Извините, Андрей, если некоторые вопросы кажутся Вам глупыми, но, на мой взгляд, жизнь вынуждает "заказчиков" знать больше "исполнителей". Зачастую "исполнители" - это просто "рабочие руки", которые не всегда делают правильно по разного рода причинам. Расплачиваться потом приходится именно "заказчику"....был горький опыт.
Многое в этой жизни именно в наших руках...
TpcAlam
 
Posts: 157
Joined: 02 Mar 2019, 16:14
Location: Ростовская область

Re: В мыслях о звукоизоляции квартиры...

Postby TpcAlam » 20 Mar 2019, 18:40

Здравствуйте, Андрей.

В одном из моих сообщений я писал про "бордюр" под профиль для перегородок (между кухней/коридором и комнатой) в целях исключить попадание воды под плавающую стяжку в случае "потопа". Вы хорошо оценили такой вариант. Возник вопрос по месту примыкания гипсокартона к этому бордюру. На рисунке справа - это та самая зона с возможной протечкой воды. Под направляющий профиль необходимо проложить демпфер (условно отмечен зелёным цветом). А нужно ли что-то проложить в месте контакта гипсокартона и этого бордюра (условно отмечено красным цветом)? У меня есть предположение, что это место также желательно демпфировать материалами из химически/физически сшитого полиэтилена толщиной 3-10мм (кажется, Вы эти материалы рекомендуете).

В качестве направляющего профиля лучше всего использовать специальный звукоизоляционный направляющий профиль Vibrofix Liner. Скажите, есть ли возможность приобрести его в наших краях (ориентир - г. Ростов-на-Дону)? Он поставляется куда-нибудь вообще в РФ?
Attachments
Floor.JPG
Floor.JPG (93.01 KiB) Viewed 53005 times
Многое в этой жизни именно в наших руках...
TpcAlam
 
Posts: 157
Joined: 02 Mar 2019, 16:14
Location: Ростовская область

Re: В мыслях о звукоизоляции квартиры...

Postby Андрей Смирнов » 21 Mar 2019, 11:21

Так будет лучше.

пол.jpg
пол.jpg (128.24 KiB) Viewed 52989 times

красным указан силиконовый герметик.
Кромочная прокладка имеет толщину 5-8 мм если применяется пенополиэтилен или вспененный каучук или 20 мм если кромка выполняется из минеральной ваты изоляционного слоя.
В любом случае кромка окажется под облицовкой ГКЛ.
Стык облицовки и стяжки герметизируется.
...ничто не слишком...(с) Кармадон, "Альтист Данилов"
http://www.akustik.ua - акустическое проектное бюро
http://www.acoustic.ua - звукоизоляционные материалы
............................................
User avatar
Андрей Смирнов
Soundmoderator
 
Posts: 8791
Joined: 29 Aug 2006, 12:24
Location: Украина, Киев

Re: В мыслях о звукоизоляции квартиры...

Postby TpcAlam » 21 Mar 2019, 20:51

По Вашему варианту появилось несколько вопросов...
1. При возведении звукоизоляционных перегородок используют нетвердеющий герметик (я не ошибаюсь?). Зона слева (там где плавающая стяжка) исключает появление протечек воды, в моем случае - это спальня. В таком случае в этой зоне всё равно лучше использовать силиконовый герметик вместо нетвердеющего?
2. В предложенном варианте ширина бордюра фактически равна ширине профиля. Тогда этот бордюр по высоте должен быть минимальным, но выше финишного напольного покрытия (плитка, которой на моей схеме нет) на 1-2 см? Так?
3. А если в Вашем варианте вместо силиконового герметика в зоне возможной протечки (в моем случае это только зона справа - это кухня) произвести "локальную" гидроизоляцию, например, каким-либо битумным составом? Если промазать составом только край стяжки с переходом на профиль (потом это прикроется листами ГКЛ)? Или в этом случае битумный состав образует "жесткую связку" пола с направляющим профилем и будет хуже?
Многое в этой жизни именно в наших руках...
TpcAlam
 
Posts: 157
Joined: 02 Mar 2019, 16:14
Location: Ростовская область

Re: В мыслях о звукоизоляции квартиры...

Postby Андрей Смирнов » 22 Mar 2019, 10:26

TpcAlam wrote:По Вашему варианту появилось несколько вопросов...
1. При возведении звукоизоляционных перегородок используют нетвердеющий герметик (я не ошибаюсь?). Зона слева (там где плавающая стяжка) исключает появление протечек воды, в моем случае - это спальня. В таком случае в этой зоне всё равно лучше использовать силиконовый герметик вместо нетвердеющего?
силикон это один из видов нетвердеющих герметиков. герметизируются стыки не только для гидроизоляции, но и для обеспечению "горизонтальной" звукоизоляции между помещениями
2. В предложенном варианте ширина бордюра фактически равна ширине профиля. Тогда этот бордюр по высоте должен быть минимальным, но выше финишного напольного покрытия (плитка, которой на моей схеме нет) на 1-2 см? Так?
высоту бордюра выбирают исходя из удобства монтажа и перегородки и напольного покрытия
3. А если в Вашем варианте вместо силиконового герметика в зоне возможной протечки (в моем случае это только зона справа - это кухня) произвести "локальную" гидроизоляцию, например, каким-либо битумным составом? Если промазать составом только край стяжки с переходом на профиль (потом это прикроется листами ГКЛ)? Или в этом случае битумный состав образует "жесткую связку" пола с направляющим профилем и будет хуже?
герметизацию стыка во влажной зоне рекомендуется выполнять любым эластичным нетвердеющим герметиком
...ничто не слишком...(с) Кармадон, "Альтист Данилов"
http://www.akustik.ua - акустическое проектное бюро
http://www.acoustic.ua - звукоизоляционные материалы
............................................
User avatar
Андрей Смирнов
Soundmoderator
 
Posts: 8791
Joined: 29 Aug 2006, 12:24
Location: Украина, Киев

Re: В мыслях о звукоизоляции квартиры...

Postby TpcAlam » 23 Mar 2019, 18:33

Понятно. Большое спасибо, Андрей. Про обеспечение "горизонтальной" звукоизоляции между помещениями я даже как-то не задумался, по глупости, так как эти помещения в одной квартире. Конечно же, я обязательно учту Вашу рекомендацию. Когда я рисовал картинку для описания своего вопроса больше думал об исключении прямого контакта этого бордюра с листами ГКЛ. Имелось ввиду, чтобы листы ГКЛ не получили звукового мостика с бордюром, который жестко связан с плитой перекрытия. А если высота бордюра получится немного выше нижнего края ГКЛ, тогда нужно как-то демпфировать место контакта листов и бордюра (красная область на моем рисунке)? Спрашиваю на случай "человеческого фактора" (ну или какой-либо ошибки при проведении работ).
Многое в этой жизни именно в наших руках...
TpcAlam
 
Posts: 157
Joined: 02 Mar 2019, 16:14
Location: Ростовская область

Re: В мыслях о звукоизоляции квартиры...

Postby TpcAlam » 23 Mar 2019, 19:09

И еще вопрос, Андрей. Как-то читал на этом форуме о прокладке трубной разводки отопления вдоль стены. При таком решении получается, что вдоль стены располагается узкая полоска обычной стяжки поверх плиты, в которой находятся трубы отопления. Трубы отопления будут в теплоизоляционных гофрах. Будет лучше, если эта "неплавающая" стяжка получится как можно меньше по ширине (то есть трубы лучше уложить "компактнее")? Финишное напольное покрытие (ламинат, паркетная доска и т.д) будет плавающим способом уложено поверх стяжек через подложку, как бы исключая между собой прямой контакт. Так допустимо?

При компактной укладке небольшого количества труб (в моем случае 4 трубы на 2 радиатора) можно уложиться в ширину 100 мм. Тогда может высоту локальной стяжки сделать меньше плавающей, а вместо подложки финишного напольного покрытия проложить акустическую вату? Вдоль стены ничего не будет стоять, поэтому прогиба напольного покрытия по самому краю я не опасаюсь. Какой вариант лучше на Ваш взгляд?
Attachments
трубная разводка вдоль стены.JPG
трубная разводка вдоль стены.JPG (95.91 KiB) Viewed 52890 times
трубная разводка вдоль стены_new.JPG
трубная разводка вдоль стены_new.JPG (111.17 KiB) Viewed 52890 times
Многое в этой жизни именно в наших руках...
TpcAlam
 
Posts: 157
Joined: 02 Mar 2019, 16:14
Location: Ростовская область

Re: В мыслях о звукоизоляции квартиры...

Postby TpcAlam » 30 Mar 2019, 10:58

Здравствуйте, Андрей. Очередное чтение многочисленных страниц и сообщений форума рождает как некоторые новые вопросы/сомнения/опасения, так и новые знания. Дело касается возможных проблем плавающей стяжки по минеральным плитам. Вопрос лично для меня достаточно значимый. Про "мистические барабаны" я уже спрашивал и Вы ответили мне про пару человек с форума, у которых были "проблемы", хотя плавающих стяжек было сделано очень много. И я находил на форуме сообщения о положительных результатах (к сожалению их очень мало, видимо, о хорошем результате просто особо не пишут), тут тоже сомнений не возникает. Тем не менее на форуме был описан случай, когда шаги девочки этажом ниже создавали неприятный эффект в квартире сверху с плавающей стяжкой, и Вы ответили
Скорее всего причина в нежелательных резонансных явлениях. У каких-то конструкций совпали резонансные частоты.
Возможно стяжка по слою шумостоп к + керамзит резонирует на плите перекрытия, т.к. от перекрытия это явление также зависит.

viewtopic.php?f=1&t=2611#p22547

Далее.
1. Вы писали
Если толщина стяжки небольшая, а толщина упругого слоя наоборот большая, то могут появиться нежелательные эксплуатационные моменты, но не имеющие отношения к звукоизоляции.
Например, тонкая стяжка может "бухтеть" или нежелательно резонировать.

В случае такой комбинации толщин упругого слоя и стяжки тут, скорее всего имеет место некое нарушение технологии.
Также Вы писали, что толщина стяжки может варьироваться в пределах 60-80 мм без негативных последствий. Это понятно


2. в одном из сообщений Vasilii привел ответ с фирмы ISOVER одному из участников другого "родственного форума"
В общем случае «величина» эффекта «барабаны» будет зависеть от соотношения трех основных параметров: поверхностной массы стяжки (кг/м2), жесткости материала, установленного под стяжкой и размеров комнаты (другими словами размеров залитой стяжки). Например – если увеличить жесткость материала, или уменьшить массу стяжки (сделать ее легче или тоньше) или увеличить размер помещения эффект «барабана» увеличится; и наоборот

Тут я вообще впервые прочитал о возможной зависимости от размеров помещения и задумался.

3. Ну и наконец совсем недавно была переписка
viewtopic.php?f=1&t=1294&p=23348&hilit=комнатные+моды#p23348
где Вы ответили
С другой стороны, любая стяжка на упругом основании (минвата, пенополиэтилен, пенополистирол и т.п.) обладает определенной податливостью и может возбуждать низкочастотные комнатные моды, это нормально. Это может быть более заметно, если комната имеет неблагоприятные пропорции, например помещение квадратное или имеет кратные размеры (или близкие к кратным). Финишное покрытие пола, мебель и элементы интерьера пригружают стяжку и этот эффект становится незаметным.


И снова некоторая зависимость от размеров комнаты...
Я как человек с высшим техническим образованием стараюсь всегда разбираться сам. Но разобраться во всем что нас окружает в мире просто невозможно, мир гораздо сложнее чем кажется :). Что такое комнатные моды я понял, тут зависимость только от размеров помещения. Но какая зависимость от загруженности стяжки финишным покрытием пола, мебелью и элементами интерьера? Изменяется резонансная частота "всей конструкции поверх плиты перекрытия"?

Итого. Задам вопросы ближе к теме и по существу.
Можно как-то понять заранее, не получится ли что-то неприятное в результате выполнения плавающей стяжки по минеральной плите? Это же не лотерея (повезёт/не повезёт, совпадут у каких-то конструкций резонансные частоты или не совпадут)?
С учётом Ваших слов о зависимости неприятных явлений от перекрытия, можно ли в итоге делать черновую выравнивающую облегченную стяжку с керамзитом для последующего плавающего пола по минеральным плитам?
Просто как представлю весь "масштаб возможного бедствия" так страшно становится...
И что вообще дальше делать и как быть если после выполнения плавающей стяжки появятся проблемы?

Перегородки из пеноблоков мне все снесли и вывезли, осталась только кирпичная между кухней и ванной. Перегородки из ГКЛ нужно же ставить после плавающей стяжки, опирая их по возможности на эти стяжки? Комнатные моды изменятся же после установки перегородок?
Многое в этой жизни именно в наших руках...
TpcAlam
 
Posts: 157
Joined: 02 Mar 2019, 16:14
Location: Ростовская область

Re: В мыслях о звукоизоляции квартиры...

Postby Андрей Смирнов » 30 Mar 2019, 11:59

TpcAlam wrote:И снова некоторая зависимость от размеров комнаты...
Я как человек с высшим техническим образованием стараюсь всегда разбираться сам. Но разобраться во всем что нас окружает в мире просто невозможно, мир гораздо сложнее чем кажется :). Что такое комнатные моды я понял, тут зависимость только от размеров помещения. Но какая зависимость от загруженности стяжки финишным покрытием пола, мебелью и элементами интерьера? Изменяется резонансная частота "всей конструкции поверх плиты перекрытия"?
Тяжелая мебель и элементы интерьера нагружают стяжку, что приводит к эффекту вибродемпфирования и ограничения амплитуды воможных колебаний пластины стяжки. Это примерно, как прижать ладонью вибрирующую тонкую металлическую пластину
Итого. Задам вопросы ближе к теме и по существу.
Можно как-то понять заранее, не получится ли что-то неприятное в результате выполнения плавающей стяжки по минеральной плите? Это же не лотерея (повезёт/не повезёт, совпадут у каких-то конструкций резонансные частоты или не совпадут)?
Ещё раз подчеркиваю, что какие-то нежелательные эффекты с плавающей стяжкой возникают в каком-то исчезающе малом количестве случаев. Мне известно всего 2-3 таких случая, да и то в отдаленных местах, куда не добраться и не проверить лично. И реальные причины установить невозможно. С акустической ватой нашего производства (Acousticwool Sonet F) таких случаев за всю историю производства с 2009 года просто не было. А ведь это колоссальная статистика, ведь моя компания продает более 15000 кв.м этой ваты в месяц, соответственно, устраивается такое же количество плавающих полов.
С учётом Ваших слов о зависимости неприятных явлений от перекрытия, можно ли в итоге делать черновую выравнивающую облегченную стяжку с керамзитом для последующего плавающего пола по минеральным плитам?
не понял цели, чтобы скрыть трубы отопления или...?
Просто как представлю весь "масштаб возможного бедствия" так страшно становится...
И что вообще дальше делать и как быть если после выполнения плавающей стяжки появятся проблемы?
а каких проблем вы страшитесь, собственно?

Перегородки из пеноблоков мне все снесли и вывезли, осталась только кирпичная между кухней и ванной. Перегородки из ГКЛ нужно же ставить после плавающей стяжки, опирая их по возможности на эти стяжки? Комнатные моды изменятся же после установки перегородок?
не изменятся
...ничто не слишком...(с) Кармадон, "Альтист Данилов"
http://www.akustik.ua - акустическое проектное бюро
http://www.acoustic.ua - звукоизоляционные материалы
............................................
User avatar
Андрей Смирнов
Soundmoderator
 
Posts: 8791
Joined: 29 Aug 2006, 12:24
Location: Украина, Киев

Re: В мыслях о звукоизоляции квартиры...

Postby TpcAlam » 30 Mar 2019, 22:01

По поводу эффекта вибродемпфирования при загрузке стяжки мебелью стало понятно, спасибо.

Действительно колоссальная статистика, более 15000кв.м. ваты в месяц...даже представить себе такого не мог. В нашем регионе есть роквул. По характеристикам очень близка к Вашей, но только без ламинарной структуры ориентации волокон. По крайней мере роквул ни слова об этом не пишет. А поставляется ли Acousticwool Sonet F (как и другая продукция компании) куда-нибудь в РФ (как я понял из форума вроде нет, но может что-то поменялось за последнее время)?


не понял цели, чтобы скрыть трубы отопления или...?

Да, Андрей. Изначально не было заметно, но когда снесли все перегородки (получилась одна неприлично огромная комната :) ) стало видно, что одна плита с одной стороны как-то сильно выпирает. И скорее всего именно эта точка будет "нулевой". Как достану лазерный уровень проверю что получается, на сколько "выпирает" эта точка...Скорее всего у меня получится "низина" вдоль наружных стен, куда можно будет спрятать трубы отопления. И тогда придется выравнять всё остальное, а уже потом вату и стяжку (одним словом как и положено по строительным нормативам). Я читал ранее Ваши рекомендации про черновую стяжку керамзитом. Но в голове всех мелочей не запомнить, и я не помню какой даты были Ваши советы. А прочитав о зависимости от перекрытия задумался чем же все-таки лучше выравнять... Керамзит же вроде бы не лучшим образом влияет на звукоизоляцию в целом?


а каких проблем вы страшитесь, собственно?

Ну именно тех о чем прочитал на этом отличном(!!!) форуме
Но в некоторых случаях устройство плавающего пола может спровоцировать появление нежелательных резонансных явлений в комнате

Человеку часто нелегко решиться на что-то необычное и непривычное для него, тем более с вероятными негативными результатами. Я то решился на эту стяжку в двух комнатах, но немного опасаюсь. Роквул в своей брошюре пишет о 60 мм слое ЦПС. Думаю, стоит ли сделать чуть больше? Или сначала 60мм, а потом после некоторой усадки (уровень может немного опуститься, как писали где-то) еще один окончательно выравнивающий слой. В любом случае дальнейшая загрузка стяжки только положительно скажется на результате? А если бы была возможность купить Вашу продукцию (с которой точно не было "проблем" за все время) то меня бы это только успокоило :)


не изменятся

Непонятно почему. Я полагал что изменятся. Ведь после установки перегородок размеры комнаты меняются (как минимум в одном направлении). Длина остается той же, но ширина то меняется? И значит от стенки до стенки уже другая длина волны "помещается", а значит и другая частота первого мода, второго, третьего.... А вот, кстати, еще вопрос, Андрей. Говоря о модах, мы имеем для каждого конкретного помещения 3 разных частоты первого мода (соответствующих размерам комнаты в 3х измерениях)?
Многое в этой жизни именно в наших руках...
TpcAlam
 
Posts: 157
Joined: 02 Mar 2019, 16:14
Location: Ростовская область

Next

Return to Звукоізоляція

Who is online

Users browsing this forum: No registered users and 21 guests

cron