Здравствуйте, Андрей
Итак,дано:
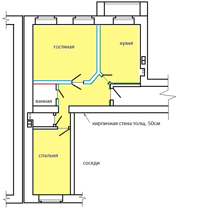
квартира на 9 этаже в 16 этажном новом доме. Дом кирпичный с межэтажными перекрытиями из ПК толщ. 220 мм. Разводка отопления по полу, вент каналы в стенах. Высота потолков 285 см.
Задача:
1. Максимально звукоизолировать гостиную (здесь будет ДК со всеми вытекающими последствиями). В планах установить 2 двери(трехслойные с порогами) в независимые каркасы перегородки гостиной
2. Максимально звукоизолировать спальню (может быть у будущих соседей будет ДК или громкий муз. центр)
Сделано:
1. Плавающая стяжка толщ. 7-10см по 2 слоям флор баттс под каждое помещение(закрашено жёлтым)
2. потолок на виброподвесах PU в 3 слоя ГВЛ-ГВЛ-ГКЛ с относом 100мм(внутри 2 слоя баттс про) на кухне и коридоре
3. перегородки в 3 слоя ГВЛ-ГВЛ-ГКЛ , опирающиеся на стяжку и звукоизоляционный потолок (отмечены зелёным)
Вопросы:
1. В спальне планирую потолок и стену,граничащую с соседом сделать в 4 слоя с относом 100мм,какой последовательности толщин необходимо придерживаться для рассогласования частот.
2. В ванной надо ли стену(отмечена красным) делать акустически развязанной с помощью виброфикс лайнер для ослабления НЧ или можно не заморачиваться и крепить жестко.
3. В гостиной планирую стены и потолок задемпфировать тексаундом 70, есть ли смысл потолок и стены(отмечены синим) делать в 4 слоя, если да, то в какой последовательности, остальные 2 стены буду монтировать в 3 слоя.
4. Надо ли демпфировать откосы(их глубина 50 см)
5. В гостиной стены (отмечены синим) будут крепиться к плавающей стяжке, а сверху для наилучшей эффективности к перекрытию или звукоизоляционному потолку лучше крепить(кстати, все стены будут крепиться через виброфикс лайнер)
