Vibrofix

Звукоизоляция кафе

Обговорення проблем захисту від шуму, звукоізоляції приміщень, віброізоляції обладнання.
Проєктування, матеріали, вимірювання

Звукоизоляция кафе

Postby Interesting » 21 Jan 2015, 14:59

Приветствую!

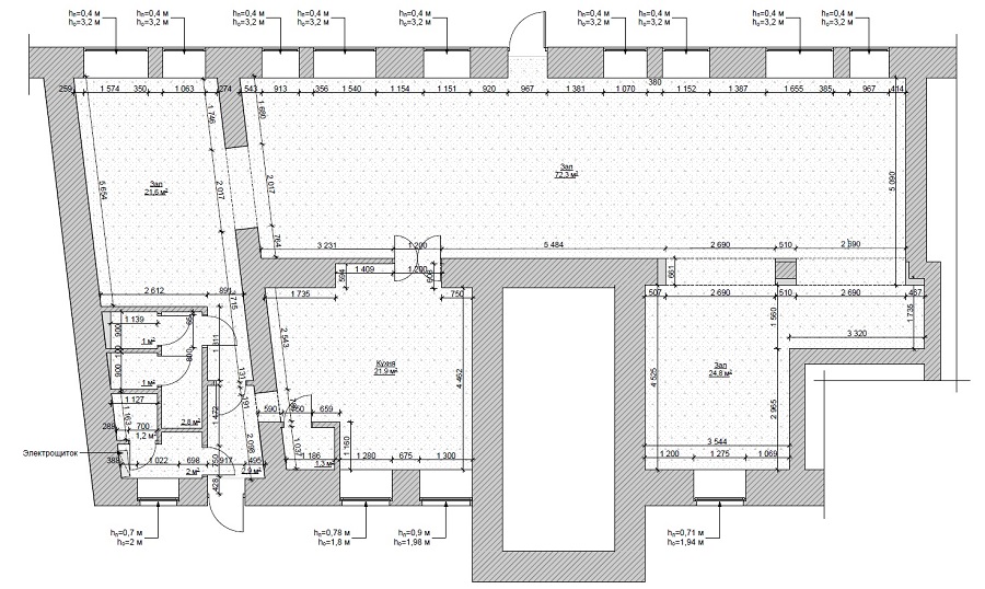
Сложилась следующая проблема, открываем небольшое кафе в жилом доме, 4 этажка, сталинка, ЖБ перекрытия, потолки 3,6м
Над нами весь второй этаж в данный момент нежилой, 2 квартиры на этаж и они выставлены на продажу, ремонта там нет вообще.

Стоит задача сделать звукоизоляцию помещения с учетом того, что на 2м этаже возможно через какое то время будет квартира и шум и музыка из кафе будет мешать жителям.

Нет возможности делать полную изоляцию помещения со стенами, есть возможность изолировать только потолок.

Огромная просьба подсказать и направить на правильное решение в этом вопросе:
будет ли толк от изоляции потолка? если да, то какими материалами рекомендуете ее делать?
делать ли вообще изоляцию потолка, или подождать пока на 2м этаже появятся жители и поучаствовать в ремонте их помещения сделав им пол?

В схемах которые выкладывал Андрей Смирнов, при изоляции потолка не остается расстояния между ватой и гипсокартоном, а нам в этом промежутке нужно будет проложить электрические кабеля, можно ли увеличить расстояние от ваты до гипса хотя бы до 10см? и можно ли крепить вату сразу к потолку, не оставляя расстояния между ватой и потолком?

Уровень звука в кафе: шум от нахождения людей, уровень музыки вечером - чуть выше среднего.

Огромное спасибо!
Attachments
interesting1.jpg
interesting1.jpg (185.55 KiB) Viewed 11718 times
Interesting
 
Posts: 2
Joined: 21 Jan 2015, 13:47

Re: Звукоизоляция кафе

Postby vasilii » 21 Jan 2015, 18:21

До ответа А.Смирнова -
по практике нередких приходов Роспотребнадзора в подобные заведения по жалобам жильцов сверху - помимо естественно, не предназначенной по типовой звукоизоляции ограждающих конструкций многоквартирных домов низкочастотной и (или) громкой музыки:
При отсутствии в подобных помещениях "плавающей стяжки" - звуки от часто применяемого верхнего покрытия из т.наз керамической плитки( или керамогранита) прекрасно передаются в верхние помещения структурным путем через стены. (впрочем, и воздушным -но от этого может защитить интересующий вас конструктив ""подвесного потолка на Vibrofix)
От перемещения стульев и цоканий каблучков до пертаскивания ящиков и прочего в подсобных помещениях .
Такие случаи ( не менее трех (информация - мной лично полученная от трех разных людей в трех разных домах -двое -с ВТОРОГО этажа, одна -с первого( аптека с полом без плавающей стяжки, но с керамической плиткой через стену с комнатой жилой)), а с учетом информации с сайта ""Клуб защитников тишины-" так гораздо больше таких оснований жалоб в СЭС(Роспотребнадзор))

Примите к сведению. Хоть подобные звуки не всегда (в отличие от шумов вентиляции или кондиционеров или холодильных установок могут фиксироваться при проверках -но..... Вам это надо ??
-визиты и штрафы и ПРЕДПИСАНИЯ инспекторов переделать конструкцию пола(перекрытия) . Не говоря о законных правах верхних соседей и потенциальных конфликтах с ними.
( Да -естественно -поскольку структурные звуки ПЛИТОЧНОГО происхождения переизлучаются в помещениях второго этажа и НЕНЕСУЩИМИ(легкими) стенами , в вторую очередь -потолочной и половой плитой перекрытия)- то изготовление в квартире будущих соседей типовой конструкции 7-8 см стяжки по 4-см стекловате специальной - от ЭТИХ звуков не спасет. Да и выдержат ли обычные в сталинках перекрытия (в большинстве тех домов - общажно-рабочих(часть послевоенныех сталинок ) или настоящих "сталинок" ) 8-см стяжку -это вам узнавать))
Как говорит практика ( и теория- строительная физика и архитектурная акустика) - те меры по уменьшению уровней ударных звуков в ИСТОЧНИКЕ на только ОДНОЙ поверхности -полу , толщиной от 6-11 см дадут такой эффект снижения, которого не добиться даже 13-15 см облицовками на относе(на минвате и виброподвесах) ВСЕХ 6 поверхностей комнат наверху..
Тем более у вас такие высокие потолки..
vasilii
 
Posts: 448
Joined: 30 Mar 2009, 15:06

Re: Звукоизоляция кафе

Postby Андрей Смирнов » 21 Jan 2015, 19:35

Открытие кафе в жилом доме сопряжено с рядом проблем с точки зрения соблюдения норм по допустимым уровням шума.
Можно выделить две основных проблемы:

1. требования по звукоизоляции ограждающих конструкций между жилыми квартирами и ресторанами (или кафе) ЗНАЧИТЕЛЬНО строже, чем требования по звукоизоляции ограждающих конструкций между смежными жилыми квартирами.

2. совершенно разные последствия от обращений жильцов на мешающий шум из смежной квартиры и смежного ресторана или кафе.
Если шумит сосед за стенкой, то могут устроить скандал, вызвать милицию, дать"в морду", наконец, но не более.
Если шумит кафе за стенкой, то сначала скандалят, затем жалуются в инстанции. А когда дело доходит до определенного уровня чиновников, у последних появляется свой собственный интерес - доить деньги или даже отобрать бизнес.

Поэтому надо исключить все юридические основания для потенциальных жалоб.

Основные проблемы по защите от шума во встроенном в жилой дом кафе:
1. недостаточная звукоизоляция межэтажного перекрытия потолка. Обычно перекрытие имеет значение Rw не более 50 дБ при норме для общепита 62 дБ.
2. высокая косвенная передача шума снизу вверх по стенам и внутридомовым вентиляционным каналам
3. распространение ударного шума (стук каблуков) с пола кафе в вышерасположенные квартиры по каналу "пол кафе-стены кафе-пол квартиры-стены квартиры".
4. шум от системы вентиляции кафе. Вибрация вентиляционной установки, кондиционеров и воздуховодов трансформируется в структурный шум и распространяется по стенам и перекрытиям в смежные квартиры (даже через несколько этажей).
5. шум от наружных блоков кондиционеров и наружных воздуховодов распространяется по воздуху и проникает в квартиры через окна (особенно открытые в летний период).

Надо серьезно подходить к данному вопросу, заказывать проект "Защита от шума" и следить за его выполнением в процессе производства строительных работ.

Сказать навскидку что делать в данном случае нельзя без проведения натурных акустических измерений. Только измерения могут показать степень "криминальности" рассматриваемой проблемы.
В моей практике бывало, что монтаж только одного подвесного потолка на основе креплений Vibrofix решал проблему. А бывало, что результатом измерений был и неутешительный диагноз: "Построить кафе с учетом требований по защите от шума в данном случае невозможно".
...ничто не слишком...(с) Кармадон, "Альтист Данилов"
http://www.akustik.ua - акустическое проектное бюро
http://www.acoustic.ua - звукоизоляционные материалы
............................................
User avatar
Андрей Смирнов
Soundmoderator
 
Posts: 8791
Joined: 29 Aug 2006, 12:24
Location: Украина, Киев

Re: Звукоизоляция кафе

Postby Interesting » 21 Jan 2015, 20:59

Спасибо большое за ответы!

Андрей, применение креплений виброфикс может быть достаточно, или вы имели ввиду в комплекте с минеральной ватой? И имеет ли вообще клеить вату на потолок если стены остаются без изоляции?

Спасибо!
Interesting
 
Posts: 2
Joined: 21 Jan 2015, 13:47

Re: Звукоизоляция кафе

Postby Андрей Смирнов » 21 Jan 2015, 22:53

Звукоизоляция это свойство конструкции, а не отдельно взятого материала.

Дополнительная звукоизоляция стен и перекрытий с помощью каркасных гипсокартонных конструкций весьма эффективна, но только в случае применения правильной технологии монтажа.

Основными элементами конструкции дополнительной звукоизоляции являются:

1. облицовка ГКЛ или ГВЛ (2-3 слоя)
2. акустическая минеральная вата (а не обычный утеплитель)
3. звукоизоляционные эластичные крепления типа Vibrofix
...ничто не слишком...(с) Кармадон, "Альтист Данилов"
http://www.akustik.ua - акустическое проектное бюро
http://www.acoustic.ua - звукоизоляционные материалы
............................................
User avatar
Андрей Смирнов
Soundmoderator
 
Posts: 8791
Joined: 29 Aug 2006, 12:24
Location: Украина, Киев


Return to Звукоізоляція

Who is online

Users browsing this forum: No registered users and 1 guest

cron