Vibrofix

Звукоизоляция стен, пола и потолка (чертежи и схемы)

Обговорення проблем захисту від шуму, звукоізоляції приміщень, віброізоляції обладнання.
Проєктування, матеріали, вимірювання

Re: Звукоизоляция стен, пола и потолка (чертежи и схемы)

Postby Denis81 » 09 Jun 2018, 16:12

Интересует звукоизоляция пола от воздушных шумов. Панельный дом 2014 год постройки. Толщина перекрытий предположительно 16см полнотелые. Стены - 3 стены 16см жб плиты, 1 плита 14см жб плита.

Беспокоят воздушные шумы снизу:
- голос при телефонных разговорах соседей снизу (обычный разговор громкий тонном слышен, слов не разобрать, если приложить ухо вплотную к полу, то можно разбирать слова_
- кашель снизу
- лай собаки

Как я понимаю, кашель полностью не заглушить звукоизоляцией, но хотелось бы хотя бы в раза 2 тише сделать. Лай собаки тоже не заглушить, но хотя бы на процентов 30 снизить (лай собаки слышно по всей квартире). А вот разговоры по телефону хотелось бы сделать, чтобы не слышать вовсе.

Нормативные значения звукоизоляции плиты перекрытия примерно 52дБ. Если я правильно понимаю, то решение: http://www.acoustic.ru/constructions/zv ... a_pola/22/ с его 8-10 ДБ должно по идее поднять звукоизоляцию примерно до 60дБ и сделать звуки громкой речи не слышными. Переизлучение стен тоже хотелось бы изучить (если у вас есть приборы и т.д.), но по моим ощущениям переизлучение стен невысоко (если прикладывать вплотную ухо к стенам на уровне 1м от пола, то слышно в раза 3-4 тише, чем от пола).

Хотелось бы проконсультироваться, как на ваш взгляд, будет ли достаточно варианта http://www.acoustic.ru/constructions/zv ... a_pola/22/ или он не подойдет? Ударные звуки не беспокоят, только воздушные.

И еще вопрос, нужно ли удалять старую стяжку от строителей или все это делается поверх? На сколько вырастет уровень пола? Не хочу делать во всей квартире, а только в жилых комнатах. Как обыгрываются перепады по высоте пола в этом случае?
Denis81
 
Posts: 47
Joined: 09 Jun 2018, 14:52
Location: Санкт-Петербург

Re: Звукоизоляция стен, пола и потолка (чертежи и схемы)

Postby Андрей Смирнов » 10 Jun 2018, 12:05

Плавающий пол это стандартный и самый эффективный способ увеличения звукоизоляции перекрытий.
http://www.acoustic.ua/recommendations/447
Один из самых эффективных материалов изоляционного слоя в плавающем полу является акустическая минеральная вата Acousticwool Sonet F толщиной 20 мм. Но в СПб можно найти доступный ближайший аналог плиты Paroc SSB-1 толщиной 20 или 30 мм.
Старую стяжку лучше снять, и высота помещения при этом почти не уменьшится и нагрузка на перекрытие на увеличится.
...ничто не слишком...(с) Кармадон, "Альтист Данилов"
http://www.akustik.ua - акустическое проектное бюро
http://www.acoustic.ua - звукоизоляционные материалы
............................................
User avatar
Андрей Смирнов
Soundmoderator
 
Posts: 8791
Joined: 29 Aug 2006, 12:24
Location: Украина, Киев

Re: Звукоизоляция стен, пола и потолка (чертежи и схемы)

Postby Denis81 » 10 Jun 2018, 21:44

Андрей Смирнов wrote:Плавающий пол это стандартный и самый эффективный способ увеличения звукоизоляции перекрытий.
http://www.acoustic.ua/recommendations/447
Один из самых эффективных материалов изоляционного слоя в плавающем полу является акустическая минеральная вата Acousticwool Sonet F толщиной 20 мм. Но в СПб можно найти доступный ближайший аналог плиты Paroc SSB-1 толщиной 20 или 30 мм.
Старую стяжку лучше снять, и высота помещения при этом почти не уменьшится и нагрузка на перекрытие на увеличится.

Ознакомился с данными материалами, но не увидел цифр по индексу воздушного шума. Дело в том, что я живу на последнем этаже, и мне нужно снижение именно воздушных шумов от соседей снизу (если при этом немного улучшится параллельно индекс ударного звука, то это неплохо, но это не сама цель, мне все-таки важнее, чтобы эффект был для меня, а не для соседей).
Может быть я не внимательно прочитал материалы.
Конечно по возможности хотелось бы найти какие-то альтернативы Шуманету, потому что их подрядчики очень много дерут денег за работу. Для примера даже при условии, если материалы звукоизоляции стоят 550 руб за 1м2, то вся работа по удалению стяжки и организации новой стяжки оценивается в 2800 руб. за 1м2. Все-таки это конский ценник на мой взгляд за 1-1,5 дня работы (на 15,5м2 комнату будет 43 400 руб, и это не включает работу по доставке материалов и вывозу мусора). Для примера у них удаление старой стяжки стоит 600 руб. 1м2, а в то время, как можно найти за 150 руб. кто эту работу сделает. Но в то же время боюсь бесполезной работы. Поэтому обязательно нужен рабочий вариант. Я уже один раз в старой квартире делал звукоизоляцию потолка и эффекта не было (там были ударные звуки + еще одна стена была 8см из гипсолита, поэтому конечно и эффекта не могло быть). Если в этот раз не будет эффекта, то уже полностью разочаруюсь в звукоизоляции... Я даже на последний этаж специально переехал, потому что топот сверху меня просто убивал.
Denis81
 
Posts: 47
Joined: 09 Jun 2018, 14:52
Location: Санкт-Петербург

Re: Звукоизоляция стен, пола и потолка (чертежи и схемы)

Postby Андрей Смирнов » 11 Jun 2018, 10:22

Индекс изоляции воздушного шума конструкцией плавающего пола не имеет смысла приводить, т.к. он зависит от уровня звукоизоляции самого межэтажного перекрытия.
Дополнительная звукоизоляция воздушного шума плавающей стяжкой Acousticwool Sonet F толщиной 20 мм составляет в среднем 8-10 дБ.
Альтернативу шуманету к2 найти легко, т.к. это просто перепакованный Paroc SSB-1, продающийся под торговой маркой шуманет.
...ничто не слишком...(с) Кармадон, "Альтист Данилов"
http://www.akustik.ua - акустическое проектное бюро
http://www.acoustic.ua - звукоизоляционные материалы
............................................
User avatar
Андрей Смирнов
Soundmoderator
 
Posts: 8791
Joined: 29 Aug 2006, 12:24
Location: Украина, Киев

Re: Звукоизоляция стен, пола и потолка (чертежи и схемы)

Postby johnson » 11 Jun 2018, 15:19

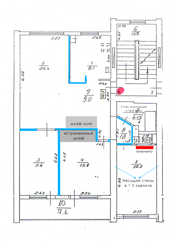
Стремительно приближается время начинать ремонт, в связи с чем возникли всякие вопросы-ньюансы, в которых не хотелось бы напортачить. Андрей, буду признателен, если могли бы прокомментировать следующий план и ответить на возникшие вопросы.

Дом кирпично-панельный. Стены с торцов квартиры – кирпич, фасадные- газобетон. Панели перекрытия- пустотные. Толщина-220мм.
Высота от стяжки до потолка ~ 250см.
Задача- звукоизоляция соседей от моих ударных шумов (топот по полу). Насколько возможно- звукоизоляция от игры на пианино и электронных барабанов. Инструменты будут находиться в комнате 5. Под комнатой- подъезд.

Планирую:
1) Пол- плавающая стяжка 5-7см. по 20мм. мин. плитам Paroc SSB-1
2) Перегородки (облицовка- 2 слоя Knauf Diamant) с установкой на плавающую стяжку:
Кухня-гостиная- одиночный каркас W112- профиль 75мм , с заполнением Rockwool Rockton 50мм.

3) Перегородки в спальнях (3 и 4 комнаты) – на 2 каркасах 50мм. W115 общей толщиной стены 155мм. С заполнением Rockwool Rockton 2x50мм.

4) Перегородка между прихожей и санузлом тоже на каркасе. Хватит ли 50мм одиночный каркас?

5) За неимением на рынке других вибродемпфирующих лент, профили каркаса, закрепляемые к полу и стенам буду проклеивать лентой K-Flex толщиной 6-8мм.

Далее начинаются вопросы:
1) Уголки крепления полок встраиваемого шкафа крепятся прямо к гипсокартону, или надо в этих местах предусматривать перемычки в каркасе?
2) Дверь в спальню №4 примыкает очень близко к несущей стене из кирпича. В принципе там только наличник влезет. Можно ли там сразу крепить брусок через прокладку K-flex к кирпичной стене, и к бруску дверь?
3) Имеет ли смысл демонтировать гипсолитовую перегородку (и установить гипсокартонную на одинарном каркасе) между комнатой №5 и туалетом в целях снижения передачи звука игры пианино по существующей перегородке к кирпичным и далее к соседям слева-внизу и справа данной комнаты. А также для звукоизоляции санузла?
4) Каркасную перегородку между санузлом и прихожей лучше ставить на плавающую стяжку прихожей, или на стяжку санузла?
5) На перегородке между ванной и туалетом планируется установка бойлера. Можно ли делать ее каркасной или возводить кирпичную?
6) Чем обмотать гофру с электрокабелями в местах, где они выходят в стяжке под перегородками, тем же K-flex, или кромочной лентой? В перегородках, кабели должны идти в гофре или без? Вроде для гофры там нет места.

plan__.png
plan__.png (211.43 KiB) Viewed 14311 times
johnson
 
Posts: 134
Joined: 31 Jul 2017, 18:39
Location: Рига, Латвия

Re: Звукоизоляция стен, пола и потолка (чертежи и схемы)

Postby Андрей Смирнов » 11 Jun 2018, 16:38

1. надежнее предусмотреть пермычки в ГКЛ перегородке в качестве закладных элементов
2. допустимо крепить брусок через прокладку K-flex к кирпичной стене
3. лучше демонтировать гипсолитовую перегородку и установить гипсокартонную
4. перегородку между санузлом и прихожей можно ставить на стяжку санузла
5. бойлер вполне можно закреплять на ГКЛ перегородке на основе облицовок из Диаманта, но нужно проверить по допустимой консольной нагрузке возможную ширину профиля
6. гофра сама по себе выполняет компенсирующую функцию, т.к. её диаметр больше, чем у кабелей проложенных внутри. Скорее всего гофру можно не изолировать к-флексом. Но я бы все же проконсультровался с инженером-электриком
...ничто не слишком...(с) Кармадон, "Альтист Данилов"
http://www.akustik.ua - акустическое проектное бюро
http://www.acoustic.ua - звукоизоляционные материалы
............................................
User avatar
Андрей Смирнов
Soundmoderator
 
Posts: 8791
Joined: 29 Aug 2006, 12:24
Location: Украина, Киев

Re: Звукоизоляция стен, пола и потолка (чертежи и схемы)

Postby johnson » 11 Jun 2018, 18:56

Спасибо, Андрей, уже увереннее себя чувствую :)
Возникло еще пару вопросов:

1) в случае сдвоенного каркаса самого тонкого 2x50, электрику из пола выводить между профилей, или в каком либо профиле?
Гофру с электрикой прокладывать между двумя слоями мин. ваты, поворачивая наружу в месте розеток, или вдоль обшивки? вата ужмется в местах прокладки гофры?

2) между двумя профилями сдвоенного каркаса, если я правильно понимаю нужно проклеить тот же K-flex, толщиной не менее 5мм? у вас на чертежах, правда, указана толщина вибродемпфирующей ленты 10мм.
Андрей Смирнов wrote:5. бойлер вполне можно закреплять на ГКЛ перегородке на основе облицовок из Диаманта, но нужно проверить по допустимой консольной нагрузке возможную ширину профиля

на закладных, вы имеете в виду?

Спасибо!
johnson
 
Posts: 134
Joined: 31 Jul 2017, 18:39
Location: Рига, Латвия

Re: Звукоизоляция стен, пола и потолка (чертежи и схемы)

Postby Андрей Смирнов » 12 Jun 2018, 10:18

johnson wrote:Спасибо, Андрей, уже увереннее себя чувствую :)
Возникло еще пару вопросов:

1) в случае сдвоенного каркаса самого тонкого 2x50, электрику из пола выводить между профилей, или в каком либо профиле?
Гофру с электрикой прокладывать между двумя слоями мин. ваты, поворачивая наружу в месте розеток, или вдоль обшивки? вата ужмется в местах прокладки гофры?
электрику из пола выводить в каком либо профиле? вату можно подрезать, где нужно в районе розеток
2) между двумя профилями сдвоенного каркаса, если я правильно понимаю нужно проклеить тот же K-flex, толщиной не менее 5мм? у вас на чертежах, правда, указана толщина вибродемпфирующей ленты 10мм.
между профилями достаточно проклеивать ленту 5 мм
Андрей Смирнов wrote:5. бойлер вполне можно закреплять на ГКЛ перегородке на основе облицовок из Диаманта, но нужно проверить по допустимой консольной нагрузке возможную ширину профиля

на закладных, вы имеете в виду?
да

Спасибо!
...ничто не слишком...(с) Кармадон, "Альтист Данилов"
http://www.akustik.ua - акустическое проектное бюро
http://www.acoustic.ua - звукоизоляционные материалы
............................................
User avatar
Андрей Смирнов
Soundmoderator
 
Posts: 8791
Joined: 29 Aug 2006, 12:24
Location: Украина, Киев

Re: Звукоизоляция стен, пола и потолка (чертежи и схемы)

Postby johnson » 14 Jun 2018, 08:20

Андрей Смирнов wrote:электрику из пола выводить в каком либо профиле? вату можно подрезать, где нужно в районе розеток

1) Андрей, вы поставили знак вопроса, это опечатка? т.е вывожу гофру из пола по середине профиля и прокладываю между двумя каркасами (соответственно, создается связь гофрой двух слоев ваты), это приемлимо? или вести гофру между облицовкой ГКЛ и слоем ваты, тогда по любому слой ваты одной облицовки сдвинется к слою ваты второй облицовки? или не имеет значения где вести кабель?

2) Если полки встроенного шкафа крепить в стоечные профили, можно не делать закладные? Или крепление в профиль не такое уж надежное?

3) В некоторых случаях вы пишите, что нужно делать перегородку на двойном каркасе между спальнями, а в моем случае между спальнями (№3,№4 - выделил зеленым на плане) и гостиной/прихожей тоже лучше делать двойной каркас, или одинарный но потолще, учитывая, что со стороны спальни будет встраиваемый шкаф, а со стороны прихожей шкаф купе, который наверняка тоже будет крепиться к перегородке.
plan_.jpg
plan_.jpg (45.5 KiB) Viewed 14254 times


Спасибо вам!
johnson
 
Posts: 134
Joined: 31 Jul 2017, 18:39
Location: Рига, Латвия

Re: Звукоизоляция стен, пола и потолка (чертежи и схемы)

Postby Андрей Смирнов » 14 Jun 2018, 10:18

1. это автоисправление сработало, должна была быть запятая.
Гофра прокладывается любым способом в каркасе. Главное, чтобы она не создавала жесткую связь между двумя облицовками ГКЛ. Контакт гофры с ватой не является жесткой связью.
2. крепление полок в стоечные профили вполне надежно
3. ЗИ перегородки на двойном каркасе гораздо более высокая, этим и объясняются рекомендации по применению.
...ничто не слишком...(с) Кармадон, "Альтист Данилов"
http://www.akustik.ua - акустическое проектное бюро
http://www.acoustic.ua - звукоизоляционные материалы
............................................
User avatar
Андрей Смирнов
Soundmoderator
 
Posts: 8791
Joined: 29 Aug 2006, 12:24
Location: Украина, Киев

Re: Звукоизоляция стен, пола и потолка (чертежи и схемы)

Postby Енотоввод » 14 Jun 2018, 13:53

Всем доброго времени суток!

Хочу задать вопрос по устройству плавающего пола.

Задача: звукоизолировать нижний этаж от контрольной комнаты на втором этаже. АС "проухивают" вниз что то в районе 100Гц, даже на средних значениях громкости, ударный шум почти не беспокоит.

Стартовые условия: межэтажное перекрытие из пустотной бетонной плиты 22см несущей способностью до 800кг/м^2.

Вдохновленный Ньюэллом и еще неизвестно чем, уже имею уложенные 5см ISOROC ПП-80 и и сверху них 5см ISOROC П-125.
Вот здесь их характеристики : http://isoroc.ru/P-125.htm
Слегка вгоняет в депрессию словосочетание "в качестве ненагружаемой тепло-, звукоизоляции"
Консультант в магазе убеждал что точно подойдут под плавающую бетонную стяжку... ой, я забыл где живу, простите. :mrgreen:

Можно ли лить по ним стяжку, и какой толщины, будет ли работать как звукоизоляция?
Енотоввод
 
Posts: 16
Joined: 03 Jul 2015, 17:07

Re: Звукоизоляция стен, пола и потолка (чертежи и схемы)

Postby Андрей Смирнов » 14 Jun 2018, 13:59

Указанные типы ваты не предназначены для применения под стяжкой.
...ничто не слишком...(с) Кармадон, "Альтист Данилов"
http://www.akustik.ua - акустическое проектное бюро
http://www.acoustic.ua - звукоизоляционные материалы
............................................
User avatar
Андрей Смирнов
Soundmoderator
 
Posts: 8791
Joined: 29 Aug 2006, 12:24
Location: Украина, Киев

Re: Звукоизоляция стен, пола и потолка (чертежи и схемы)

Postby Енотоввод » 14 Jun 2018, 17:56

Андрей Смирнов wrote:Указанные типы ваты не предназначены для применения под стяжкой.

Иэх!)

А чем чревато? Сплющится весь десятисантиметровый слой в 2 см?
У меня сейчас на ней 4см известковая стяжка+2см OSB+фанера+некоторая мебель, и вроде полет нормальный, усадки сильной нет. Ну это конечно не 15см бетона, но уже что-то

Если сверху добавить слой подходящей ваты и опосля залить?

Либо выход только один - разбирать до перекрытия и все по новой?
Енотоввод
 
Posts: 16
Joined: 03 Jul 2015, 17:07

Re: Звукоизоляция стен, пола и потолка (чертежи и схемы)

Postby Андрей Смирнов » 14 Jun 2018, 20:04

С устойчивостью стяжки по слою такой ваты проблем не будет, вопрос в другом - в акустических свойствах.
У минеральных ват, специально предназначенных для звукоизоляционных плавающих полов, низкое значение показателя динамической жесткости. У обычных утеплителей этот показатель существенно выше, как следствие, звукоизоляция конструкции ниже.
...ничто не слишком...(с) Кармадон, "Альтист Данилов"
http://www.akustik.ua - акустическое проектное бюро
http://www.acoustic.ua - звукоизоляционные материалы
............................................
User avatar
Андрей Смирнов
Soundmoderator
 
Posts: 8791
Joined: 29 Aug 2006, 12:24
Location: Украина, Киев

Re: Звукоизоляция стен, пола и потолка (чертежи и схемы)

Postby johnson » 15 Jun 2018, 13:32

Андрей Смирнов wrote:3. ЗИ перегородки на двойном каркасе гораздо более высокая, этим и объясняются рекомендации по применению.


Это я понимаю, просто из-за того, что к этой перегородке будут крепиться элементы шкафа, будет ли надежным крепление, ведь при двойном каркасе гипсокартон придает жесткость только с одной стороны профиля. Поэтому я и подумал, может делать одинарный каркас, но на 75 или 100мм профиле для этой перегородки.
johnson
 
Posts: 134
Joined: 31 Jul 2017, 18:39
Location: Рига, Латвия

Re: Звукоизоляция стен, пола и потолка (чертежи и схемы)

Postby Denis81 » 15 Jun 2018, 21:43

Андрей Смирнов wrote:Индекс изоляции воздушного шума конструкцией плавающего пола не имеет смысла приводить, т.к. он зависит от уровня звукоизоляции самого межэтажного перекрытия.
Дополнительная звукоизоляция воздушного шума плавающей стяжкой Acousticwool Sonet F толщиной 20 мм составляет в среднем 8-10 дБ.
Альтернативу шуманету к2 найти легко, т.к. это просто перепакованный Paroc SSB-1, продающийся под торговой маркой шуманет.

Дело не только в самих материалах. Дело именно в компаниях, кто сделает эту звукоизоляцию. Шумонет не самый дорогой материал, но с учетом работ выходит очень дорого. В СПБ только 1 компания занимается официально монтажом шуманет и стоимость работ с демонтажом стяжки просит 2800 руб. за 1м2. Поэтому очень хотелось бы найти альтернативные материалы, которые монтируют проверенные компании по более низким ценам. Вы случайно не знаете компании в России, которые занимаются монтажом данных плавающих полов?
Denis81
 
Posts: 47
Joined: 09 Jun 2018, 14:52
Location: Санкт-Петербург

Re: Звукоизоляция стен, пола и потолка (чертежи и схемы)

Postby Андрей Смирнов » 15 Jun 2018, 22:29

Denis81 wrote:Дело не только в самих материалах. Дело именно в компаниях, кто сделает эту звукоизоляцию. Шумонет не самый дорогой материал, но с учетом работ выходит очень дорого. В СПБ только 1 компания занимается официально монтажом шуманет и стоимость работ с демонтажом стяжки просит 2800 руб. за 1м2. Поэтому очень хотелось бы найти альтернативные материалы, которые монтируют проверенные компании по более низким ценам. Вы случайно не знаете компании в России, которые занимаются монтажом данных плавающих полов?

Это самая обычная работа, которую может выполнить любой профессиональный строитель.
Только шарлатаны и продаваны раздувают щеки и говорят, что плавающий пол это ужасно трудно и дорого...
...ничто не слишком...(с) Кармадон, "Альтист Данилов"
http://www.akustik.ua - акустическое проектное бюро
http://www.acoustic.ua - звукоизоляционные материалы
............................................
User avatar
Андрей Смирнов
Soundmoderator
 
Posts: 8791
Joined: 29 Aug 2006, 12:24
Location: Украина, Киев

Re: Звукоизоляция стен, пола и потолка (чертежи и схемы)

Postby Игорь Иванов » 17 Jun 2018, 16:00

Здравствуйте!
в комнате размеры 4750*3550 мм собираюсь делать подвесной потолок. вата максфорте-ЭКОПЛИТА 60/КГ Обшивка в два слоя ГВЛ= 10 мм +ГКЛ= 12 мм
По схеме для потолка D112 при нагрузке – 0,15 < P ≤ 0,30 кН/м нарисовал сетку для установки виброподвесов. вышло 35 подвесов с нагрузкой 15 кг/ м. кв на 1 подвес.
Межосевые расстояния у меня получилось а=763 мм, по схеме потолка D=112 а max 750 мм. Расстояние с= 750 мм
Расстояние "а" от стены до первого подвеса 250 мм, расстояние "с" от стены 100 мм.
сетка профилей получилась 763*752 мм.
Вопрос: Подойдет такая схема для подвесного потолка или нужен ряд дополнительных подвесов?
Игорь Иванов
 
Posts: 12
Joined: 14 Jun 2018, 17:58
Location: Россия, г. Санкт-Петербург

Re: Звукоизоляция стен, пола и потолка (чертежи и схемы)

Postby Андрей Смирнов » 17 Jun 2018, 18:13

Игорь Иванов wrote:Здравствуйте!
в комнате размеры 4750*3550 мм собираюсь делать подвесной потолок. вата максфорте-ЭКОПЛИТА 60/КГ Обшивка в два слоя ГВЛ= 10 мм +ГКЛ= 12 мм
По схеме для потолка D112 при нагрузке – 0,15 < P ≤ 0,30 кН/м нарисовал сетку для установки виброподвесов. вышло 35 подвесов с нагрузкой 15 кг/ м. кв на 1 подвес.
Межосевые расстояния у меня получилось а=763 мм, по схеме потолка D=112 а max 750 мм. Расстояние с= 750 мм
Расстояние "а" от стены до первого подвеса 250 мм, расстояние "с" от стены 100 мм.
сетка профилей получилась 763*752 мм.
Вопрос: Подойдет такая схема для подвесного потолка или нужен ряд дополнительных подвесов?

Вопрос расчета количества подвесов надо адресовать строителям, которые будут монтировать потолок, это не акустический вопрос.
Следует придерживаться рекомендаций Кнауф и не превышать табличных значений.
...ничто не слишком...(с) Кармадон, "Альтист Данилов"
http://www.akustik.ua - акустическое проектное бюро
http://www.acoustic.ua - звукоизоляционные материалы
............................................
User avatar
Андрей Смирнов
Soundmoderator
 
Posts: 8791
Joined: 29 Aug 2006, 12:24
Location: Украина, Киев

Re: Звукоизоляция стен, пола и потолка (чертежи и схемы)

Postby Игорь Иванов » 17 Jun 2018, 18:24

Андрей Смирнов wrote:
Игорь Иванов wrote:Здравствуйте!
в комнате размеры 4750*3550 мм собираюсь делать подвесной потолок. вата максфорте-ЭКОПЛИТА 60/КГ Обшивка в два слоя ГВЛ= 10 мм +ГКЛ= 12 мм
По схеме для потолка D112 при нагрузке – 0,15 < P ≤ 0,30 кН/м нарисовал сетку для установки виброподвесов. вышло 35 подвесов с нагрузкой 15 кг/ м. кв на 1 подвес.
Межосевые расстояния у меня получилось а=763 мм, по схеме потолка D=112 а max 750 мм. Расстояние с= 750 мм
Расстояние "а" от стены до первого подвеса 250 мм, расстояние "с" от стены 100 мм.
сетка профилей получилась 763*752 мм.
Вопрос: Подойдет такая схема для подвесного потолка или нужен ряд дополнительных подвесов?

Вопрос расчета количества подвесов надо адресовать строителям, которые будут монтировать потолок, это не акустический вопрос.
Следует придерживаться рекомендаций Кнауф и не превышать табличных значений.


Подвесы уже взял. Делать потолок собираюсь сам. Масса потолка 30 кг/м.кв, масса потолка 35 подвесов * 15 кг/ 1 подвес= 525 кг масса потолка.

Что эффективней использовать в обшивке потолка ГВЛ= 10 мм+ГКЛ-12 мм или ГКЛ (Аку-Лайн) + ГКЛ 15 мм Strong
Игорь Иванов
 
Posts: 12
Joined: 14 Jun 2018, 17:58
Location: Россия, г. Санкт-Петербург

PreviousNext

Return to Звукоізоляція

Who is online

Users browsing this forum: No registered users and 4 guests

cron