Vibrofix

Звукоизоляция стен, пола и потолка (чертежи и схемы)

Обговорення проблем захисту від шуму, звукоізоляції приміщень, віброізоляції обладнання.
Проєктування, матеріали, вимірювання

Re: Звукоизоляция стен, пола и потолка (чертежи и схемы)

Postby pkugel » 07 Dec 2020, 14:47

[quote="Андрей Смирнов"] Здравствуйте, собираюсь делать звукоизоляцию "комната в комнате" и никак не приду к пониманию, что же всё таки лучше из сочетаний обшивки каркаса
1. гвл 10мм+ Гипсокартон Кнауф Титан(он же в России "сапфир", если я правильно понимаю) 12,5 мм. Или 2 слоя гкл Кнауф Титан 12,5 мм. Мнения разошлись. Пишут что нельзя из пирога убирать волокнистый слой и что именно гвл и именно 10 мм. У вас же везде стоит Гипсокартон Кнауф Титан 12,5 мм в два слоя. Говорят что у гвл выше индекс звукоизоляции. И что 2 листа одинакового материала могут войти в резонанс. Проясните пожалуйста, как лучше.
2. Про пол полусухую стяжку по какой вате лучше сделать? шумостоп с2+К2 или к2+k2, типа полусухая легче чем мокрая и излишняя упругость С2 может только мешать. Есть ли аналоги приличные у шумостопа у того же Роквул???
3. Отправляете ли вы свои изделия в Россию?
pkugel
 
Posts: 8
Joined: 07 Dec 2020, 12:13
Location: Россия, г.Самара

Re: Звукоизоляция стен, пола и потолка (чертежи и схемы)

Postby Андрей Смирнов » 07 Dec 2020, 15:48

1. ГВЛ10 + ГКЛ 12,5...

Такой комбинированный состав облицовки я предложил много лет назад и проиллюстрировал на своем сайте acoustic.ua.
Целью такой двухслойной облицовки является увеличение звукоизоляции каркасной конструкции в области критической частоты (в диапазоне частот 2000-4000 Гц) материала облицовки без увеличения общей толщины.
Добиться этого можно несколькими способами, например, укладывая между двумя слоями ГКЛ вязкоэластичной мембраны или применяя листовые материалы с различными критическими частотами.
Значение критической частоты ГКЛ и ГВЛ зависит от их толщины.
Если толщина разная, то увеличение ЗИ происходит в диапазоне 2000-4000 Гц за счет рассогласования частот волнового совпадения двух (или трех) слоев облицовки.

Т.к. в Украине в то время был доступен ГВЛ только толщиной только 10 мм, то самый простой вариант облицовки получился ГКЛ 12,5 мм + ГВЛ 10 мм.
Со временем комбинированная облицовка ГВЛ+ГКЛ перекочевала на другие инет-ресурсы.
При этом из поля зрения многих пользователей выпало небольшое, но принципиальное различие в толщине ГВЛ и ГКЛ.
Дело в том, что если оба материала (ГВЛ и ГКЛ) имеют одинаковую толщину, то и частоты волнового совпадения у них одинаковые и выигрыша в ЗИ не будет.
С временем на рынке появились новые материалы, такие как Кнауф Титан (Диамант, Сапфир), плотность которых почти в 2 раза выше, чем у обычного ГКЛ.
Поэтому на сегодняшний день примерно равноценными являются трехслойные облицовки из обычного ГКЛ и двухслойные из Титана.
На практике, если применять трехслойную облицовку, независимо от материала (ГВЛ или ГКЛ) рассогласование толщин не требуется.
Это связано с тем, что в трехслойной облицовке возникают достаточно большие внутренние потери на трение между слоями гипсокартона, что нивелирует провал ЗИ на критической частоте.
Но многое зависит и от постановки звукоизоляционной задачи.
Для критичесикх объектов мы рекомендуем применять двухслойные облицовки Кнауф Титан совместно с вязкоэластичной мембраной Vibrofix ML https://acoustic.ua/production/879.html?g=4&page=0

2. отличный эффект дает применение под стяжкой ваты Acousticwool Sonet F, Paroc SSB-1 и Rockwool Floor Batts толщиной 20-25 мм.
...ничто не слишком...(с) Кармадон, "Альтист Данилов"
http://www.akustik.ua - акустическое проектное бюро
http://www.acoustic.ua - звукоизоляционные материалы
............................................
User avatar
Андрей Смирнов
Soundmoderator
 
Posts: 8791
Joined: 29 Aug 2006, 12:24
Location: Украина, Киев

Re: Звукоизоляция стен, пола и потолка (чертежи и схемы)

Postby Nikita » 07 Dec 2020, 17:41

Андрей Смирнов wrote:Если боитесь затопления сверху, то ничего не делайте.

Отличный ответ по затоплению, тоже спрашивают постоянно! :lol:
User avatar
Nikita
 
Posts: 65
Joined: 24 Apr 2013, 11:49

Re: Звукоизоляция стен, пола и потолка (чертежи и схемы)

Postby pkugel » 07 Dec 2020, 21:15

Андрей Смирнов wrote:1. ГВЛ10 + ГКЛ 12,5...

Такой комбинированный состав облицовки я предложил много лет назад и проиллюстрировал на своем сайте acoustic.ua в разделе "Типовые звукоизоляционные конструкции".
Целью такой двухслойной облицовки является увеличение звукоизоляции каркасной конструкции в области критической частоты (волнового совпадения) материала облицовки без увеличения общей толщины.
Добиться этого можно несколькими способами, например, укладывая между двумя слоями ГКЛ вязкоэластичной мембраны или применяя листовые материалы с различными критическими частотами.
Значение критической частоты ГКЛ и ГВЛ зависит от их толщины.
Если толщина разная, то увеличение ЗИ происходит в диапазоне 2000-4000 Гц за счет рассогласования частот волнового совпадения двух (или трех) слоев облицовки.

Т.к. в Украине в то время был доступен ГВЛ только толщиной только 10 мм, то самый простой вариант облицовки получился ГКЛ 12,5 мм + ГВЛ 10 мм.
Со временем комбинированная облицовка ГВЛ+ГКЛ перекочевала сначала на другие инет-ресурсы.
При этом из поля зрения многих пользователей выпало небольшое, но принципиальное различие в толщине ГВЛ и ГКЛ.
Дело в том, что если оба материала (ГВЛ и ГКЛ) имеют одинаковую толщину, то и частоты волнового совпадения у них одинаковые и выигрыша в ЗИ не будет.
С временем на рынке появились новые материалы, такие как Кнауф Титан (Диамант, Сапфир), плотность которых почти в 2 раза выше, чем у обычного ГКЛ.
Поэтому на сегодняшний день примерно равноценными являются трехслойные облицовки из обычного ГКЛ и двухслойные из Титана.
На практике, если применять трехслойную облицовку, независимо от материала (ГВЛ или ГКЛ) рассогласование толщин не требуется.
Это связано с тем, что в трехслойной облицовке возникают достаточно большие внутренние потери на трение между слоями гипсокартона, что нивелирует провал ЗИ на критической частоте.
Но многое зависит и от постановки звукоизоляционной задачи.
Для критичесикх объектов мы рекомендуем применять двухслойные облицовки Кнауф Титан совместно с вязкоэластичной мембраной Vibrofix ML https://acoustic.ua/production/879.html?g=4&page=0

2. отличный эффект дает применение под стяжкой ваты Paroc SSB-1 и Rockwool Floor Batts толщиной 20-25 мм.

ООО спасибо за ответ, всегда приятно пообщаться с первоисточником. Я правильно понял если 2 одинаковых слоя то требуется мембрана между слоями, если три слоя то такой необходимости нет? И ещё отниму буквально пару минут вашего времени. Что вы думаете об эффективности двп(12.5 и даже 25 мм) плит изоплат, их активно начали продвигать на рынке, в том числе и как замена минвате(корректна ли такая замена?). И ваше отношение к тестам типа "коробочка"(делают коробочку из разного типа материалов, накрывают колонку и типа смотрите сами)???
pkugel
 
Posts: 8
Joined: 07 Dec 2020, 12:13
Location: Россия, г.Самара

Re: Звукоизоляция стен, пола и потолка (чертежи и схемы)

Postby Андрей Смирнов » 08 Dec 2020, 00:25

Изоплат это обычный мягкий ДВП.
К звукоизоляционным и звукопоглощающим материалам имеет только отдаленное отношение.
Тест типа "коробочка" это рекламная штука, не более, но наглядная :)
...ничто не слишком...(с) Кармадон, "Альтист Данилов"
http://www.akustik.ua - акустическое проектное бюро
http://www.acoustic.ua - звукоизоляционные материалы
............................................
User avatar
Андрей Смирнов
Soundmoderator
 
Posts: 8791
Joined: 29 Aug 2006, 12:24
Location: Украина, Киев

Re: Звукоизоляция стен, пола и потолка (чертежи и схемы)

Postby pkugel » 08 Dec 2020, 08:13

Андрей Смирнов wrote:Изоплат это обычный мягкий ДВП.
К звукоизоляционным и звукопоглощающим материалам имеет только отдаленное отношение.
Тест типа "коробочка" это рекламная штука, не более, но наглядная :)

Понятно, опять жулики. Именно производители изоплата, делали тест "коробочка" и разводили, смысл посыла был такой, покупайте изоплат не покупайте минвату(сделали коробочку из изоплата и ваты и сравнивали), мне тоже показалось это, скажем так сомнительно. Отзывы тоже не радуют, применение изоплата в некоторых случаях приводило даже к ухудшению существующей ЗИ. Каких только "советов" не увидел в сети по ЗИ, проверил их по вашему форуму и по российскому, процентов 80 % мало того, что абсолютно бесполезные, так ещё вредные. Полная абсолютная безграмотность в вопросах ЗИ, при чём в основной массе это ремонтники-шабашники, да и даже фирмы. Самые популярные советы, пена в кбб, пробка(обещали аж 70!!!!дб ЗИ) итд. Интересно как обстоят дела со ЗИ в Европе и США, такой блог я бы почитал с интересом.
pkugel
 
Posts: 8
Joined: 07 Dec 2020, 12:13
Location: Россия, г.Самара

Re: Звукоизоляция стен, пола и потолка (чертежи и схемы)

Postby johnson » 17 Dec 2020, 17:26

Андрей Смирнов wrote:Можно делать керамзитбетон на всю толщину по слою из химически сшитого пенополиэтилена толщиной 5-6 мм.
В санузлах вопрос звукоизоляции ударного шума не очень актуален, кто там на каблуках бегать будет? :)


Ближайшее, и с возможностью доставки в Латвию нашел вот здесь: https://izolon.ua/polotno-izolon-base-5 ... -mm%5B5%5D
Андрей, это правильный материал, или что-то не то? Смущает малая плотность 25кг/м3.

Еще у них на сайте есть физически сшитый, там плотность 33кг/м3. Может лучше его?
johnson
 
Posts: 134
Joined: 31 Jul 2017, 18:39
Location: Рига, Латвия

Re: Звукоизоляция стен, пола и потолка (чертежи и схемы)

Postby Андрей Смирнов » 17 Dec 2020, 20:35

Производитель в РФ - дилер в Украине - Рига, Латвия...
Зачем вам такой крюк?
Зайдите на сайт производителя и решите, что вам нужно https://isolon.ru/products/Oblasti_prim ... =28&ID=413
...ничто не слишком...(с) Кармадон, "Альтист Данилов"
http://www.akustik.ua - акустическое проектное бюро
http://www.acoustic.ua - звукоизоляционные материалы
............................................
User avatar
Андрей Смирнов
Soundmoderator
 
Posts: 8791
Joined: 29 Aug 2006, 12:24
Location: Украина, Киев

Re: Звукоизоляция стен, пола и потолка (чертежи и схемы)

Postby pkugel » 21 Dec 2020, 08:48

Слышал такое мнение, интересно ваше мнение по этому вопросу. Суть, со временем вата даёт усадку и появляются щели и звукоизоляция существенно ухудшается, это касается ваты в каркасе звукоизоляции стены. Насколько это критично и есть ли смысл тогда использовать два типа ваты разной плотности например Rockwool АКУСТИК БАТТС 50 и Rockwool Акустик Баттс ПРО Ультратонкий 27 мм?
pkugel
 
Posts: 8
Joined: 07 Dec 2020, 12:13
Location: Россия, г.Самара

Re: Звукоизоляция стен, пола и потолка (чертежи и схемы)

Postby Андрей Смирнов » 21 Dec 2020, 10:06

pkugel wrote:Слышал такое мнение, интересно ваше мнение по этому вопросу. Суть, со временем вата даёт усадку и появляются щели и звукоизоляция существенно ухудшается, это касается ваты в каркасе звукоизоляции стены. Насколько это критично и есть ли смысл тогда использовать два типа ваты разной плотности например Rockwool АКУСТИК БАТТС 50 и Rockwool Акустик Баттс ПРО Ультратонкий 27 мм?

Если вата акустическая правильной плотности (45-80 кг/м3 в среднем), то в перегородках никакой усадки со временем не будет.
Усаживается вата плотностью 11-20 кг/м3.
Кроме того, всегда можно выполнить горизонтальные перемычки в каркасе перегородки/облицовки.
...ничто не слишком...(с) Кармадон, "Альтист Данилов"
http://www.akustik.ua - акустическое проектное бюро
http://www.acoustic.ua - звукоизоляционные материалы
............................................
User avatar
Андрей Смирнов
Soundmoderator
 
Posts: 8791
Joined: 29 Aug 2006, 12:24
Location: Украина, Киев

Re: Звукоизоляция стен, пола и потолка (чертежи и схемы)

Postby nxdorma » 21 Dec 2020, 13:38

Андрей, хочу сделать звукоизоляционную облицовку стены на профиле 50 мм с максимально возможным отступом от звукоизолируемой стены.
Из-за плохой геометрии комнаты получается сделать с одного конца облицовки максимальный отступ - 0,5 см, а с другого - 3,5 см.
Вопрос: эффект звукоизоляции будет по меньшему расстоянию отступа от стены или по среднему значению?
nxdorma
 
Posts: 4
Joined: 26 May 2020, 20:02
Location: Россия, Тюмень

Re: Звукоизоляция стен, пола и потолка (чертежи и схемы)

Postby Андрей Смирнов » 21 Dec 2020, 13:40

nxdorma wrote:Андрей, хочу сделать звукоизоляционную облицовку стены на профиле 50 мм с максимально возможным отступом от звукоизолируемой стены.
Из-за плохой геометрии комнаты получается сделать с одного конца облицовки максимальный отступ - 0,5 см, а с другого - 3,5 см.
Вопрос: эффект звукоизоляции будет по меньшему расстоянию отступа от стены или по среднему значению?

Будет какое-то среднее значение.
...ничто не слишком...(с) Кармадон, "Альтист Данилов"
http://www.akustik.ua - акустическое проектное бюро
http://www.acoustic.ua - звукоизоляционные материалы
............................................
User avatar
Андрей Смирнов
Soundmoderator
 
Posts: 8791
Joined: 29 Aug 2006, 12:24
Location: Украина, Киев

Re: Звукоизоляция стен, пола и потолка (чертежи и схемы)

Postby GrundiG » 31 Dec 2020, 12:11

Андрей Смирнов wrote:Все варианты "с приклеенным ГКЛ на клей-пену или на «ляпки» из смеси перлфикс" будух хуже по ЗИ по сравнению и с голыми ригелями/колонная и оштукатуренными.
Проблема в том, что ГКЛ на относе 2-5 мм от поверхности бетона обладает резонансными свойствами на частотах 250-450 Гц, т.е. в самом критичном для человеческого слуха диапазоне.
На этих частотах, согласно законам физики, будет наблюдаться провал ЗИ.
Вариант с монтажной пеной еще хуже, т.к. диапазон влияния резонансов при этом расширяется.


С наступающим, Андрей и форум! Было прочитано где-то в глубине форума, что если нужно использовать ГКЛ, то посадить его на клей перлфикс под гребенку. Позже прочитана ваша цитата про 2-5мм относ от бетона и резонансом 250-450 Гц. Стена оклеена уже давно, и мелкие пустоты между гребенками 100% присутствуют, вопрос - это тоже считается резонатором как описано выше, либо гребенка смещает частоту в не критичный диапазон? При простукивании ГКЛ Не стучит как барабан. Спасибо и с праздниками всех!
GrundiG
 
Posts: 3
Joined: 10 Sep 2019, 09:31
Location: Украина, Лисичанск

Re: Звукоизоляция стен, пола и потолка (чертежи и схемы)

Postby Андрей Смирнов » 31 Dec 2020, 13:32

GrundiG wrote:С наступающим, Андрей и форум! Было прочитано где-то в глубине форума, что если нужно использовать ГКЛ, то посадить его на клей перлфикс под гребенку. Позже прочитана ваша цитата про 2-5мм относ от бетона и резонансом 250-450 Гц. Стена оклеена уже давно, и мелкие пустоты между гребенками 100% присутствуют, вопрос - это тоже считается резонатором как описано выше, либо гребенка смещает частоту в не критичный диапазон? При простукивании ГКЛ Не стучит как барабан. Спасибо и с праздниками всех!

Проблема с ЗИ возникает только при монтаже ГКЛ на "ляпы", т.к. между ними достаточно большое расстояние, позволяющее листу гипсокартона колебаться.
При монтаже ГКЛ на клей под гребенку возможности листу гипсокартона колебаться не возникает.
...ничто не слишком...(с) Кармадон, "Альтист Данилов"
http://www.akustik.ua - акустическое проектное бюро
http://www.acoustic.ua - звукоизоляционные материалы
............................................
User avatar
Андрей Смирнов
Soundmoderator
 
Posts: 8791
Joined: 29 Aug 2006, 12:24
Location: Украина, Киев

Re: Звукоизоляция стен, пола и потолка (чертежи и схемы)

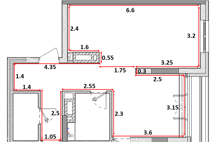
Postby AlexTs » 18 Jan 2021, 03:48

Здравствуйте.
Подскажите пожалуйста - насколько может снизится эффект по шумоизоляции если облицовку прикрепить не к подвесному потолку (двухуровневый на вибропродвесах) а именно к Ж/Б перекрытию в следующей ситуации:

Дано:
Лифтовая шахта (точнее две) за стеной кухни-гостиной, этаж последний, шум от лифтов. Шум в основном идет по стене, смежной с шахтой, и по потолку. Эквивалентный уровень звука ~30 дБА (фон ~23-24 дБА), доминирующая частота ~280 Гц.
Стена, смежная с шахтой, монолитная толщиной 160 мм вроде - на рисунке в самом верху длиной 6.6 м, обозначена серым. По субъективным результатам прослушивания стена кажется самая громкая, а потолок все же немного потише (толщина перекрытия 200 мм). Планируется обшивка потолка двухуровневым каркасом на виброподвесах (воздушный промежуток ~9-10 cм) и независимая облицовка стены (воздушный промежуток ~6-7 см), стяжка от застройщика плавающая на вате Isover флор.
Ввиду сложной формы кухни-гостиной и единого контура потолка с коридором есть опасения что потолок может "закапризничать", и нарушится геометрия/плоскость или "перекосит" его с упором в какую нибудь стену (что возможно тоже повлияет на эффект шумоизоляции). А возможная дополнительная нагрузка от независимой облицовки при ее креплении к подвесному потолку тоже не помогает (плюс если еще вдруг например стяжка несколько просядет под нагрузкой/с течением времени).
Может не так критично закрепить верхний профиль для облицовки к Ж/Б перекрытию через демпфирующую ленту. Как вариант "разобрать" виброподвес и пустить полиуретан на "прокладку" под саморезы еще.
Спасибо!

P.S. возможно дальше будут изолироваться и другие стены, но это уже по результатам
1.png
1.png (84.51 KiB) Viewed 13110 times
AlexTs
 
Posts: 12
Joined: 16 Jan 2021, 02:41
Location: Тюмень

Re: Звукоизоляция стен, пола и потолка (чертежи и схемы)

Postby Андрей Смирнов » 18 Jan 2021, 19:46

В вашем случае никакие облицовки стен и потолка радикально не решат проблему шума от лифта.
В первую очередь нужно виброизолировать лифтовую лебедку, это наиболее эффективные ЗИ мероприятия.
...ничто не слишком...(с) Кармадон, "Альтист Данилов"
http://www.akustik.ua - акустическое проектное бюро
http://www.acoustic.ua - звукоизоляционные материалы
............................................
User avatar
Андрей Смирнов
Soundmoderator
 
Posts: 8791
Joined: 29 Aug 2006, 12:24
Location: Украина, Киев

Re: Звукоизоляция стен, пола и потолка (чертежи и схемы)

Postby sergey69 » 18 Jan 2021, 20:01

Андрей, добрый день!
Не могли бы ответить на мои вопросы. Создал новую тему так как не знал как будет лучше.
Вот ссылка.
viewtopic.php?f=1&t=2887
Спасибо.
Last edited by sergey69 on 18 Jan 2021, 20:02, edited 2 times in total.
sergey69
 
Posts: 20
Joined: 17 Jan 2021, 20:33

Re: Звукоизоляция стен, пола и потолка (чертежи и схемы)

Postby AlexTs » 18 Jan 2021, 20:01

лебедки застройщик переустанавливал, до переустановки было 38-39 дБА ))
AlexTs
 
Posts: 12
Joined: 16 Jan 2021, 02:41
Location: Тюмень

Re: Звукоизоляция стен, пола и потолка (чертежи и схемы)

Postby Андрей Смирнов » 19 Jan 2021, 09:54

Шум лебедки и лифтового оборудования структурный, т.е. распространяется по всем строительным конструкциям, а не по воздуху.
Поэтому изолировать его проблематично.
Требуется полная звукоизоляция стен, пола и потолка.
...ничто не слишком...(с) Кармадон, "Альтист Данилов"
http://www.akustik.ua - акустическое проектное бюро
http://www.acoustic.ua - звукоизоляционные материалы
............................................
User avatar
Андрей Смирнов
Soundmoderator
 
Posts: 8791
Joined: 29 Aug 2006, 12:24
Location: Украина, Киев

Re: Звукоизоляция стен, пола и потолка (чертежи и схемы)

Postby sergey69 » 19 Jan 2021, 20:45

Андрей Смирнов wrote:Шум лебедки и лифтового оборудования структурный, т.е. распространяется по всем строительным конструкциям, а не по воздуху.
Поэтому изолировать его проблематично.
Требуется полная звукоизоляция стен, пола и потолка.

Андрей, добрый день!
Не могли бы ответить на мои вопросы. Создал новую тему так как не знал как будет лучше.
Вот ссылка.
viewtopic.php?f=1&t=2887
Спасибо.
sergey69
 
Posts: 20
Joined: 17 Jan 2021, 20:33

PreviousNext

Return to Звукоізоляція

Who is online

Users browsing this forum: No registered users and 2 guests

cron