Хочу Звукоизоляцию пола и стен сделать – по начинке определился уже, далее думал всё просто, но начал чуть глубже смотреть и понимаю, что нужно для начала какой-то план/схему/проект составить, а то всё напрасно может быть иначе
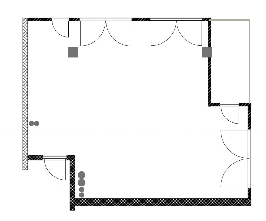
Имеется квартира черновая 65 м.кв. пока еще без стен, т.е. перегородок на последнем этаже … потолок – это по сути крыша дома (мягкая кровля на стропилах).
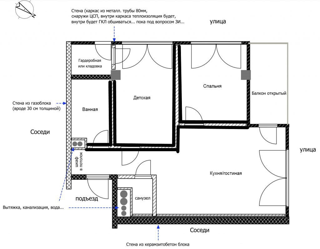
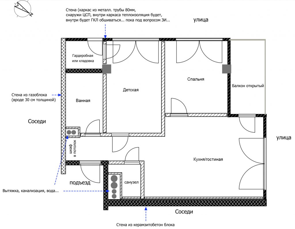
Стены буду делать каркасные (профиль, гвл+гкл, ЗИ вата), и в некоторых местах облицовка каркасная. Сначала думал всё по кругу в каркасной облицовке, а затем перегородки, но потом подумал, что это не везде нужно.
На картинках: пустая квартира, и как планирую выставить стены/облицовки.
Прошу подсказать по ЗИ: по примыканиям стен и облицовок всё ли верно для ЗИ, и по наличию/уместности той или иной стены.
Конкретнее:
1. Сначала планирую закрыть в каркасах (профиль 50 + вата + гкл+гкл) трубы.
Вопрос: нужно ли дополнительно сами трубы ЗИ? Просто этаж верхний и мимо пролетать в трубах нечему… или все равно с нижних этажей будет звук?
2. Затем облицовка каркасная нижней стены (профиль 75 (или 100) + вата + гвл+гкл). И каркасная перегородка санузла (профиль 2*50 + вата + гвл+гкл).
Вопрос: для ЗИ лучше сначала перегородку, а потом облицовку в гостиной и санузле (как на картинке)? Тут встает вопрос еще – нужная ли облицовка в санузле в таком случае?
Или лучше всё-таки на всю стену облицовку сделать, а к ней уже перегородку санузла примкнуть?
3. Стену слева сначала тоже думал в каркасной облицовке сделать, но потом подумал, что для ванной и кладовки не важна ЗИ, а в коридоре будет шкаф в потолок… тоже наверное не нужна ЗИ. Т.е. мне главное, чтобы я не слышал соседей, и они меня не слышали именно в комнатах и гостиной.
Поэтому уже внутри квартиры сами перегородки сделать на сдвоенном каркасе (профиль 2*50 + вата + гвл+гкл) – что и даст ЗИ.
Вопрос: Верно ли рассуждение о стене слева?
4. Внутри квартиры сами перегородки планирую на сдвоенном независимом каркасе (профиль 2*50 + вата + гвл+гкл).
Вопрос: Т.к. у меня там межкомнатные двери без порогов будут, то не потеряется ли смысл двойного независимого каркаса, т.к. двери будут мостиками?
5. На схеме ниже видно, как это планирую делать перегородки … по примыканиям к стенам и между собой. Жирными линиями выделены как бы каркасы независимые перегородок.
Вопрос: корректно ли указан по примыканиям по ЗИ?
6. Шов в стяжке обязательно должен быть между каркасами? Или можно с одной стороны от двух каркасов?
ЗАРАНЕЕ СПАСИБО!
