Уважаемый Андрей и пользователи форума, здравствуйте.
Очень нуждаюсь Вашей профессиональной консультации в вопросе звуко/шумо- изоляции пола в квартире в новостройке.
Вводные данные: 2-К квартира (S=62.66 м2) на 8 этаже; дом кирпичный (красный кирпич); пол – монолитное бетонное (сплошное) перекрытие (20 см). Стяжка от застройщика – 10 см. Трубы расположены на полу (горизонтально). Буду отказываться от стяжки застройщика.
Задача: звуко/шумо- изоляции пола путем использования звукоизоляционного материала с применением плавающей стяжки.
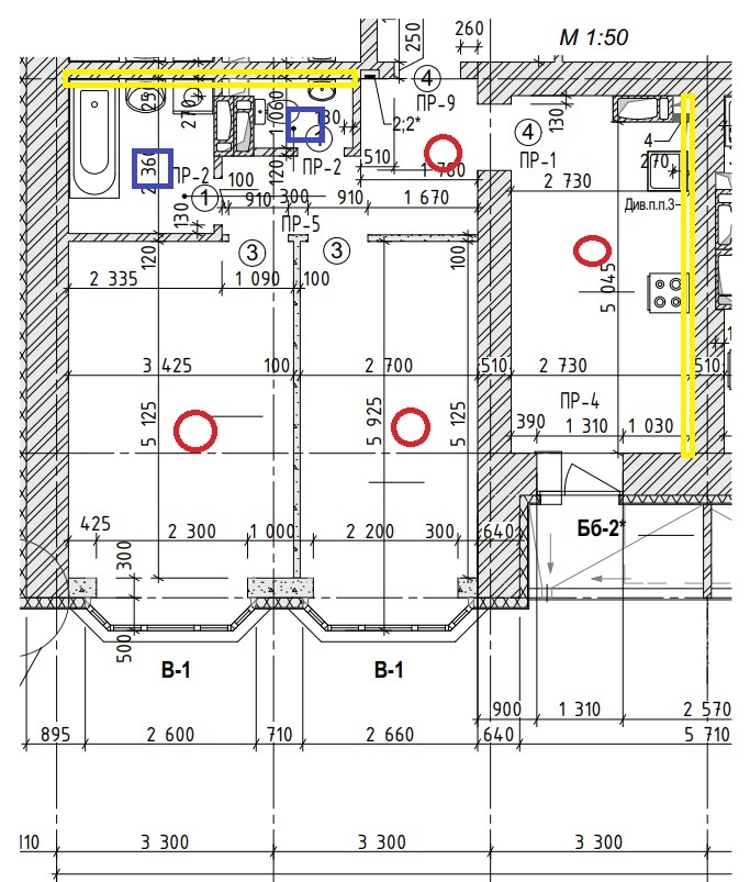
На схема выделил «красный круг» - зоны, которые необходимо звукоизолировать; «синим» - зоны, которые не буду звукоизолировать (возможно я не прав, Вы посоветуете иное); «желтым» - звукоизоляция стен.
Картинка - "Схема квартиры"
Цель: максимальная минимизация ударных шумов (например, бег/прыжки по полу детей) от соседей снизу.
Проведенный анализ: данный вопрос является очень актуальным для меня, т.к. в квартире, в которой живу сейчас невозможно находиться из-за соседского ребенка снизу.
Я сделал запрос в НИИ строительных конструкций (Киев) и получил ответ. Суть сводится к тому, что необходимо применять плавающий пол. В качестве звукоизоляционного материала рекомендуется использование минераловатные плиты из базальтового волокна толщиной 30-40 мм и плотность 90-120 кг/м3.
Промониторил рынок и подобрал следующие материалы (руководствовался исключительно показателями плотности и индексом снижения ударного шума) - картинка "Материал"
Перечитал форумы, пересмотрел ютуб. Все свелось к «пирогу» на 10 см:
Vibrostop – нужен ли он (целесообразен)???
AcousticWool Sonet F (20 мм или 30 мм) + борты;
Армированный полиэтилен 20 мкм;
Армированная сетка с клеткой 50х50
Цементно-песчаная стяжка (ЦПС) 60 мм.
Края (борты) обрабатываются герметиком (Акуфлес-ВС)
Вопросы:
(1) Эффективный ли «пирог» мною выбраный; правильный ли он?
(2) Какую толщину AcousticWool Sonet F лучше взять: 20 мм или 30 мм?
(3) Если 30 мм AcousticWool Sonet F то уменьшаем толщину ЦПС на 10 мм – насколько это правильно/эффективно (хуже не сделаю)?
(4) Как правильнее поступить с трубами, которые расположены на полу?
a) «укутать»/обвернуть материалом? /посоветуйте, пожалуйста, каким именно/ или
b) облегченная стяжка по уровень труб /посоветуйте, пожалуйста, что лучше, керамзит или что-то другое… / или
c) прорезать в плите AcousticWool Sonet F выемку под трубы или
d) уложить плиты AcousticWool Sonet F в притык к трубам, а сверху засыпать материалом /посоветуйте, пожалуйста, каким именно/.
(5) ЦПС какой толщины должна быть, что бы выполнять свое предназначение и при этом не покрошилась/не полополась?
(6) Правильно ли я понимаю, что AcousticWool Sonet F с годами не проседает (при бытовом использовании)?
(7) Что лучше использовать для борта/кромки: AcousticWool Sonet F или ленту?
(8) Есть ли специфические особенности кромки/борта у стены, которая потом будет звукоизолироваться ("желтым" выделил - кухня)
(8) И финальный вопрос, все эти усилия 100% не будут хуже в сравнении со стяжкой застройщика?
Заранее очень признателен всем за советы.
