Vibrofix

Звукоизоляция. Посоветуйте типовое бюджетное решение

Обговорення проблем захисту від шуму, звукоізоляції приміщень, віброізоляції обладнання.
Проєктування, матеріали, вимірювання

Звукоизоляция. Посоветуйте типовое бюджетное решение

Postby SergeyKLIM » 20 Feb 2017, 12:25

Здравствуйте.

Имеется 2ух комнатная квартира суммарной площадью 69 кв/м, предназначенное для проживания семьи (Я, супурга, сын 5ти лет)
Квартира располагается в г.Краснодар, расположена возле оживленной магистрали с трамвайными путями, на 13м этаже

Необходимо добиться звукоизоляции воздушного шума(на сколько я понимаю правильно свое желание.)
Особое внимание хочется уделить спальной комнате(находится посреди помещения на плане)
В основном мы хотим что бы нам не мешали звуки с кухни, детской и соседей сверху(хотя я не уверен что они будут шумные)

Планировчное решение которые мы будем реализовывать
https://www.dropbox.com/s/5z8ccqpvdrfmk9j/WORK_ARCH_21-Krasnodar-2-06-%D0%9C%D0%B5%D0%B1%D0%B5%D0%BB%D1%8C.pdf?dl=0

Тип помещения:
- Конструктивные решения: фундаменты – сплошная железобетонная плита; конструктивная схема – монолитный железобетонный рамно-связевый каркас; наружные стены – облицовочный кирпич 120 мм, газобетонные блоки 300мм; перегородки в сан.узлах – кирпичные 65 мм М100, межквартирные –бетонные блоки 200мм, кирпичные 250 мм М100;стены между лестничной клеткой и квартирой – железобетон 200 мм с облицовкой минераловатными плитами 50 мм и штукатуркой цементно-песчаным раствором 25мм; кровля – скатная из профнастила с внутренними водостоками. Фасад комбинированный – облицовочный кирпич, штукатурка и окраска.
-Штукатурка наружных и внутренних межквартирных стен, с устройством стяжки полов;
- Окна и балконные блоки – металлопластиковые;

План помещения по ссылке (квартира слева сверху , 2ух комнатная(
https://www.dropbox.com/s/5nifa56gpsu7hl6/%D0%9A%D0%BB%D0%B0%D0%B4%D0%BA%D0%B0%2013-15%20%D1%8D%D1%82%D0%B0%D0%B6%D0%B8%20%D1%81%D0%B5%D0%BA%D1%86%D0%B8%D1%8F%203.pdf?dl=0

вариант планировки в ДДУ от застройщика(слева, оранжевая, номер 207)
https://www.dropbox.com/s/3200kni8hrrb8y9/%D0%9A%D0%B2%D0%B0%D1%80%D1%82%D0%B8%D1%80%D0%B0%20207.jpg?dl=0

Фотографии помещения изнутри по ссылке
https://www.dropbox.com/sh/wj6h62coierttzw/AADjMgCrW_QvNj5-YhBN1bKAa?dl=0


Вопрос
Помогите выбрать материал для межкомнатных перегородок в соотношении цена качества.
Есть ли классические решения моего вопроса?

На данные момент я пришел к следующим вариантам материалов для возведения межкомнатных перегородок:
1. ПГП 100(волма) + Саундлайн-ПГП Супер,
http://www.acoustic.ru/productions/tonk ... PGP_Super/

2. Конструкиция http://www.acoustic.ru/constructions/zv ... gorodok/8/

ps Возможно я очень "сырой" еще по необходимым знаниям, т/е прочел всего страниц 30 форума
Буду благодарен за ответы
SergeyKLIM
 
Posts: 8
Joined: 19 Feb 2017, 15:58
Location: Краснодар

Re: Звукоизоляция. Посоветуйте типовое бюджетное решение

Postby Андрей Смирнов » 20 Feb 2017, 12:59

ПГП 100(волма) + Саундлайн-ПГП Супер это наверное самое не оптимальное решение для внутренней перегородки.
Такая конструкция предлагается для того, чтобы увеличить совсем небольшую ЗИ пергородки из ПГП, если она уже существует, а ломать её не хочется. Решение весьма компромиссное.
Если перегородок пока нет, то разумнее сразу выбрать эффективное решение.
В данном случае рекомендуется выполнить перегородки по гипсокартонной технологии на каркасе шириной 100 мм с двойной облицовкой ГВЛ 12,5 мм с каждой стороны и заполнением каркаса акустической минеральной ватой. Ещё более эффективным решением будет перегородка на двух независимых каркасах, например, 2х50 мм или 2х75 мм.
...ничто не слишком...(с) Кармадон, "Альтист Данилов"
http://www.akustik.ua - акустическое проектное бюро
http://www.acoustic.ua - звукоизоляционные материалы
............................................
User avatar
Андрей Смирнов
Soundmoderator
 
Posts: 8791
Joined: 29 Aug 2006, 12:24
Location: Украина, Киев

Re: Звукоизоляция. Посоветуйте типовое бюджетное решение

Postby SergeyKLIM » 20 Feb 2017, 14:45

Андрей Смирнов wrote:ПГП 100(волма) + Саундлайн-ПГП Супер это наверное самое не оптимальное решение для внутренней перегородки.
Такая конструкция предлагается для того, чтобы увеличить совсем небольшую ЗИ пергородки из ПГП, если она уже существует, а ломать её не хочется. Решение весьма компромиссное.
Если перегородок пока нет, то разумнее сразу выбрать эффективное решение.
В данном случае рекомендуется выполнить перегородки по гипсокартонной технологии на каркасе шириной 100 мм с двойной облицовкой ГВЛ 12,5 мм с каждой стороны и заполнением каркаса акустической минеральной ватой. Ещё более эффективным решением будет перегородка на двух независимых каркасах, например, 2х50 мм или 2х75 мм.


Спасибо за ответ!
на такие конструкции я так понимаю необходимо заранее придумывать что и где будет расположено для навешивали на стену?
SergeyKLIM
 
Posts: 8
Joined: 19 Feb 2017, 15:58
Location: Краснодар

Re: Звукоизоляция. Посоветуйте типовое бюджетное решение

Postby SergeyKLIM » 21 Feb 2017, 21:30

Андрей Смирнов wrote:ПГП 100(волма) + Саундлайн-ПГП Супер это наверное самое не оптимальное решение для внутренней перегородки.
Такая конструкция предлагается для того, чтобы увеличить совсем небольшую ЗИ пергородки из ПГП, если она уже существует, а ломать её не хочется. Решение весьма компромиссное.
Если перегородок пока нет, то разумнее сразу выбрать эффективное решение.
В данном случае рекомендуется выполнить перегородки по гипсокартонной технологии на каркасе шириной 100 мм с двойной облицовкой ГВЛ 12,5 мм с каждой стороны и заполнением каркаса акустической минеральной ватой. Ещё более эффективным решением будет перегородка на двух независимых каркасах, например, 2х50 мм или 2х75 мм.



Андрей, что скажете о вот таком варианте?
http://www.acoustic.ru/constructions/zvukoizolyaciya_peregorodok/8/
SergeyKLIM
 
Posts: 8
Joined: 19 Feb 2017, 15:58
Location: Краснодар

Re: Звукоизоляция. Посоветуйте типовое бюджетное решение

Postby Андрей Смирнов » 21 Feb 2017, 22:20

Не вижу смысла выбрасывать деньги на ветер. Обычная перегородка на металлическом каркаса с двойной облицовкой с двух сторон листами Кнауф ГВЛ 12,5 мм или Кнауф Титан и заполнением акустической минеральной ватой Acousticwool Sonet или Paroc WAS 50 обладает более высокой звукоизоляцией или как минимум не меньшей при определенно более низкой цене.
Зачем платить больше?
...ничто не слишком...(с) Кармадон, "Альтист Данилов"
http://www.akustik.ua - акустическое проектное бюро
http://www.acoustic.ua - звукоизоляционные материалы
............................................
User avatar
Андрей Смирнов
Soundmoderator
 
Posts: 8791
Joined: 29 Aug 2006, 12:24
Location: Украина, Киев

Re: Звукоизоляция. Посоветуйте типовое бюджетное решение

Postby SergeyKLIM » 22 Feb 2017, 15:41

Андрей Смирнов wrote:Не вижу смысла выбрасывать деньги на ветер. Обычная перегородка на металлическом каркасе с двойной облицовкой с двух сторон листами Кнауф ГВЛ 12,5 мм или Кнауф Титан и заполнением акустической минеральной ватой Acousticwool Sonet или Paroc WAS 50 обладает более высокой звукоизоляцией или как минимум не меньшей при определенно более низкой цене.
Зачем платить больше?



Андрей, спасибо за ответ
Я смотрю в Краснодаре "не очень" с акустической минеральной ватой перичисленных вами марок и производителей.
Посоветуете аналоги продукта доступные на рынке РФ?
SergeyKLIM
 
Posts: 8
Joined: 19 Feb 2017, 15:58
Location: Краснодар

Re: Звукоизоляция. Посоветуйте типовое бюджетное решение

Postby Андрей Смирнов » 22 Feb 2017, 16:29

Ой.... обнаружил описку в своем предыдущем сообщении вам. В каркасных перегородках для увеличения ЗИ применяется Paroc WAS 50, а не Paroc SSB-1, который используется в конструкциях плавающих полов. Выше уже исправил, извините :)
Можно также применить вату Rockwool Acoustic Batts, я думаю, что она доступна в вашем регионе.
...ничто не слишком...(с) Кармадон, "Альтист Данилов"
http://www.akustik.ua - акустическое проектное бюро
http://www.acoustic.ua - звукоизоляционные материалы
............................................
User avatar
Андрей Смирнов
Soundmoderator
 
Posts: 8791
Joined: 29 Aug 2006, 12:24
Location: Украина, Киев

Re: Звукоизоляция. Посоветуйте типовое бюджетное решение

Postby SergeyKLIM » 07 Mar 2017, 08:36

Андрей, здравствуйте
Спасибо Вам за поправки.

Я все же попрошу вас еще о консультации.

Т.к по пожарным нормам безопасности я должен оставить хотя бы одну лоджию/балкон, мне приходится "ютиться" в спальне. я на это согласен...
Стены которые построил застройщик (315мм) я уберу и хочу возвести потоньше.

Стена которая между спальней и лоджией будет использована для крепления на нее радиатора отопления, соответственно ГВЛ на ней я не предполагаю.

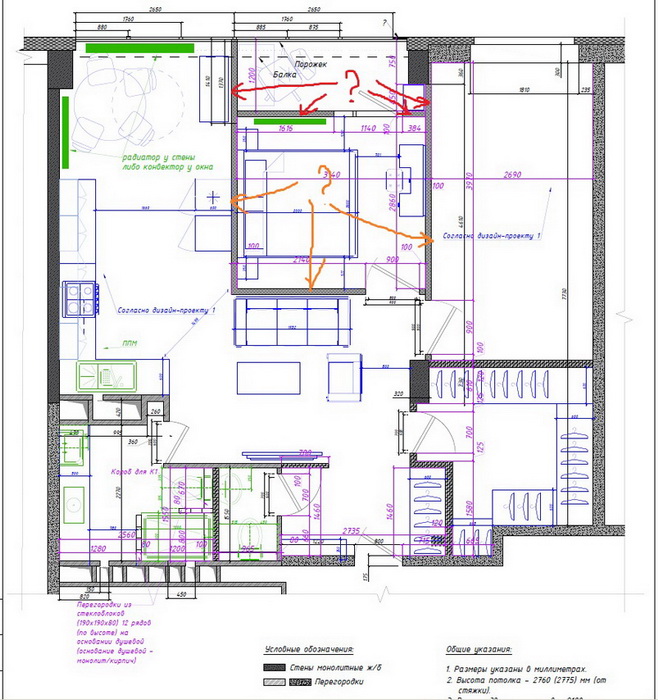
Подскажите пожалуйста, из чего на ваш взгляд можно возвести стены, которые отмечены красным и оранжевым на чертеже?
А так же остальные стены(стена между ванного и гостевым туалетом, стена между коридором и гардеробной, детской и гардеробной).

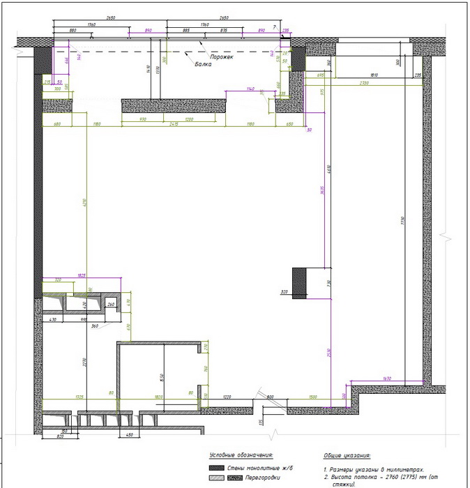
Планировка первоначальная и планировочное решение квартиры :
Как есть_resize.jpg
Первоначальная планировка от застройщика
Как есть_resize.jpg (97.91 KiB) Viewed 11769 times

Как будет2_resize.jpg
Мое планировочное решение
Как будет2_resize.jpg (162.22 KiB) Viewed 11769 times




Буду признателен за ответы.
Спасибо!

ps извиняюсь за скролл.. вроде вставляю согласно правила не более 700 пикселей, все равно скролится
SergeyKLIM
 
Posts: 8
Joined: 19 Feb 2017, 15:58
Location: Краснодар

Re: Звукоизоляция. Посоветуйте типовое бюджетное решение

Postby Андрей Смирнов » 10 Mar 2017, 10:21

Сергей, я не люблю отвечать на подобные вопросы и вот почему.
Лоджия не является жилой частью квартиры и к ней предъявляются совершенно другие требования, отличные от жилых помещений квартиры.
Лоджия согласно исходному проекту неотапливаемая, поэтому и её ограждающие конструкции обладают существенно более низкими теплоизоляционными свойствами, нежели ограждения квартиры.
Ваш дизайнер выполнил перепланировку исходя только из эргономических соображений. Требования по соблюдению норм по теплоизоляции и климатологии в указанном проекте не соблюдены и теплотехнические расчеты наверняка даже не проводились. А ведь именно на основании этих требований и должны применяться те или иные ограждающие конструкции.
Например, фраза на чертеже: "радиатор на стене либо конвектор у окна" мягко говоря безграмотна. Отопительный прибор должен создавать тепловой затвор перед оконной конструкцией, этим и определяется его месторасположение в квартире.
Присоединение лоджии к жилой комнате подразумевает корректировку состава её стен, пола и потолка с точки зрения теплоизоляции. Ведь в квартирах выше и ниже лоджии могут остаться холодными и в этом случае есть опасность выпадения конденсата в вашей квартире, как следствие, грибок и плесень.
Примыкание перегородки между лоджией и кухней к остеклению лоджии это очень сложный узел, который должен выполняться скользящим, а это требует конструкторской проработки.

Это все риски, связанные с недостаточным профессионализмом проектировщика (дизайнера).

Внутренние перегородки квартиры я бы рекомендовал выполнить по гипсокартонной технологии Кнауф исходя из соображений звукоизоляции, а вот ограждения лоджии я комментировать не берусь, т.к. тут нужна консультация инженера-теплотехника (конструктора).
...ничто не слишком...(с) Кармадон, "Альтист Данилов"
http://www.akustik.ua - акустическое проектное бюро
http://www.acoustic.ua - звукоизоляционные материалы
............................................
User avatar
Андрей Смирнов
Soundmoderator
 
Posts: 8791
Joined: 29 Aug 2006, 12:24
Location: Украина, Киев

Re: Звукоизоляция. Посоветуйте типовое бюджетное решение

Postby SergeyKLIM » 10 Mar 2017, 12:39

Андрей Смирнов wrote:...
Внутренние перегородки квартиры я бы рекомендовал выполнить по гипсокартонной технологии Кнауф исходя из соображений звукоизоляции, а вот ограждения лоджии я комментировать не берусь, т.к. тут нужна консультация инженера-теплотехника (конструктора).


Спасибо за ответы, Андрей!
в профессионализме своего проектировщика-дизайнера - я не сомневаюсь.
здесь скорее всему виной мои пожелания, которые я навязываю исходя из желания "в малое вместить многое"

буду искать инженера-теплотехника, для консультации
SergeyKLIM
 
Posts: 8
Joined: 19 Feb 2017, 15:58
Location: Краснодар

Re: Звукоизоляция. Посоветуйте типовое бюджетное решение

Postby Андрей Смирнов » 10 Mar 2017, 12:44

Вы, как заказчик, имеете право на любые пожелания.
А вот архитектор или дизайнер, ОБЯЗАН сопоставлять ваши пожелания со строительными нормами и информировать вас о возникающих в связи с этим ограничениях.
В этом и заключается профессионализм.
А если дизайнер только визуализирует пожелания клиента, то он просто чертежник, а не проектировщик :)
...ничто не слишком...(с) Кармадон, "Альтист Данилов"
http://www.akustik.ua - акустическое проектное бюро
http://www.acoustic.ua - звукоизоляционные материалы
............................................
User avatar
Андрей Смирнов
Soundmoderator
 
Posts: 8791
Joined: 29 Aug 2006, 12:24
Location: Украина, Киев

Re: Звукоизоляция. Посоветуйте типовое бюджетное решение

Postby SergeyKLIM » 10 Mar 2017, 12:49

Андрей Смирнов wrote:Вы, как заказчик, имеете право на любые пожелания.
А вот архитектор или дизайнер, ОБЯЗАН сопоставлять ваши пожелания со строительными нормами и информировать вас о возникающих в связи с этим ограничениях.
В этом и заключается профессионализм.
А если дизайнер только визуализирует пожелания клиента, то он просто чертежник, а не проектировщик :)


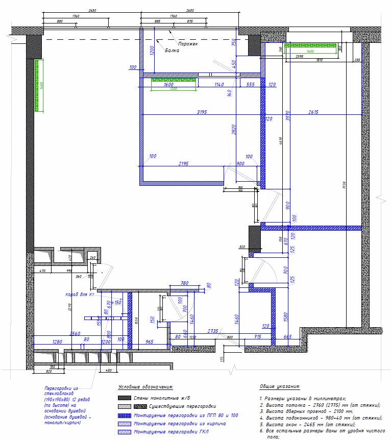
Сейчас мы пришли к кирпичу + системе W112 толщиной 100 или 125
т.ю вся лоджия - это кирпич, а спальня w112.

у меня большое сомнение по стене в детскую из ПГП.... думаю тоже w112 сделать, но там много полок и ТВ на стене

а вот гардеробная + ванная все еще вопрос для меня...
Attachments
Снимок123213.JPG
Снимок123213.JPG (124.19 KiB) Viewed 11712 times
SergeyKLIM
 
Posts: 8
Joined: 19 Feb 2017, 15:58
Location: Краснодар

Re: Звукоизоляция. Посоветуйте типовое бюджетное решение

Postby Андрей Смирнов » 10 Mar 2017, 13:05

На стены и перегородки из ГКЛ можно слонов навешивать, не то, что книжные полки.
Главное следовать технологии монтажа Кнауф :)
...ничто не слишком...(с) Кармадон, "Альтист Данилов"
http://www.akustik.ua - акустическое проектное бюро
http://www.acoustic.ua - звукоизоляционные материалы
............................................
User avatar
Андрей Смирнов
Soundmoderator
 
Posts: 8791
Joined: 29 Aug 2006, 12:24
Location: Украина, Киев

Re: Звукоизоляция. Посоветуйте типовое бюджетное решение

Postby SergeyKLIM » 12 Mar 2017, 18:39

Андрей Смирнов wrote:На стены и перегородки из ГКЛ можно слонов навешивать, не то, что книжные полки.
Главное следовать технологии монтажа Кнауф :)


Андрей, добрый вечер/день!

На сегодня я вижу свои межкомнатные перегородки в таком виде:
w112(толщина 150 или 100), наполнение акустическая минвата Roockwool АКУСТИК БАТТС
https://shop.rockwool.ru/akustik-batts.html
+ монтаж по технологии согласно альбома knauf

если позволите еще пару вопросов
1. встречаю при чтении форума ссылки на ваши классические варианты с применением ГКЛ 12,5 мм и ГВЛ 10 мм.
В моем случае мне тоже использовать ГКЛ 12,5 мм + ГВЛ 10 мм с 2ух сторон или использовать как вы мне рекомендуете 2хГВЛ 12,5 с 2ух сторон?

2. Перегородку между санузлами вы рекомендуете так же выполнять по кнауф с гкл/гвл? или выложить кирпичем(1/2 кирпича)?

3. акустическая минвата Roockwool АКУСТИК БАТТС продается толщиной 50мм,
те ее надо класть в 2 слоя если использовать толщину профиля 100?
и ужимать(уплотнять) при использовании профиля 50?
SergeyKLIM
 
Posts: 8
Joined: 19 Feb 2017, 15:58
Location: Краснодар


Return to Звукоізоляція

Who is online

Users browsing this forum: No registered users and 3 guests