Vibrofix

Аналог Knauf Diamant в РФ

Обговорення проблем захисту від шуму, звукоізоляції приміщень, віброізоляції обладнання.
Проєктування, матеріали, вимірювання

Аналог Knauf Diamant в РФ

Postby rodgi » 01 Nov 2016, 06:19

Добрый день!
Делаю ремонт в монолитном доме, меняю внутренние перегородки в полкирпича на W112.
Возник вопрос по материалам, вате и ГКЛ/ГВЛ.
В альбоме Кнауф и тут на форуме упоминается Кнауф Диамант как лучший материал по звукоизоляции для перегородок сравнению с обычным ГКЛ. В РФ такого не нашел, но я так понял что альтернативой будет ГВЛ Кнауф Суперлист :
http://www.knauf.ru/catalog/find-produc ... tab_1068_3
Вес у него больше 15 кг на м2 (с сайта Кнауф, и в магазине лист 3 м2 больше 45 кг указан)
в то время как у диамант:
http://www.acoustic.ua/myfiles/K716_Diamant_0210.pdf
около 13.
То есть W112 на профилях Vibrofix Liner к полу и потолку, с заполнением Акустикнауф и двойной обшивкой Кнауф Суперлист 12,5 мм получим звукоизоляцию как у W112 c кнауф диамант в альбоме? (или даже может чуть лучше за счет немного даже большей массы м2)
И второй вопрос - по вате Акустикнауф, как она по характеристикам для звукоизоляции и в сравнении с AcousticWool Sonet?
из тех что в России доступны
И еще: где в РФ купить Vibrosil Tape? или подскажите аналоги, доступные в России )
rodgi
 
Posts: 12
Joined: 31 Oct 2016, 05:52
Location: Красноярск

Re: Аналог Knauf Diamant в РФ

Postby InvMan » 03 Nov 2016, 00:11

Привет, rodgi!
Схожие вопросы я задавал в своей теме (возможно, вам будет полезно) : http://soundmoderator.org/viewtopic.php?f=1&t=2003

rodgi wrote:То есть W112 на профилях Vibrofix Liner к полу и потолку, с заполнением Акустикнауф и двойной обшивкой Кнауф Суперлист 12,5 мм получим звукоизоляцию как у W112 c кнауф диамант в альбоме? (или даже может чуть лучше за счет немного даже большей массы м2)


Боюсь, что нет. Насколько я понял, эффект от применения ГВЛ примерно равен эффекту от применения обычного ГКЛ (только с ГКЛ вроде как проще работать). Я тоже интересовался по поводу Diamant в Кнауф, мне сказали, что в Россию они его не поставляют. Вообще с материалами засада, сразу понимаешь, что Россия - страна третьего мира даже в сравнении с Украиной (я просто сравнил в своё время ассортимент на knauf.ru и knauf.ua). Товарищи из российского отделения Кнауф вообще приколисты: по поводу некоторых задокументированных компонентов их облицовок и перегородок утверждают, что аналогов для них нет, но в РФ они их не поставляют вообще
rodgi wrote:И еще: где в РФ купить Vibrosil Tape? или подскажите аналоги, доступные в России )

Насколько я понял по наводке Андрея, аналогом может служить лента Armaflex AF-10MM/E-S50 (шириной 5 см) и AF-10ММ/E-S100 (шириной 10 см). Я заказывал такую, написав на info@teplosila.com. Но есть сложности: они их продают только кратно 200 (100) метрам, и я ждал около месяца, пока они привезут её из Германии. Если решитесь заказать и у вас получатся излишки, я готов купить у вас 1-2 рулона (т.к. мне может чуть не хватить) (в рулоне 10 м), напишите мне тогда на nsq2004 собака mail точка ru. Также, возможно, быстрее будет заказать более тонкую ленту толщиной 3 мм Armaflex или K-Flex и обклеить в несколько слоёв
InvMan
 
Posts: 48
Joined: 07 Apr 2014, 17:56
Location: Тула

Re: Аналог Knauf Diamant в РФ

Postby rodgi » 03 Nov 2016, 03:39

Спасибо за ссылку! почитаю, очень на мою похоже, тоже монолит, но у меня проще, сосед только один и с ним стена в коридоре, и еще в кухне стена с холлом перед лифтом. Лифт при этом даже в кухне не слышно, дверь только на лестницу хлопает слышно )

А по поводу ГВЛ кнауф суперлист все таки эффект больше будет чем от ГКЛ )
Ииз за массы кг/м2 ) у обычного ГК кнауф около 9 кг на м2, у суперлиста больше 15 )
то есть масса м2 у двухслойной облицовки ГК около 36 м2 у ГВЛ суперлиста 60 кг)
разница очевидна ) хотя тут тоже вопрос - здесь встречалась рекомендация о комбинировании ГКЛ ГВЛ, чтобы масса и резонансные частоты разные были у слоев. Так вот вопрос: что эффективнее, 2 ГВЛ с массой м2 60 кг, или ГВЛ ГКЛ с массой примерно 48 кг
Я так понимаю разница будет только на НЧ?
rodgi
 
Posts: 12
Joined: 31 Oct 2016, 05:52
Location: Красноярск

Re: Аналог Knauf Diamant в РФ

Postby rodgi » 03 Nov 2016, 04:27

На этот вопрос ответ нашел )
Комплектные системы КНАУФ Перегородки поэлементной сборки из гипсовых строительных плит (КНАУФ-листов) и
Комплектные системы КНАУФ Перегородки поэлементной сборки из гипсоволокнистых листов (КНАУФ-суперлистов)
с российского сайта Кнауф
вес метра из ГКЛ 12,5 двухслойного на 50 профил - 53 кг/м2, Rw 51 дб
вес метра из ГВЛ суперлистов 12,5 двухслойного, на 50 профиле - 65 кг/м2, Rw 57 дб )
ну и я так понимаю по НЧ вторая лучше )

По вате остается вопрос )
Роквул Акустик Баттс, АКУСТИКНАУФ или еще что из доступного в РФ ?
rodgi
 
Posts: 12
Joined: 31 Oct 2016, 05:52
Location: Красноярск

Re: Аналог Knauf Diamant в РФ

Postby rodgi » 03 Nov 2016, 06:56

https://xn--b1agyekgek.xn--p1ai/catalog ... _armatape/
Вот этот Armaflex?
по рулонам продают )
rodgi
 
Posts: 12
Joined: 31 Oct 2016, 05:52
Location: Красноярск

Re: Аналог Knauf Diamant в РФ

Postby InvMan » 03 Nov 2016, 09:07

Наверное, подойдёт. Единственное, что Андрей рекомендовал ленту толщиной 6-10 мм, а эта 3 мм. Скорее всего, повторюсь, можно выйти из положения, наклеив данную в 2-3 слоя
InvMan
 
Posts: 48
Joined: 07 Apr 2014, 17:56
Location: Тула

Re: Аналог Knauf Diamant в РФ

Postby InvMan » 03 Nov 2016, 09:28

По поводу АКУСТИКНАУФ не могу сказать. Похоже, это совсем новый продукт. Я помню, что Андрей говорил, что для перегородок и облицовок подходит вата плотностью 45-70 кг/м3. Я не смог найти данных по плотности АКУСТИКНАУФ. У Роквул плотность 45

rodgi wrote:Лифт при этом даже в кухне не слышно, дверь только на лестницу хлопает слышно )

А дверь входную Вы заменили уже на нормальную, без щелей хотя бы?
rodgi wrote:меняю внутренние перегородки в полкирпича на W112

rodgi wrote:у меня проще, сосед только один и с ним стена в коридоре

Тогда какую проблему Вы вообще решаете? Вас беспокоит передача звука между комнатами в своей квартире?
InvMan
 
Posts: 48
Joined: 07 Apr 2014, 17:56
Location: Тула

Re: Аналог Knauf Diamant в РФ

Postby rodgi » 03 Nov 2016, 09:54

Нет, меня больше всего беспокоит воздушный снизу (я на последнем этаже)
и структурный по перекрытиям, соответственно переделываю перегородки (полкирпича внутренние на звукоизолированные гкл) и плавающую стяжку )
Дверь всмысле с лифтового холла в кухне слышно (ударные шумы)

Перегородки получается отвяжу от перекрытий, и пол тоже )
Плюс от соседа звукоизолируюсь, в коридоре пусть будет не звукоизолированна стена, а в комнатах за счет перегородок уже будет тихо )
rodgi
 
Posts: 12
Joined: 31 Oct 2016, 05:52
Location: Красноярск

Re: Аналог Knauf Diamant в РФ

Postby rodgi » 03 Nov 2016, 10:07

Чуть позже выложу схему своей квартиры, есть еще вопросы , может кто еще подскажет )
rodgi
 
Posts: 12
Joined: 31 Oct 2016, 05:52
Location: Красноярск

Re: Аналог Knauf Diamant в РФ

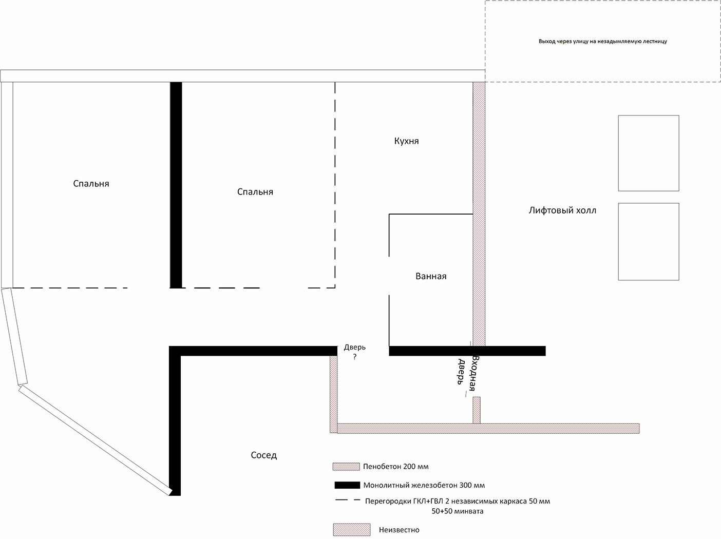
Postby rodgi » 20 Nov 2016, 14:16

Вот схема моей квартиры.
Исходные данные - дом монолитно-кирпичный, перекрытия монолитный железобетон 200 мм,
внешние стены в кирпич плюс минвата. Квартира граничит только с 1 квартирой плюс кухня и ванная граничат с лифтовым холлом. Все внутренние перегородки (кроме одной несущей стены железобетона 30 см между спальнями) были в полкирпича, уже снесли. Сверху никого нет )
Задача - обеспечить тишину в двух спальнях (точнее в спальне и детской) ну и детскую от всех остальных тоже бонусом звукоизолировать. Во всей квартире стяжку снял так как качество от строителей таково что она снималась сама ) будет плавающий пол по слою или 2 Paroc SSB1 20 мм.
Эксперименты с лифтом и лифтовым холлом показали что в кухне и ванной слышимость совсем небольшая, а вот хлопки дверью, которая ведет на улицу на незадымляемую лестницу в кухне слышны. Этот вопрос я думаю решить проще всего сделав нормально эту дверь в подьезде )
Перегородки планирую на двух независимых каркасах 50 мм плюс обшивки ГВЛ+ГКЛ
Вопрос 1. Потолок звукоизолировать не хочу, много высоты теряется. Пока вроде передачи звука по потолку не выявил, но вообще так как дом монолитный возможна ли передача звука по перекрытию от соседа или от другого соседа на этаже за лифтом? А по внешним стенам?
В комнате, где с соседом стена несущая 30 см железобетон расспостранения звука по внешней стене не заметил/услышал. И еще - забыл отразить на схеме - в углу одной из спален есть колонна несущая 40х40 см, её надо звукоизолировать?
получается в спальнях кроме потолка и колонны неизолированного ничего не остается. Потолок так как этаж последний не критично думаю, а вот как быть с колонной?

Вопрос 2. Через монолитный железобетон 30 см соседа не слышно, нормальная звукоизоляция. Насчет маленького коридора, где с соседом 200 мм пенобетон, не хочется терять место звукоизоляционными обшивками и в тоже время изолировать расспостранение звука по коридору в кухню, поэтому появился вариант - поставить хорошую дверь с порогом и т д (в проеме где написано Дверь?), заодно и дополнительно от лестничной площадки звукоизолироваться дополнительно. Такой вариант как с точки зрения звукоизоляции? ширина коридора больше метра, то есть в данном случае это можно считать воздушным промежутком, а дверь облицовкой? Слышимость соседа в этом коридорчике отличная )
Attachments
общая схема.jpg
общая схема.jpg (132.4 KiB) Viewed 8055 times
rodgi
 
Posts: 12
Joined: 31 Oct 2016, 05:52
Location: Красноярск


Return to Звукоізоляція

Who is online

Users browsing this forum: No registered users and 1 guest

cron