Vibrofix

ЗИ потолок без виброподвесов. Реально?

Обговорення проблем захисту від шуму, звукоізоляції приміщень, віброізоляції обладнання.
Проєктування, матеріали, вимірювання

ЗИ потолок без виброподвесов. Реально?

Postby alex1380 » 13 Nov 2015, 19:49

ScreenHunter_03 Nov. 13 21.46.jpg
Альбом решений "Комплектные системы КНАУФ Подвесные потолки поэлементной сборки из гипсокартонных и гипсоволокнистых листов на деревянном и металлическом каркасах для жилых, общественных и производственных зданий"
ScreenHunter_03 Nov. 13 21.46.jpg (59.96 KiB) Viewed 15350 times
Добрый день!
В альбоме технических решений Кнауф обнаружил вот такую конструкцию подвесного потолка П131 (П231), где вместо потолочных профилей используются одинарные или спаренные стоечные профили. Сам потолок закреплен по периметру на стены из ГКЛ через опорный профиль.
Исходные условия:
1. Квартира новостройка 100 кв м (без внутренних стен) в монолитно-каркасном доме, внешний периметр и межквартирные перегородки - из керамзитобетона 180 мм. Делится на 10 различных помещений, в т.ч. 3 комнаты+гостиную-кухню, 2 санузла.
2. Звукоизолируется ВСЯ квартира по принципу "комната в комнате", в т.ч.:
а) плавающий пол на всю квартиру с разделительными швами в стяжке по осям межкомнатных перегородок;
б) внешний периметр квартиры - обшивка, а ВСЕ внутренние межкомнатные стены - перегородки из ГВЛ(10)+ГКЛ(12,5) . Они все смонтированы на виброразвязанном каркасе с опорой на плавающий пол (снизу), плиту перекрытия (сверху).

Вопрос: Андрей, насколько такое решение П131 (П231) - с жестким закреплением потолка к перегородкам и облицовкам, без подвесов оправданно при ЗИ потолка в помещениях, не превышающих по габаритам ограничения в таблице?
Last edited by alex1380 on 13 Nov 2015, 20:02, edited 1 time in total.
alex1380
 
Posts: 9
Joined: 17 Aug 2015, 20:43
Location: Самара, Россия

Re: ЗИ потолок без виброподвесов. Реально?

Postby alex1380 » 13 Nov 2015, 19:59

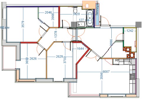
ScreenHunter_04 Nov. 13 22.01.jpg
План квартиры
ScreenHunter_04 Nov. 13 22.01.jpg (35.54 KiB) Viewed 15345 times
alex1380
 
Posts: 9
Joined: 17 Aug 2015, 20:43
Location: Самара, Россия

Re: ЗИ потолок без виброподвесов. Реально?

Postby Андрей Смирнов » 13 Nov 2015, 22:52

alex1380 wrote:Вопрос: Андрей, насколько такое решение П131 (П231) - с жестким закреплением потолка к перегородкам и облицовкам, без подвесов оправданно при ЗИ потолка в помещениях, не превышающих по габаритам ограничения в таблице?

Вполне применимо, что ещё можно сказать?... :)
Только один момент необходимо учесть - естественный прогиб металлических профилей потолка и соответственно поверхности потолка под нагрузкой от облицовки ГКЛ. Этот прогиб может составлять несколько миллиметров в зависимости от длины пролета балок.
...ничто не слишком...(с) Кармадон, "Альтист Данилов"
http://www.akustik.ua - акустическое проектное бюро
http://www.acoustic.ua - звукоизоляционные материалы
............................................
User avatar
Андрей Смирнов
Soundmoderator
 
Posts: 8791
Joined: 29 Aug 2006, 12:24
Location: Украина, Киев

Re: ЗИ потолок без виброподвесов. Реально?

Postby vasilii » 14 Nov 2015, 08:31

Может стоит добавить укрепление каркаса ПС - по причине нагрузки в верхнй части каркаса ?
Спаривание профилей спинками или вложенностью ,бруском в профиль ПС , уменьшением шага ПС до 300-400 или хотя бы применением для облицовок стен не 50 , А 100-го профиля( для перегородок подразумевается)
Все- таки П131подразумевает не оригинальное решение , предоженное топикстартером, А крепление к стенам .....
( Кстати , наверное потому и нет в материалах Кнауф данных о звукоизоляционным эффекте такого потолка - структупные пути звука с торцов и ПН бокового ) Алекс же предложил необычно - крепить к перегородками и ОБЛИЦОВКАМ , отвязанным(!) частично от стен - это , разумеется , должно дать при соответствующем относе неплохие показатели )
Как скажете , Андрей?- по необходимости укрепления каркаса .... .
2) Вопрос от меня - Андрей- при такой конструкции ( топикстартера ) эффективней по ослаблению структурных ( ударных ) звуков сверху по полам с керамической плиткой будет , чем потолок на Vibrofix SPU общей толщиной 12-13 см с тремя листами обычного 10-13.5 ГКЛ- ГВЛ .
Как прикинуть эффект от уменьшения вляюния упругих связей по ПОЛЮ полотна потолка при замене их на ТОРЦЕВЫЕ связи точечные ( пусть и уменьшенные в результате прилегания ПС через стеклохолст к потолку и уменьшения энергии поступающей к ПН - торцам ГКЛ за счёт её перераспределения ( оттока) на площади ГКЛ - облицовок ..
Заранее спасибо за ваше компетентные мнение
3) Вопрос выше - 2) практический - в кухне хотел я делать развязанный аналог П131 , но без его косячности - от боковых стен каркас отвязать Sylomer под НЕСУЩИМИ профилями ( лежащим и приклееных в П- перевернутых корытцах( с боков - прижатие стеклохолстом) , Корытца - прикрепленным на(к) мощных уголках по длинным( или коротким) стенам кухни ..
Понимаю , что было бы неравномерная нагрузка на Силомер на краю корытца - поэтому , как подвариант , рассматривал и Силомер ленточный ,лежаший не под несущим профилем потолка .А вариант с 5-см бруском или прямоугольной металлической трубой( или двутавром) , лежащей на и прикрепленными к- 5-см бруску по ленте Силомера , уложенной , на этот уголок
К двутавру или бруску -лежащими под самым потолком - или подвесы прямые или те же Vibrofix
Ну уж сильно меня напрягают ударные звуки и плитка сверху - интуитивно хочется максимально избавиться от связей с потолочной плитой .Предполагаю , что с стен ( пусть и при их связи с плитой потолка) за счёт оттока энергии удара на ИНЫЕ смежные поверхности меньше энергии придетт на каркас и ГКЛ ..( хоть пару дБ - и то добавит может такой крепеж каркаса от ударных с потолка?
vasilii
 
Posts: 448
Joined: 30 Mar 2009, 15:06

Re: ЗИ потолок без виброподвесов. Реально?

Postby alex1380 » 14 Nov 2015, 09:59

vasilii, пожалуйста поясните, почему Вы считаете, что
vasilii wrote: (использование) 100-го профиля ... для перегородок подразумевается
?
Никаких особых противопоказаний к устройству перегородок на базе одинарных профилей 50 мм в альбомах Кнауф я не увидел. В контексте данного форума речь может идти только о выборе подходящего задаче уровня ЗИ, который связан в т.ч. и с типоразмером профиля.

Кстати, если присмотреться, в альбоме показано крепление периметра потолка в т.ч. и к перегородочным конструкциям, а значит предположительно - к облицовке стен.
Last edited by alex1380 on 14 Nov 2015, 10:35, edited 1 time in total.
alex1380
 
Posts: 9
Joined: 17 Aug 2015, 20:43
Location: Самара, Россия

Re: ЗИ потолок без виброподвесов. Реально?

Postby alex1380 » 14 Nov 2015, 10:01

Андрей, спасибо за очень оперативный ответ!
На мой взгляд, для предотвращения провисания описанного выше потолка возможно локальное применение виброподвесов VibrofixSP, только по оси/центру потолка в количестве 4-6 шт, т.е. гораздо меньшем, чем нужно при "чистой" подвеске всего потолка только на виброподвесы.
Это конечно уже не соответствует "потолку без подвесов" :) , а скорее компромисс.
Я вижу здесь в качестве плюсов снижение затрат на подвесы, перевешивающее затраты на сдвоенные профили для усиления потолка. Хотя экономический эффект надо считать, т.к. там потребуется использование сдвоенных профилей 75 мм, усиление стен и использование таки подвесов для поддержки центральных частей потолка.

Тем не менее, подходящие помещения с шириной около 2 м составляют 20%, а с шириной до 3 м - еще 20% . Итого 40% от общей площади квартиры, где подвесы совсем не нужны, а это заметная разница. Оцениваю ее минимум в 60 подвесов (60*360 р = 21 600 руб).
alex1380
 
Posts: 9
Joined: 17 Aug 2015, 20:43
Location: Самара, Россия

Re: ЗИ потолок без виброподвесов. Реально?

Postby Андрей Смирнов » 14 Nov 2015, 11:16

alex1380, вы совершенно правильно рассуждаете и это здорово! :)
Если применяется система П131, то для снижения величины провисания рекомендуется применять стоечные профили не менее 100 мм шириной, а лучше использовать усиленные профили Кнауф UA с толщиной стенки 2 мм.
Для компенсации провисания в комнатах с большими пролетами профилей можно в центральной части потолка использовать 2-4 упругих крепления Vibrofix.
Если в квартире слабая косвенная передача звука по стенам, то система подвесного потолка П131 весьма эффективна для борьбы с ударным и воздушным шумом от соседа сверху.
Небольшим недостатком системы П131 является бОльшая глубина каркаса по сравнению с той, что можно получить при монтаже потолка на основе креплений Vibrofix.
...ничто не слишком...(с) Кармадон, "Альтист Данилов"
http://www.akustik.ua - акустическое проектное бюро
http://www.acoustic.ua - звукоизоляционные материалы
............................................
User avatar
Андрей Смирнов
Soundmoderator
 
Posts: 8791
Joined: 29 Aug 2006, 12:24
Location: Украина, Киев

Re: ЗИ потолок без виброподвесов. Реально?

Postby alex1380 » 14 Nov 2015, 12:10

Спасибо, Андрей, за отзыв!

Но! :o UA-профиль стоит один, как три подвеса. Нет уж, благодарю! Это полностью лишает смысла огород городить.

Вообще, наблюдаемая неадекватность цен розницы и заставляет искать разные обходные решения.

Кстати, мои рассуждения касаются и ценообразования на виброподвесы.

Но это так, крик души и оффтопик, сорри.
Last edited by alex1380 on 15 Nov 2015, 08:42, edited 2 times in total.
alex1380
 
Posts: 9
Joined: 17 Aug 2015, 20:43
Location: Самара, Россия

Re: ЗИ потолок без виброподвесов. Реально?

Postby vasilii » 14 Nov 2015, 15:23

alex1380 wrote:vasilii, пожалуйста поясните, почему Вы считаете, что
vasilii wrote: (использование) 100-го профиля ... для перегородок подразумевается
?
Никаких особых противопоказаний к устройству перегородок на базе одинарных профилей 50 мм в альбомах Кнауф я не увидел.

Кстати, если присмотреться, в альбоме показано крепление периметра потолка в т.ч. и к перегородочным конструкциям, а значит предположительно - к облицовке стен.

Исходил из несказанного мной " по умолчанию"
По предположению , что если понадобиться вешать что- то тяжёлое в будующем , А закладных заранее не заложили .Андрей ранее уже высказывался на тему , что в таком случае желательны более прочные каркасы на 100 ..
Высказывался мимоходом , но мне в память врезалось ..
А по поводу укрепления каркаса в предположении вашего нестандартного варианта - может моё предположение и избыточно ..не спорю ..
vasilii
 
Posts: 448
Joined: 30 Mar 2009, 15:06

Re: ЗИ потолок без виброподвесов. Реально?

Postby Андрей Смирнов » 14 Nov 2015, 17:02

Спасибо, Андрей, за отзыв!
Но! :o UA-профиль стоит один, как три подвеса. Нет уж, благодарю! Это полностью лишает смысла огород городить.
Вообще, наблюдаемая неадекватность цен розницы и заставляет искать разные обходные решения.

Всё стоит каких-то денег, но и эффективность каждого решения разная. Иногда требуется решить проблему любыми способами несмотря на расходы, а иногда возможны "мягкие компромиссы"... :)
...ничто не слишком...(с) Кармадон, "Альтист Данилов"
http://www.akustik.ua - акустическое проектное бюро
http://www.acoustic.ua - звукоизоляционные материалы
............................................
User avatar
Андрей Смирнов
Soundmoderator
 
Posts: 8791
Joined: 29 Aug 2006, 12:24
Location: Украина, Киев

Re: ЗИ потолок без виброподвесов. Реально?

Postby alex1380 » 14 Nov 2015, 23:47

vasilii, я понял. Насчет закладных в любом случае продумываю отдельно. За соображения спасибо!

Андрей, с доводами согласен. Спасибо за конструктивность и массу интересного!
alex1380
 
Posts: 9
Joined: 17 Aug 2015, 20:43
Location: Самара, Россия


Return to Звукоізоляція

Who is online

Users browsing this forum: No registered users and 67 guests