Vibrofix

Звукоизоляция электрощитовой, потолков и пола

Обговорення проблем захисту від шуму, звукоізоляції приміщень, віброізоляції обладнання.
Проєктування, матеріали, вимірювання

Звукоизоляция электрощитовой, потолков и пола

Postby AnastasyaMay » 30 Sep 2015, 11:56

Здравствуйте! Помогите пожалуйста не сойти с ума!
Ситуация такая: купили квартиру в кирпичном доме 2008 года постройки, до нас в квартире никто не жил, на полу была черновая цементная стяжка 8 см, залили чистовую стяжку 3-5 см, в одной комнате сделали ГК стену для кладовки, замазали потолочные русты, потолки выровняли, покрасили, высота потолков сейчас 2,68. На данный момент осталось только поклеить обои. НО, ремонт остановился, потому что мы заехали в эту квартиру жить и оказалось, что здесь слышимость ужасная, хуже, чем в панельке, в которой жили до этого.

Слышно:
1. Соседей сверху: как ходят, играют на пианино, детские игры, спокойные разговоры (нечленораздельно), смех, кашель, чихание и т.д.
2. Гудение из электрощитовой!! (квартира на первом этаже). Это самое неприятное. Слышно то громче, то тише, но ПОСТОЯННО. Электрощитовая расположена под спальней. Вызывали санпин, замеры – 36 дб, УК отказалась что-либо делать, так как это в пределах дневной нормы. К вечеру закладывает уши, а спать возможно только в берушах… Гудение разносится практически по всей квартире.
3. Шум из парикмахерской под кухней, частично спальней и шум спортзала под детской, которые в цоколе под нами. Из парикмахерской слышно слабо речь, фен, отчётливо кашель и различные ударные шумы. В детской – музыка, громкие разговоры, ударные шумы, иногда мужскую матерную речь вполне членораздельно.
Живём так месяц, но уже домой не хочется возвращаться… Денег на звукоизоляцию, конечно, совсем в обрез. Осложняет решение проблемы уже уложенный пол: подложка, ламинат; установленные двери и то, что площадь квартиры 80 кв.м.

Подскажите конструктивные варианты решения проблем со звукоизоляцией, наши предварительные:
1. От верхних соседей, чтобы хотя бы речь не было слышно: звукоизолир. подложка, ГКЛ в два слоя, обязательны ли виброподвесы? У нас в Кирове всего пара контор таким занимается, но и они доверия не внушают, они предлагают на обычные подвесы, но с резиновой прокладкой. Планируем обшить потолки только в спальне и детской, так как это уже 40 кв.м., не будет ли передаваться звук из других помещений? Какой материал лучше использовать?
2. Звукоизолировать потолок изнутри электрощитовой, её площадь примерно 5 кв.м., ГРУ висит на стене – как вариант его снять и тоже закрепить на виброподвесы. Достаточно ли будет звукоизоляции потолка?
3. Вообще никаких вариантов, кроме совершенно абсурдного: снимать пол, выдирать стяжку, делать плавающий пол…

План квартиры
план.jpg
план.jpg (58.84 KiB) Viewed 23184 times
AnastasyaMay
 
Posts: 7
Joined: 29 Sep 2015, 23:43
Location: Россия, Киров

Re: Звукоизоляция электрощитовой, потолков и пола

Postby vasilii » 30 Sep 2015, 13:10

AnastasyaMay wrote:2. Гудение из электрощитовой!! (квартира на первом этаже). Это самое неприятное. Слышно то громче, то тише, но ПОСТОЯННО. Электрощитовая расположена под спальней. Вызывали санпин, замеры – 36 дб, УК отказалась что-либо делать, так как это в пределах дневной нормы. ......
уложенный пол: подложка, ламинат; установленные двери и то, что площадь квартиры 80 кв.м.

2. Звукоизолировать потолок изнутри электрощитовой, её площадь примерно 5 кв.м., .......
3. Вообще никаких вариантов, кроме совершенно абсурдного: снимать пол, выдирать стяжку, делать плавающий пол…

]

1) и 2) -Независимо звукоизоляционных мер -
Если вы зайдете на уже 8 лет существующий форум -"Клуб защитников тишины" - то увидите, что на случай шумов снизу от юриков и прочих ИП (и ТСЖ и УК ) применяется типовой ход - заявление о повышенных уровней шумов пишется про СТРОГО определенный выгодный для вас промежуток -.... Пишите в РЕГИСТРИРУЕМОМ(!) заявлении в Роспотребнадзор ваш региональный и в РЕГИСТРИРУЕМОМ заявлении в жиличную инспекцию :
"Прошу принять предусмотренные законом меры по устранению источников повышенного уровня шума в моей квартире в период с 24.00 по 06.00"!!!
Несмотря на мифы специалисты ФБУ при Роспотребнадзорах выезжают и ночами..
Особенно если при их нежелании вы СТАНДАРТНО отнесете заявление в прокуратуру о отказе регистрировать ваше заявление либо делать замеры ночью..
( Как вам известно ночные нормативы шумов в России - 30 дБ(упрощенно) .В отличие от дневных40дБ (45- по допустимому превышению - по изменению СанПиН в 2000-х )
Это -стандартный и успешно применяемый ход, когда вы пишете заявление ТОЛЬКО о ночных шумах ..Тогда по результатам выезда спецов ФБУ «Центр гигиены и эпидемиологии " (подразделение измерительное, что ранее было СЭС) Роспотребнадзором выносится предписание УК об устранении( ну и штраф -- так что намекните УК - зачем им выплачивать штраф по КоАП РФ не менее 10 тыс если эти 10 тыс после предписания Роспотребнадзора все равно ЕЩЕ(!) раз(уже в ДВА раза больше в сумме) придется тратить на виброизоляцию щита и звукопоглощающие конструкции на поверхностЯХ электрощитовой ....
Тем более если это решение Роспотребнадзора будет -то вы сможете участвовать в выборе варианта - если намекнете, что готовы оплатить ЧАСТЬ...(И если это желаете?) Просто строители то не знают нередко механизма виброи звукоизоляции ...А вы на данном форуме инфу почерпнете о том, что вообще хоть какой-то результат принесет..
Зачем вам тратить деньги, если это обязанность УК и ВСЕХ( опосредованно) собственников( через взносы -оплату жилья )
По действующему законодательству и неоднократным решениям судов УК(ТСЖ) по №170 от 2003
( И из Постановление Госстроя № 170 от 27.09.2003г".
"4.3. Перекрытия
4.3.1. Организация по обслуживанию жилищного фонда должна обеспечивать:
устойчивость, теплоустойчивость, отсутствие прогибов и колебаний, трещин;
исправное состояние перекрытий;
звукоизоляцию;.........
" обязаны принимать меры по устранению....... , неважно -заложено это в смете или договоре или нет(потом инициирует УК общее собрание на котором решает вопрос о деньгах ..)
3) Вы несомненно "прошли бреднем" :) этот отличный форум и уже знаете, что в ряде случаев ламинат или паркет по тонкой подложке увеличивает уровни слышимости в комнате ( так называемая "легкая(легкоизлучающая) пластина" в составе системы с высокой резонансной частотой.. " Тем более, если вы применили "твердую" (акустически) пробковую или полистирол(пенопластовую) прокладку..
Впрочем, об этом эффекте , который люди своими руками закладывают в квартирах уже не раз на профильных форумах по звукоизоляции написано..
.. Но это ВАМ решать уже ПОСЛЕ предписания Роспотребнадзора и обследования куска пола с этой резонансной системой (кусочек один ламината снимете ) Методика обследования ухом вам несомненно известна -наиболее подробно этот простой способ описал С.Шумаков - выдержки оттуда - в приложении к вашей ситуации обследование при двух положениях уха происходит на участке "с ламинатом " и "без ламината." .
....... К каждой стене, полу, потолку прикладываете ухо, а потом чуть-чуть отодвигаете. Запоминаете уровень шума или фиксируете значками на карте
3. Если звук от стены остается почти такого же уровня, значит эта стена излучает сильно и ее обязательно нужно изолировать, если шум снижается очень сильно, т. е. шум слышно, но определить точно его направление нельзя, значит эта стена не нуждается в дополнительной звукоизоляции.
vasilii
 
Posts: 448
Joined: 30 Mar 2009, 15:06

Re: Звукоизоляция электрощитовой, потолков и пола

Postby Андрей Смирнов » 30 Sep 2015, 14:37

AnastasyaMay wrote:Здравствуйте! Помогите пожалуйста не сойти с ума!
Ситуация такая: купили квартиру в кирпичном доме 2008 года постройки, до нас в квартире никто не жил, на полу была черновая цементная стяжка 8 см, залили чистовую стяжку 3-5 см, в одной комнате сделали ГК стену для кладовки, замазали потолочные русты, потолки выровняли, покрасили, высота потолков сейчас 2,68. На данный момент осталось только поклеить обои. НО, ремонт остановился, потому что мы заехали в эту квартиру жить и оказалось, что здесь слышимость ужасная, хуже, чем в панельке, в которой жили до этого.
Жаль, что вы оказались в такой печальной ситуации, но она не единична и проблемы достаточно типовые. К сожалению решение проблем связано с расходами, как финансовыми, так и временными и самое печальное это морально-этические потери :(
Слышно:
1. Соседей сверху: как ходят, играют на пианино, детские игры, спокойные разговоры (нечленораздельно), смех, кашель, чихание и т.д.
Чтобы наметить пути решения, надо понять, как звук проникает из вышерасположенной квартиры в вашу. Для этого надо знать толщину, материал и состав перекрытий, стен и перегородок. Звук могут переизлучать не только перекрытия, но и сопряженные с ними стены, например из легкого пенобетона или пустотелого кирпича, а также батареи отопления, связанные вертикальными стояками (так называемая косвенная передача шума). Это легко проверить, прислонив ухо к стене. Если услышите звуки, источник которых находится сверху или снизу, это означает, что изолировать придется не только перекрытие потолка и пола, но и стены. Информация печальная, но объективная.
2. Гудение из электрощитовой!! (квартира на первом этаже). Это самое неприятное. Слышно то громче, то тише, но ПОСТОЯННО. Электрощитовая расположена под спальней. Вызывали санпин, замеры – 36 дб, УК отказалась что-либо делать, так как это в пределах дневной нормы. К вечеру закладывает уши, а спать возможно только в берушах… Гудение разносится практически по всей квартире.
Это косяк строителей и ответственность владельца здания или управляющей компании. Ночные нормы допустимого уровня шума (23.00-7.00) для жилья категории "Б" и "В" согласно СНиП 23-03-2003 составляют 30 дБА. ВАЖНО! При тональном характере шума, к которому относится звук от щитовой, допустимые уровни следует принимать на 5 дБА ниже значений, указанных в СНиПе! Поэтому в вашей квартире уровень шума от щитовой не должен превышать значения 35 дБА днем и 25 дБА ночью. Характер шума оборудования щитовой это, как правило, не воздушный шум, а структурный, вызванный вибрацией оборудования, кабелей и самого щита ВРУ. Поэтому основной метод борьбы с шумом в данном случае это виброизоляция щита ВРУ и виброразвязка жестких кабельных элементов от строительных конструкций здания.
3. Шум из парикмахерской под кухней, частично спальней и шум спортзала под детской, которые в цоколе под нами. Из парикмахерской слышно слабо речь, фен, отчётливо кашель и различные ударные шумы. В детской – музыка, громкие разговоры, ударные шумы, иногда мужскую матерную речь вполне членораздельно.
В данном случае также необходимо понимать каналы распространения звука из указанных помещений в вашу квартиру. Но есть и еще один нюанс. Согласно требованиям СНиП 23-03-2003 звукоизоляция перекрытий между помещениями квартирыи расположенными под ними ресторанами, кафе, магазинами, спортивными залами для домов категории "Б" и "В" должны составлять не менее 57-60 дБ, когда как для перекрытий между квартирами этот показатель всего 50-52 дБ. В вашем случае наверняка перекрытия одинаковы и для вышерасположенной квартиры и для нижерасположенных нежилых помещений, что является нарушением действующего законодательства.
Живём так месяц, но уже домой не хочется возвращаться… Денег на звукоизоляцию, конечно, совсем в обрез. Осложняет решение проблемы уже уложенный пол: подложка, ламинат; установленные двери и то, что площадь квартиры 80 кв.м.

...ничто не слишком...(с) Кармадон, "Альтист Данилов"
http://www.akustik.ua - акустическое проектное бюро
http://www.acoustic.ua - звукоизоляционные материалы
............................................
User avatar
Андрей Смирнов
Soundmoderator
 
Posts: 8791
Joined: 29 Aug 2006, 12:24
Location: Украина, Киев

Re: Звукоизоляция электрощитовой, потолков и пола

Postby AnastasyaMay » 30 Sep 2015, 14:38

Несмотря на мифы специалисты ФБУ при Роспотребнадзорах выезжают и ночами..


1. По шуму от соседей сэс сказали, что это не нормируется. Воздушный шум не сильно громкий, но хочется устранить ощущение присутствия посторонних в своей квартире, поэтому вопрос по звукоизоляции потолков актуален. Каркас на подвесах, слой минваты (какой?) и два слоя ГКЛ по 12,5 мм будет правильно?
2. Дело в том, что заявление на замеры пишется заранее на определённый день/ночь, но мы не можем знать, в какую ночь гудение будет сильнее, оно очень нестабильное по уровню шума. Сейчас, например, его слышно как гудение холодильника, т.е. явно ниже допустимых значений, а к вечеру может подняться. Две недели назад оно началось в пятницу вечером и гудело все выходные , как будто мы живём внутри трансформаторной. В жилищную инспекцию обращались, они нас отправили в СЭС. В СЭС пытались договориться о срочном выезде, чтобы специалиста самостоятельно забрать из его дома и доставить обратно, но не вышло,... так как для этого им как минимум нужно забрать из офиса измерительные приборы: "... мы же не можем каждый день возить приборы домой, у вас может только через месяц уровень шума будет высокий..."
В СЭС же нам сказали, что допустимый уровень ночной 35дб, то есть наше превышение (если БЫ даже замеры были ночью) минимально, присутствующему представителю УК сказали об этом и о том, что УК для решения вопроса достаточно будет снять ГРУ со стены, у нас при этом гудение останется, но будет в пределах "нормы", просто концентрация звука в определённой точке снизится.
Но спасибо, vasilii, за такой конструктивный вариант решения, будем дальше бороться, пока есть терпение.
3. Да, бреднем форум прошла :) , читаю, изучаю в свободную минуту, многое пока не понимаю, а ремонт надо заканчивать
ламинат или паркет по тонкой подложке увеличивает уровни слышимости в комнате ( так называемая "легкая(легкоизлучающая) пластина" в составе системы с высокой резонансной частотой.. " Тем более, если вы применили "твердую" (акустически) пробковую или полистирол(пенопластовую) прокладку..
Впрочем, об этом эффекте , который люди своими руками закладывают в квартирах уже не раз на профильных форумах по звукоизоляции написано..

Простите мою невнимательность, где можно почитать об этом? У нас в детской как раз пробковая подложка, в других комнатах Tarkoflex и Tuplex. На что её менять?
При "обследовании ухом" звук от стены чуть меньше , чем от пола, так во всех комнатах, изолировать столько стен для нас непосильная задача :cry: Ремонтники предлагают обклеить под обои стены пробкой технической
AnastasyaMay
 
Posts: 7
Joined: 29 Sep 2015, 23:43
Location: Россия, Киров

Re: Звукоизоляция электрощитовой, потолков и пола

Postby Андрей Смирнов » 30 Sep 2015, 16:01

AnastasyaMay wrote:1. По шуму от соседей сэс сказали, что это не нормируется.
В СЭС вам дали некорректную информацию. Нормируется индекс звукоизоляции воздушного шума Rw межквартирных стен.
Воздушный шум не сильно громкий, но хочется устранить ощущение присутствия посторонних в своей квартире, поэтому вопрос по звукоизоляции потолков актуален. Каркас на подвесах, слой минваты (какой?) и два слоя ГКЛ по 12,5 мм будет правильно?
Прочитайте мои ответы вам
2. Дело в том, что заявление на замеры пишется заранее на определённый день/ночь, но мы не можем знать, в какую ночь гудение будет сильнее, оно очень нестабильное по уровню шума. Сейчас, например, его слышно как гудение холодильника, т.е. явно ниже допустимых значений, а к вечеру может подняться. Две недели назад оно началось в пятницу вечером и гудело все выходные , как будто мы живём внутри трансформаторной. В жилищную инспекцию обращались, они нас отправили в СЭС. В СЭС пытались договориться о срочном выезде, чтобы специалиста самостоятельно забрать из его дома и доставить обратно, но не вышло,... так как для этого им как минимум нужно забрать из офиса измерительные приборы: "... мы же не можем каждый день возить приборы домой, у вас может только через месяц уровень шума будет высокий..."
В СЭС же нам сказали, что допустимый уровень ночной 35дб, то есть наше превышение (если БЫ даже замеры были ночью) минимально,
Прочитайте мои ответы вам в части нормативных уровней шума для ночного времени
...ничто не слишком...(с) Кармадон, "Альтист Данилов"
http://www.akustik.ua - акустическое проектное бюро
http://www.acoustic.ua - звукоизоляционные материалы
............................................
User avatar
Андрей Смирнов
Soundmoderator
 
Posts: 8791
Joined: 29 Aug 2006, 12:24
Location: Украина, Киев

Re: Звукоизоляция электрощитовой, потолков и пола

Postby vasilii » 30 Sep 2015, 16:04

1) Несомненно , говоря про 35 дБ ночью вас обманывают - Андрей вам это прямо показал
ПИСЬМЕННОЕ ЗАЯВЛЕНИЕ , которое по Ф.З " О обращениях граждан" у вас обязаны принять ..
И ПИСЬМЕННЫЙ ОТВЕТ - по ночным(!( шумам и их нормированию .
К сожалению пока вы не выложили скан ответа Роспотребнадзора трудно далее размышлять
2) У вас соседи - юрики .Но вот характер шума конечно по печально известным МУК2007 ( пункт 1.19 .- чтобы от вас отпихнуться .)
Но видите ли по тем МУК , что вам якобы обосновали - НЕ РАСПРОСТРАНЯЕТСЯ это якобы" не нормирование" на деятельность юридических лиц ( вам немного запутали - нормируется ВСЕ и от ВСЕХ - только по МУК 2007 эта полезная контора спихнула контроль( ИЗМЕРЕНИЯ) за целым рядом шумов - скачайте МУК главсанврача от 2007 года и посмотрите пункт 1.19 ..)
НО к шумам от НЕграждан эти ограничения не относятся .
Проще - РЕГИСТРИРУЙТЕ в канцелярии Роспотребнадзора заявление по шумам от юриков- общественных заведений - спортзал и парикмахерская и вставьте туда строчку , что вам Андрей привёл - о ПРЕДПОЛАГАЕМОЙ недостаточной. НЕСООТВЕТСТВУЮЩЕЙ обязательным СНиП звукоизоляции перекрытия-
Обязательно вставьте с ссылкой на нормативные акты - Андрей вам привёл их .
В ряде случаев после предписаний Роспотребнадзора хоть подвесные потолки с ватой или плитками звукопоглощающим делают. Это конечно к звукоизоляции никаким боком не относится , но энергию части спектра снижает там , А соответственно и слегка у вас.
Кстати - по этому вопросу - Зарегистрируйтесь на форуме " Клуб защитников тишины" - по этим аспектам( не звукоизоляционным) там помогают уже многие годы форумчане и материалов масса и вам подскажут .
Ещё раз подчеркну - из ваших слов вытекает ,что вы использовали милый сердцу чиновников и юриков стиль " УСТНЫХ бесед и заверений" Поскольку вы не привели скан ответа или фото Роспотребрадзора по так называемом и ночном уровне в 35 дБ и " якобы ненормировании шумов от ОБЩЕСТВЕННЫХ завелений - спортзала и парикмахерской ....Но это стиль общения с государством никогда не был эффективным....
2) По ламинату-
Когда вы померяете по" методу уха " уровни ( степень) переизлучения- источников ОДИНАКОВОЙ силы на участке пола "С ЛАМИНАТОМ."
И рядом(!) расположенном" БЕЗ ЛАМИНАТА ( даже сойдет и анализ участка с неснятой подложкой) - тогда и САМИ решите , есть ли разница . .Переизлучает ли резонансная система " ламинат - подложка с большим динамическим модулем - плита( стяжка) те или иные частоты сильней , чем просто стяжка( плита)
ТОГДА сами и решайте ( самый простой путь вам известно - линолеум на упругой основе толщины её менее 4,5 мм .( Или наоборот - если как на форуме "Клуб защитников тишины" хотите самозащищаться специфически (!)от не делающих исполнять закон юриков( ИП) - максимально твёрдый ( коммерческий для общественных зданий)
То , что я выше написал - этот эффект переизлучения- может у вас проявляться , А может нет - зависит от интенсивности и характера звуковой энергии , примыкания крайних дощечекк через плинтус жесткий к стенам и от ещё кучи факторов )
И написал с целью , если это есть -то это незначительное влияние , но в сумме с иными - заметное - вам решать - стоит ли устранять.
Тем более , что вы сами с временем придете к выводу ( ПОСЛЕ предписания Роспотребнадзора нижним и проведения ими мероприятий )
- что не обойтись без одной из конструкций " плавающей стяжки" с добавочным эффектом и по воздушным шумам или пола по лагам по Sylomer.
Вот и ответ на ваш вопрос - на ТАКОЙ основе( выше) эффект несильно будет проявляться.
Но пока вы не провели работу с Роспотребнадзором и не получили эффект в виде звукоизоляционных или хотя бы звукопоглощаюших конструкций у юриков внизу- вам не стоит этим загружаться. Поскольку если этот эффект СЕЙЧАС есть , то он увеличит уровни звуков и на экране шумомера Роспотребнадзора. Что вам пока на руку .
vasilii
 
Posts: 448
Joined: 30 Mar 2009, 15:06

Re: Звукоизоляция электрощитовой, потолков и пола

Postby AnastasyaMay » 30 Sep 2015, 22:41

Андрей Смирнов wrote:
AnastasyaMay wrote:
Слышно:
1. Соседей сверху: как ходят, играют на пианино, детские игры, спокойные разговоры (нечленораздельно), смех, кашель, чихание и т.д.
Чтобы наметить пути решения, надо понять, как звук проникает из вышерасположенной квартиры в вашу. Для этого надо знать толщину, материал и состав перекрытий, стен и перегородок. Звук могут переизлучать не только перекрытия, но и сопряженные с ними стены, например из легкого пенобетона или пустотелого кирпича, а также батареи отопления, связанные вертикальными стояками (так называемая косвенная передача шума). Это легко проверить, прислонив ухо к стене.



Информация по дому:
Фундаменты – монолитные, сборные железобетонные
Стены подвала – из бетонных блоков
Отмостка – бетонная
Стены наружные – из силикатного кирпича трехслойные с утеплителем
Внутренние стены – из силикатного кирпича
Внутриквартирные перегородки – из гипсовых пазогребневых плит
Перекрытия – железобетонные многопустотные
Крыша – кровля из рулонных материалов с внутренним водостоком
Окна, балконные двери – ПВХ-профил

Если услышите звуки, источник которых находится сверху или снизу, это означает, что изолировать придется не только перекрытие потолка и пола, но и стены. Информация печальная, но объективная.


Это означает, что сделав звукоизоляцию потолков уровень воздушного шума мы не снизим совсем? :?

По поводу допустимого уровня шума поняла, буду изучать вопрос и соответствующие документы, Спасибо!

vasilii wrote: 1) Несомненно , говоря про 35 дБ ночью вас обманывают - Андрей вам это прямо показал
ПИСЬМЕННОЕ ЗАЯВЛЕНИЕ , которое по Ф.З " О обращениях граждан" у вас обязаны принять ..
И ПИСЬМЕННЫЙ ОТВЕТ - по ночным(!( шумам и их нормированию .
К сожалению пока вы не выложили скан ответа Роспотребнадзора трудно далее размышлять


Да я и сама пока его не получила, жду, пока пришлют. Про 36 дб и нормативы мне сказали, пока измеряли. завтра буду выяснять
AnastasyaMay
 
Posts: 7
Joined: 29 Sep 2015, 23:43
Location: Россия, Киров

Re: Звукоизоляция электрощитовой, потолков и пола

Postby vasilii » 01 Oct 2015, 05:13

В смысле - про 35 дБ ночью , допустимые якобы по нормам ..
Ещё раз порекомендую зарегистрироваться или хотя бы в строке ПОИСК на сайте- форуме " Клуб защитников тишины "
Там темы борьбы и тактики с кафе , пекарнями на первых этажах за многие годы не раз появлялась .И набрав в строке ПОИСК слова " СН и СанПиН " сразу вылезет немало тем , где вы найдёте в части из то , что вам надо ..И с комментариями ..
А СН и СанПиН в части уровней шумов и вибраций -вообще в открытом бесплатном доступе .Но более эффективный путь - выше

Как в открытом доступе ( да даже с сайта уже не существующего Минрегиона - его заказчика) СП 51 "Защита от шума" скачать сможет ....., с июля 2015 регулирующий( в частичной сумме с СНиП 23-03-2003) требования к степени звукоизоляции квартир от ниже расположенных общественных заведений.
vasilii
 
Posts: 448
Joined: 30 Mar 2009, 15:06

Re: Звукоизоляция электрощитовой, потолков и пола

Postby Андрей Смирнов » 01 Oct 2015, 10:31

AnastasyaMay wrote:Информация по дому:
Фундаменты – монолитные, сборные железобетонные
Стены подвала – из бетонных блоков
Отмостка – бетонная
Стены наружные – из силикатного кирпича трехслойные с утеплителем
Внутренние стены – из силикатного кирпича
Внутриквартирные перегородки – из гипсовых пазогребневых плит
Перекрытия – железобетонные многопустотные
Крыша – кровля из рулонных материалов с внутренним водостоком
Окна, балконные двери – ПВХ-профил

Если услышите звуки, источник которых находится сверху или снизу, это означает, что изолировать придется не только перекрытие потолка и пола, но и стены. Информация печальная, но объективная.


Это означает, что сделав звукоизоляцию потолков уровень воздушного шума мы не снизим совсем? :?
Как я и предполагал, в вашей квартире очень высокий уровень косвенной передачи шума из помещений сверху и снизу. Одним из основных каналов распространения звука являются перегородки из силикатного кирпича и особенно из гипсовых пазогребневых блоков. Наиболее эффективно заменить внутренние перегородки каркасными гипсокартонными, которые переизлучают гораздо меньше звука. Перекрытия из стандартных многопустотных плит толщиной 220 мм обладают индексом звукоизоляции 50 дБ (с учетом стяжки) при норме 52 дБ. При таком уровне звукоизоляции должны быть слышны только громкие звуки. Если вы слышите и обычные бытовые шумы, то надо искать каналы их проникновения в квартиру. Обратите внимание на батареи отпления, по ним звук распространяетеся очень хорошо.
...ничто не слишком...(с) Кармадон, "Альтист Данилов"
http://www.akustik.ua - акустическое проектное бюро
http://www.acoustic.ua - звукоизоляционные материалы
............................................
User avatar
Андрей Смирнов
Soundmoderator
 
Posts: 8791
Joined: 29 Aug 2006, 12:24
Location: Украина, Киев

Re: Звукоизоляция электрощитовой, потолков и пола

Postby AnastasyaMay » 05 Oct 2015, 12:12

Уважаемые Андрей и Василий! Спасибо вам за советы!! По юрикам всё понятно, по щитовой тоже

Теперь по изоляции от соседей

Андрей Смирнов wrote:
Как я и предполагал, в вашей квартире очень высокий уровень косвенной передачи шума из помещений сверху и снизу. Одним из основных каналов распространения звука являются перегородки из силикатного кирпича и особенно из гипсовых пазогребневых блоков. Наиболее эффективно заменить внутренние перегородки каркасными гипсокартонными, которые переизлучают гораздо меньше звука. Перекрытия из стандартных многопустотных плит толщиной 220 мм обладают индексом звукоизоляции 50 дБ (с учетом стяжки) при норме 52 дБ. При таком уровне звукоизоляции должны быть слышны только громкие звуки. Если вы слышите и обычные бытовые шумы, то надо искать каналы их проникновения в квартиру. Обратите внимание на батареи отпления, по ним звук распространяетеся очень хорошо.


Вы бесконечно правы((((! Звуки идут по стенам - удостоверились(. Через них слышно даже то, что не слышно "в воздухе". Про пазогребневые плиты межкомнатных перегородок кажется, что ошибка в тех.листе, по виду это простой силикатный кирпич...
Делать стены из гкл вместо существующих мы опасаемся: это же будет перепланировка, а так как мы не единств. собственники квартиры - делать перепланировку мы не в праве. Может быть, можно отделить стену от перекрытия сверху, проштробить насквозь щель по периметру и заложить звукоизол. материалом? тогда звук с верхнего перекрытия на стену не будет передаваться..? вот как на схеме

Снимок.JPG
Снимок.JPG (48.92 KiB) Viewed 23122 times
AnastasyaMay
 
Posts: 7
Joined: 29 Sep 2015, 23:43
Location: Россия, Киров

Re: Звукоизоляция электрощитовой, потолков и пола

Postby Андрей Смирнов » 05 Oct 2015, 13:06

Не думаю, что замену тяжелых перегородок легкими может быть воспринята как перепланировка, т.к. в конфигурацию и расположение перегородок вы не вмешиваетесь.
Узел, приведенный на вашей схеме реализовать можно. Он не будет обеспечивать полную развязку от перекрытия потолка, т.к. останутся жесткие связи по металлическим закладным элементам (МЭ-1), но определенное улучшение будет.
...ничто не слишком...(с) Кармадон, "Альтист Данилов"
http://www.akustik.ua - акустическое проектное бюро
http://www.acoustic.ua - звукоизоляционные материалы
............................................
User avatar
Андрей Смирнов
Soundmoderator
 
Posts: 8791
Joined: 29 Aug 2006, 12:24
Location: Украина, Киев

Re: Звукоизоляция электрощитовой, потолков и пола

Postby AnastasyaMay » 05 Oct 2015, 16:20

1. А что эффективнее по звукоизоляционным характеристикам: обшивать имеющиеся стены или сносить и строить свои из гкл?
2. Если мы поставим свои стены, есть вероятность того, что звукоизолировать потолок уже не нужно будет?
3. Для возведения гкл стены нужны будут Vibrofix CD для крепления на стену и Vibrofix Protector к потолку и обычный гкл кнауф? а как быть с профилями, можно ли обычные использовать или нужны Vibrofix Liner?
Пытаюсь посчитать стоимость варианта со сносом стен и без....

4. Поможет ли снизить уровень шума снизу замена подложки на Акуфлекс?
AnastasyaMay
 
Posts: 7
Joined: 29 Sep 2015, 23:43
Location: Россия, Киров

Re: Звукоизоляция электрощитовой, потолков и пола

Postby Андрей Смирнов » 05 Oct 2015, 18:16

AnastasyaMay wrote:1. А что эффективнее по звукоизоляционным характеристикам: обшивать имеющиеся стены или сносить и строить свои из гкл?
Если заменить существующие внутренние перегородки каркасными, то вы практически не потеряете в площади помещений. Если обшивать перегородки, то потери будут существенными.
2. Если мы поставим свои стены, есть вероятность того, что звукоизолировать потолок уже не нужно будет?
Изолировать потолок надо в любом случае. Просто если не изолировать стены, то возможно и звукоизоляция потолка может стать бессмысленной
3. Для возведения гкл стены нужны будут Vibrofix CD для крепления на стену и Vibrofix Protector к потолку и обычный гкл кнауф? а как быть с профилями, можно ли обычные использовать или нужны Vibrofix Liner?
Пытаюсь посчитать стоимость варианта со сносом стен и без....
Для возведения ГКЛ перегородок никакие звукоизоляционные крепления не нужны. Они требуются только при устройстве звукоизоляционных облицовок межквартирных стен.

4. Поможет ли снизить уровень шума снизу замена подложки на Акуфлекс?
Абсолютно нет! Подложка под ламинатом никак не влияет увеличение общего уровня изоляции воздушного шума. А в некоторых случаях может даже снизить звукоизоляцию. Улучшение может быть только по уровню ударного шума, т.е. ваши шаги могут быть менее слышны вашим соседям снизу.
...ничто не слишком...(с) Кармадон, "Альтист Данилов"
http://www.akustik.ua - акустическое проектное бюро
http://www.acoustic.ua - звукоизоляционные материалы
............................................
User avatar
Андрей Смирнов
Soundmoderator
 
Posts: 8791
Joined: 29 Aug 2006, 12:24
Location: Украина, Киев

Re: Звукоизоляция электрощитовой, потолков и пола

Postby BBR » 05 Oct 2015, 19:04

К п.1 я быеще добавил, что каркасная перегородка ползволяет добиться значительно больших уровней ЗИ между комнатами чем обшивка существующей перегородки с одной из сторон. А если обшивать имеющуюся перегородку с обиех сторон, то тогда потери места станут просто неадекватными :D

Поэтому если нет практических сдерживающих факторов (бюджет, нежелание ломать часть ранее сделанного ремонта, ограничения по продолжительности ремонта и т.п.) то поводов сохранять существующие перегородки скорее нет. Теоретический повод есть: существующая перегородка из толстого-толстого железобетона, полнотелого кирпича и иже. Такие штуки лучше гасят низкие частоты чем целиком каркасная конструкция. Но на практике в современных домах такие перегородки не встречаются и, следовательно, рациональных причин беречь имеющиеся перегородки - нет.

п.3, Андрей, это ведь в случае если сначала навешивается потолок, а стены примыкают снизу? Это рекомендуемый кейс, но не единственный. У меня вот, в силу разных причин, сначала будут ставиться перегородки, а потом между ними - потолок. И примыкания перегородок к потолку надо развязывать. Да, это менее типичный стучай. Но у меня иначе все гораздо сложней...
User avatar
BBR
 
Posts: 122
Joined: 16 Sep 2015, 19:29
Location: г.Пермь

Re: Звукоизоляция электрощитовой, потолков и пола

Postby Андрей Смирнов » 06 Oct 2015, 10:01

BBR wrote:К п.1 я быеще добавил, что каркасная перегородка ползволяет добиться значительно больших уровней ЗИ между комнатами чем обшивка существующей перегородки с одной из сторон.
Правильнее сказать так: каркасная ГКЛ перегородка обеспечивает более высокие уровни ЗИ на средних частотах (в речевом диапазоне) по сравнению с кирпичной перегородкой аналогичной толщины. На низких частотах более эффективна обшивка существующей массивной перегородки звукоизоляционной ГКЛ облицовкой.

Поэтому если нет практических сдерживающих факторов (бюджет, нежелание ломать часть ранее сделанного ремонта, ограничения по продолжительности ремонта и т.п.) то поводов сохранять существующие перегородки скорее нет. Теоретический повод есть: существующая перегородка из толстого-толстого железобетона, полнотелого кирпича и иже. Такие штуки лучше гасят низкие частоты чем целиком каркасная конструкция. Но на практике в современных домах такие перегородки не встречаются и, следовательно, рациональных причин беречь имеющиеся перегородки - нет.

п.3, Андрей, это ведь в случае если сначала навешивается потолок, а стены примыкают снизу? Это рекомендуемый кейс, но не единственный. У меня вот, в силу разных причин, сначала будут ставиться перегородки, а потом между ними - потолок. И примыкания перегородок к потолку надо развязывать. Да, это менее типичный стучай. Но у меня иначе все гораздо сложней...
Существует несколько различных вариантов примыкания облицовок стен (перегородок) к подвесному ГКЛ потолку. Целесообразность применения каждого варианта определяется индивидуальными акустическими условиями на объекте и теми целями, которые необходимо достичь.
...ничто не слишком...(с) Кармадон, "Альтист Данилов"
http://www.akustik.ua - акустическое проектное бюро
http://www.acoustic.ua - звукоизоляционные материалы
............................................
User avatar
Андрей Смирнов
Soundmoderator
 
Posts: 8791
Joined: 29 Aug 2006, 12:24
Location: Украина, Киев

Re: Звукоизоляция электрощитовой, потолков и пола

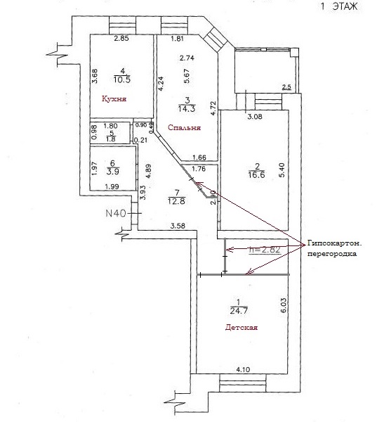
Postby AnastasyaMay » 09 Oct 2015, 13:49

Можно ещё несколько вопросов? :oops:

Андрей Смирнов wrote:
BBR wrote:К п.1 я быеще добавил, что каркасная перегородка ползволяет добиться значительно больших уровней ЗИ между комнатами чем обшивка существующей перегородки с одной из сторон.
Правильнее сказать так: каркасная ГКЛ перегородка обеспечивает более высокие уровни ЗИ на средних частотах (в речевом диапазоне) по сравнению с кирпичной перегородкой аналогичной толщины. На низких частотах более эффективна обшивка существующей массивной перегородки звукоизоляционной ГКЛ облицовкой.


Меня не столько интересует звукоизоляция между комнатами, сколько звукоизоляция сверху и снизу, то есть чтобы звук с перекрытий не передавался на стены! Поэтому я и спрашиваю про виброкрепления. Если я сделаю гкл стену на обычных жёстких креплениях - чем это будет лучше ныне стоящих стен? Вы сказали про приведённый мной в пример узел, что останутся жесткие связи по металлическим закладным элементам, разве это не аналогично?


Андрей Смирнов wrote:
BBR wrote:п.3, Андрей, это ведь в случае если сначала навешивается потолок, а стены примыкают снизу? Это рекомендуемый кейс, но не единственный. У меня вот, в силу разных причин, сначала будут ставиться перегородки, а потом между ними - потолок. И примыкания перегородок к потолку надо развязывать. Да, это менее типичный стучай. Но у меня иначе все гораздо сложней...
Существует несколько различных вариантов примыкания облицовок стен (перегородок) к подвесному ГКЛ потолку. Целесообразность применения каждого варианта определяется индивидуальными акустическими условиями на объекте и теми целями, которые необходимо достичь.


То есть очерёдность выполнения такая: сначала потолок, потом обшивка стены?
Мы решили привести в порядок пока хотя бы одну комнату, которая не смежная, чтобы не жить на коробках. Исходные данные такие:
две стены капитальные, одна между нами и соседями нет. Но звуки от соседей мы через неё не слышим, только с перекрытий, сверху и снизу. Ещё одна стена из ГКЛ. На рисунке всё подписала. Комната обведена красным.

план.jpg
план.jpg (76.57 KiB) Viewed 23041 times


С чего правильнее начать и с помощью каких материалов?

Организация, которая у нас в Кирове этим занимается, берёз за работу 700 рублей за кв.м. площади, насколько это оправдано?


ПС: после прихода людей из лаборатории, гудение из щитовой стало почти не слышно, мы даже отчёт в УК не предоставили, видимо, их задело, и они заменили пускатель. По вопросу фитнес-зала: составили письмо в прокуратуру. С парикмахерской будем разбираться путём замера звукоизоляционной способности перекрытий, поэтому стены в этой части квартиры пока трогать не будем. Спасибо всем за советы!)
AnastasyaMay
 
Posts: 7
Joined: 29 Sep 2015, 23:43
Location: Россия, Киров

Re: Звукоизоляция электрощитовой, потолков и пола

Postby Андрей Смирнов » 09 Oct 2015, 14:33

Перегородки из силикатного кирпича, пенобетона и из гипсовых пазогребневых блоков принципиально отличаются от перегородок ГКЛ с точки зрения строительной акустики.
Дело в том, что перегородка представляет собой пластину конечных размеров и толщины.
У каждой пластины есть собственная критическая частота, т.н. частота волнового совпадения (когда проекция падающей на перегородку звуковой волны совпадает с частотой изгибных волн в самой пластине).
На этой критической частоте наблюдается резонансный провал звукоизоляции перегородки.
Указанные перегородки (из пенобетона, гипсовых блоков и т.п.) облачают значением критической частоты, попадающим в диапазон 150-800 Гц, в котором чувствительность уха человека максимальна.
Именно поэтому по таким перегородкам происходит интенсивная косвенная передача шума с перекрытий и примыкающих стен.

Облицовки перегородок ГКЛ также обладают критической частотой, но на гораздо более высоких частотах (2500-4000 Гц).
Кроме того, облицовка ГКЛ обладает экстремально низким излучением звуковой энергии на средних частотах (не буду вдаваться в объяснения с научными подробностями). Этот факт достаточно хорошо изучил и теоретически обосновал в своих работах профессор Седов М.С., основатель научно-педагогической школы в области архитектурно-акустического проектирования в Нижегородском архитектурно-строительном университете.
Поэтому применение перегородок ГКЛ как правило предпочтительнее возведения перегородок из пегобетона, газобетона, гипсовых блоков, силикатного кирпича и т.п.
Если же стоит задача изолировать не бытовые шумы, а мощные источники низкочатотного шума, то следует применять массивные и толстые ограждения из красного полнотелого кирпича или бетонных блоков.

Минимальные требования к звукоизоляции детской комнаты:
- подвесной потолок ГКЛх2 с акустической минеральной ватой
- ГКЛх2 облицовка с акустической минеральной ватой стены, которая излучает шум
- желательно выполнить плавающий пол (или стяжка ЦПС по слою акустической минеральной ваты или плавающий пол на лагах).
Последовательность работ может быть любая, но в данном случае порекомендую "потолок - стена - пол".
...ничто не слишком...(с) Кармадон, "Альтист Данилов"
http://www.akustik.ua - акустическое проектное бюро
http://www.acoustic.ua - звукоизоляционные материалы
............................................
User avatar
Андрей Смирнов
Soundmoderator
 
Posts: 8791
Joined: 29 Aug 2006, 12:24
Location: Украина, Киев

Re: Звукоизоляция электрощитовой, потолков и пола

Postby AnastasyaMay » 11 Oct 2015, 23:46

Андрей, спасибо!
Уточнение: потолок обшивать до существующей гкл-перегородки, или её надо разбирать и делать полностью потолок от окна до несущей стены?
AnastasyaMay
 
Posts: 7
Joined: 29 Sep 2015, 23:43
Location: Россия, Киров

Re: Звукоизоляция электрощитовой, потолков и пола

Postby Андрей Смирнов » 12 Oct 2015, 07:41

Конечно лучше делать потолок от окна до несущей стены, но я думаю, что в вашем случае можно пойти на компромисс и ограничиться монатжом потолка до существующей ГКЛ перегородки.
...ничто не слишком...(с) Кармадон, "Альтист Данилов"
http://www.akustik.ua - акустическое проектное бюро
http://www.acoustic.ua - звукоизоляционные материалы
............................................
User avatar
Андрей Смирнов
Soundmoderator
 
Posts: 8791
Joined: 29 Aug 2006, 12:24
Location: Украина, Киев


Return to Звукоізоляція

Who is online

Users browsing this forum: No registered users and 63 guests

cron